Double Trolley Crane - Double Trolley Overhead Crane Double Girder

Double Trolley Crane - Double Trolley Overhead Crane Double Girder

Double trolley overhead cranes of (2.5+2.5)~(200+200) tons, double trolleys & double hooks for long & heavy lifting. Overhead double trolley cranes drawing & trolley crane pdf for you now.

Crane Type Double trolley overhead travelling crane
Crane Capacity (2.5+2.5)~(200+200)ton
Crane Span 10.5~35.5m
Working Class A5, A6
.Ambient temperature -25C to +40C
ApplicationMaterial handling, lifting, positioning, assembly, maintenance, loading/unloading,
CertificationsCE / ISO / SGS / Other third-party inspection
CustomizationCustomized material handling cranes solutions available for indoor, outdoor, hazardous, corrosive, cleanroom, and heavy-duty industrial applications.

Category: Overhead Crane

Tags: overheadcranechina,openwinchcrane

Content Quick Link

Your Trusted Overhead Crane Manufacturer & Supplier

Double Hook & Double Trolley Overhead Cranes - Double Trolley Cranes
Double trolley overhead cranes of (2.5+2.5)~(200+200) tons, double trolleys & double hooks for long & heavy lifting

Double trolley overhead crane is a heavy duty double girder overhead crane, equipped with two crane trolleys of equal capacity from 2.5 ton + 2.5 ton up to 200 ton + 200 ton , both of which can be operated separately and simultaneously. The overhead double trolley crane is especially used for handling long, heavy objects or sets of objects with two lifting points of long distance, featured as stable performance with high safety and efficiency.

Double trolley overhead crane, double girder double trolley overhead crane

Double trolley overhead crane, double girder double trolley overhead crane 

>Double trolley, double hook, double girder overhead cranes

Double trolley, double hook, double girder overhead cranes

Parameters of double trolley cranes

Double trolley overhead crane is a heavy duty double girder overhead crane, equipped with two crane trolleys of equal capacity from 2.5 ton + 2.5 ton up to 200 ton + 200 ton , both of which can be operated separately and simultaneously. And the main parameters of the double trolley overhead cranes are for your reference to get your custom designed double trolley crane solution。

Main parameters of overhead double trolley cranes

  • Crane Type: QE type Double girder overhead crane with two crane trolleys
  • Lifting Capacity of Overhead Double Trolley Crane:(2.5+2.5)~(200+200)ton, 5+5t, 7.5+7.5t, 10+10t, 16+16/3,2t, 20+ 20/5t, 32+32/5t, 50+50/10t, 63+63/10t, 80+80/20t, 100+100/20t, 125+125/30t, 160+160/30t, 200+200/50t.
  • Span Length of overhead double trolley crane:10.5~35.5m
  • Working class of overhead double trolley crane: A5, A6
  • Ambient temperature of double trolley overhead crane: -25C to +40C
  • Control method of double trolley overhead crane: cabin/ pendent/ remote.
  • The special and non-standard design for the double trolley cranes are available.

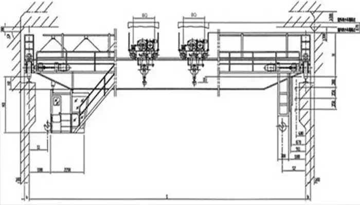
Main structure and components

Double trolley overhead crane is mainly consisted of crane bridge beam, driver's cab, trolley travelling mechanism and electric equipment. The driver's cabin has three open directions: side, top and end. 

Double Trolley Crane Design Options

  • Crane runway of double trolley crane : elevated runway beam
  • Long travelling operation & trolley cross travelling operation: electric
  • Hoisting trolley of double trolley crane: electric wire rope hoist or electric chain hoist or open winch
  • Crane control: crane pendant, wireless remote control / wireless radio control or / and crane cabin control.
  • Safety device of trolley crane: overload limiter, travel limit switch, anti-collision device, etc.

Features of double trolley overhead cranes

And the features of the double trolley cranes are as following:

  • Crane girder : Due to the box welded structure design, the crane bridge girder is with high degree of rigidity vertically and horizontally.
  • Crane travelling mechanism: Separate driving is adopted with high flexibility. Strong beam and stable travelling mechanism ensures the good performance of the trolley cranes.
  • Soft starter motor is used in the travelling mechanisms of bridge crane and travelling trolleys.
  • The emergency switch can stop any movement at once by pressing on the single button to prevent danger effectively.
  • The overhead trolley crane is rely on the crane bridge frame to move logitudinally along the rail direction of the workshop and the hoist trolley are moving along the main beam direction transversely while the lifting hook of the hoist trolley are used to lift up and down of the loads.
Chinese type open winch trolley

Chinese type open winch trolley,  the  trolley also can be customized based on your needs, such as with European style low headroom winch, explosion proof open winch, etc. 

Main girder & crane hook

Main girder & crane hook

Advantages of overhead double trolley crane

High flexibility is provided for long items handling:Great flexibility is provided by the double trolley overhead travelling cranes for long objects handling. There are two hoist trolleys used as the lifting mechanism of the double girder overhead crane which can handle items horizontally and vertically at same time or separately.

Up / down, Left/ Right:The overhead crane trolley mechanism which is consisted of an electric hoist and a top running trolley, offers two directions of load motion, up or down, left or right.

Separately or simultaneously: The double trolley overhead crane is combined of a main hoist trolley and a secondary hoist trolley, which can be operated together for complex conditions such as installation process and also can be used separately with the same functions as a common double girder overhead crane with a hoist trolley.

Economical solution for complex lifting situations

  • Reliable double trolley overhead crane is efficient and stable in working performance at cost-effective crane price.For actual engineering projects, there are often complex lifting conditions such as the handling of long items or items with long lifting points which need the cooperation of two overhead cranes which increases the investment for the workshop. Comparatively, a double trolley overhead crane is able to solve such problems perfectly but with low crane cost and investment in plant construction.
  • And also with advantages of compact structure and light dead weight, Double trolley overhead crane is easy to storage, transport, and also easy to install and maintain, which also makes the overhead double trolley crane competitive in terms of crane price and crane cost.
  • Lastly, the double trolley overhead crane is available in cut-to-tail crane designs, which is able to at the largest extent to satisfy your needs of lifting requirements without spending extra-money Due to the unique features and advantages, the double trolley cranes has a wide application range.

Applications of double trolley overhead crane

Double trolley overhead crane is an excellent solution where high speeds and heavy duty service are required.

  • The overhead dual-trolley and hook crane is extensively used for long pieces of objects handling such as steel pipe, paper pipe, and wood, etc., in mining and industrial workshops, warehouses and storage, etc.
  • And also the double trolley overhead crane also can be used outdoors such as a freight yard when equipped with rainproof devices.
  • Designed for general material handling, the QE series of double trolley overhead crane is not supposed to be used in hazardous environments, with atmosphere or substance of explosive flammable & corrosive or in high heat environment.

Double trolley overhead crane projects for your reference 

Contact us to get your cusomized design for heavy lifting.


150 Ton Overhead Crane Installation Feedback – Paraguay Case

QDX 150 ton overhead crane in action in Paraguay. Installation photos, video, and client feedback show performance, safety, and heavy-lifting efficiency.


Free consultation to Confirm Parameters & Specifications and Get

Latest Crane Price & Crane Rate.

  • Types of overhead cranes : _______?
  • Optional: Overhead travelling crane, goliath gantry crane,Slewing jib crane, Single girder or double girder crane,small portable crane or kbk crane, etc.
  • Capacity of overhead crane: _______?
  • Optional: 0.25ton, 0.5 ton, 1 ton, 2 ton, 3ton, 5 ton, 10 ton,15ton, 20ton, 25 ton, 30ton,35ton, up to 550ton, etc.
  • Crane span & lifting height : _______?
  • Crane travelling length : _____?
  • Control of overhead crane:_______?
  • Optional: pendant/ remote/cabin control
  • Voltage supply of overhead crane:_____?
  • Eg,: 380V50/60HZ,3Phase or others,etc.
  • Application/usage of crane:_______?
  • Eg,: Steel mill, ,injection mold, cement,stone, concrete,granite, general manufacturing, etc.
  • Just leave a message via the contact form and our hoist and crane engineer will contact you with in 24working hours.

Get In Touch

Feel Free
to Contact With us