Heavy Lift 200+200 Ton Double Girder Double Trolley Bridge Crane

Heavy Lift 200+200 Ton Double Girder Double Trolley Bridge Crane

Heavy-duty 400-ton overhead crane with dual open winch trolleys, designed for precision lifting of heavy, long & large loads handling in industrial use!

ApplicationMaterial handling, lifting, positioning, assembly, maintenance, loading/unloading,
CertificationsCE / ISO / SGS / Other third-party inspection
CustomizationCustomized material handling cranes solutions available for indoor, outdoor, hazardous, corrosive, cleanroom, and heavy-duty industrial applications.

Category: Heavy Duty & Large Capacity

Tags: heavylifting

Content Quick Link

Your Trusted Heavy Duty Overhead Crane Manufacturer & Supplier

200+200 Ton Open Winch Trolleys Bridge Crane
Heavy Duty Double Girder & Double Trolley Overhead Crane 400 Ton

Introduction: Overview of 200 +200 Ton Overhead Crane Project

The 400-ton double girder bridge crane is designed to handle some of the heaviest lifting in industrial environments. With two open winch trolleys, this crane is built to lift and move massive loads with precision and safety.

  • Lifting Capacity: The crane can lift 200 tons with each trolley, adding up to a total of 400 tons.
  • Design: It features a double girder system for increased strength and stability. The open winch trolleys allow for smooth movement and precise load handling.
  • Functionality: This crane is ideal for heavy-duty operations where maximum lifting power is required. It's used for lifting large and heavy materials across industrial spaces, ensuring efficiency in operations.

The crane is designed not just to lift heavy loads, but to do so with high operational efficiency. It's built to make work faster and safer in industries that need constant and heavy lifting.

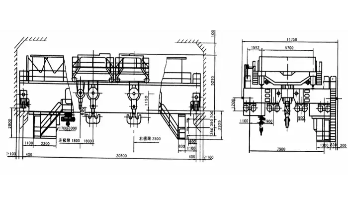
Crane drawing of double girder overhead crane wtih double trolley for heavy lifting

Crane drawing of double girder overhead crane wtih double trolley for heavy lifting 

Scope of the Crane's Purpose, Installation, and Usage

The main purpose of this crane is to serve in environments where heavy materials need to be lifted, moved, and positioned. This could include manufacturing plants, steel mills, and other heavy industries.

  • Installation: Setting up such a heavy crane takes careful planning. It needs a strong foundation, properly installed tracks, and power sources to handle the large lifting capacity.
  • Usage: It's primarily used for lifting massive loads, like steel components, machinery parts, or construction materials. The two winch trolleys allow operators to handle two heavy loads at once, improving productivity.

Key goals of this project include maximizing lifting efficiency and reducing downtime. The crane's installation also considers ease of use, safety, and maintenance, ensuring it fits perfectly into the industrial workflow.

Key Project Goals

  • Lifting Capacity: The goal was to create a crane capable of lifting up to 400 tons without sacrificing safety or efficiency.
  • Operational Efficiency: The crane should be able to lift and move heavy loads quickly, reducing downtime and boosting productivity.
  • Safety and Reliability: With such heavy lifting capabilities, the crane was designed to ensure the highest levels of safety, both for operators and materials.

Relevance to Industry

Heavy-duty cranes like this 400-ton model are crucial in industries that require constant, heavy lifting. They make it possible to move large materials quickly and safely, which is essential in many sectors.

Industries Using Heavy-Duty Cranes:

  • Steel Mills: Cranes handle massive steel billets and components, ensuring smooth operations in steel production.
  • Power Plants: Cranes move heavy machinery and equipment during construction or maintenance.
  • Heavy Machinery Manufacturing: These cranes help lift large parts during assembly or when moving completed machinery.

Importance of Large Capacity Cranes: Large capacity cranes are vital because they allow businesses to meet demanding production schedules. The ability to lift and move very heavy loads quickly and safely increases productivity, reduces worker injuries, and ensures that materials are handled efficiently.

In industries where the demand for heavy lifting is constant, cranes like the 400-ton double girder bridge crane play a critical role. They're not just tools but essential equipment that keeps the industry moving forward.

Crane Specifications

Design Features

This 400-ton bridge crane is designed with a heavy-duty, reliable structure, making it ideal for industrial operations that require high lifting capacities. Here's a detailed breakdown of its design features:

Lifting  Weight

Ton

Main lifting

200 + 200 TON

 

 

Aux Lifting

80

Working Duty

 

Main lifting

M3

 

 

Aux Lifting

M3

 

 

Trolley

M3

 

 

Crane

M3

Rail Distance

mm

Trolley 1

5700

 

 

Trolley 2

20

 

 

Crane

500

Lifting range

m

Lifting height

9.85

 

Working Speed

M/min

Lifting mechanism

11.4

 

 

Trolley

38.3

 

 

Crane

91.9

Buffering Distance

mm

Trolley

100

 

 

Crane

140

Power Supply

 

380v 50hz 3-phase AC

Type: Double Girder, Double Trolley

  • The crane uses a double girder design, meaning it has two main beams that provide additional strength and stability for lifting heavy loads. This setup is ideal for carrying heavy weights and ensures the crane operates smoothly over long spans.
  • It's equipped with two trolleys, each capable of lifting 200 tons. This means the crane can handle very large loads, and each trolley can operate independently, or they can work together to lift a single load.

Lifting Capacity: 200 + 200 Ton (Total: 400 Ton)

  • Each of the two trolleys has a lifting capacity of 200 tons, giving the crane a total lifting capacity of 400 tons. This makes the crane suitable for extremely heavy-duty applications like lifting steel plates, heavy machinery, or large construction components.

Dimensions: Span, Lifting Height, and Rail Gauge

  • The span refers to the distance between the crane's rails, ensuring it can cover a large work area.
  • The lifting height specifies how far the crane can lift its load from the ground. This is important for industries that need to lift materials to different levels, like stacking heavy items in storage or moving them between different floors.
  • Rail gauge refers to the distance between the rails that the crane runs on. This must be designed to match the layout of the facility, ensuring smooth and stable operation as the crane moves back and forth.

Materials Used

  • The crane is constructed from high-strength steel, specifically selected for its durability and resistance to wear. This ensures the crane can handle the heavy loads without compromising on safety or performance.
  • The frame of the crane is made from top-quality steel that can bear significant stress.
  • Winches and trolleys are built with durable materials, engineered to last even under extreme operational conditions.

Safety Features

  • Overload Protection: This prevents the crane from lifting beyond its rated capacity, reducing the risk of structural damage or accidents.
  • Emergency Brakes: These are essential for stopping the crane quickly and safely in case of any malfunction or emergency. They provide an added layer of security for operators and the facility.
  • Anti-Collision Systems: To ensure safe operation, the crane includes sensors and systems that prevent collisions between the trolleys or with other equipment in the facility. This feature helps avoid costly accidents and downtime.

Mechanical Components

The mechanical components of this crane play a critical role in its lifting capacity and overall efficiency. Here's how each part contributes to its performance:

heavy duty open winch trolley

Open Winch Trolleys

  • The open winch trolleys are designed for heavy-duty lifting. These trolleys are mounted on the crane's girder and can be operated independently. Each trolley is equipped with its own winch, allowing it to handle half of the total load (200 tons each).
  • The load distribution is carefully balanced between the two trolleys, ensuring that the crane remains stable during operation. By having two trolleys, the crane can lift extremely heavy materials while keeping the structure safe from undue stress.

Double Girder System

  • The double girder system allows the crane to handle very heavy loads, offering superior strength and stability compared to single girder designs. The two main beams not only distribute the load more evenly but also reduce the overall stress on the crane's structure.
  • The design provides the flexibility for the crane to be used in various industrial settings where heavy lifting is required. It ensures smoother operation, even at maximum load capacity, and helps increase the crane's lifespan by reducing strain on individual components.

Lifting Mechanisms: Winches, Hoists, and Motors

  • Winches: The winches on the crane are designed to provide powerful lifting force, allowing the crane to handle massive loads. The winches are equipped with high-strength cables and pulleys, ensuring safe lifting even under high-load conditions.
  • Hoists: These are the components that lift the load. The hoists are designed for heavy-duty work, equipped with efficient motors and robust gear systems to move heavy materials smoothly.
  • Motors: The crane's motors drive the winches and hoists. They are powerful enough to lift heavy loads quickly and efficiently, ensuring minimal downtime between lifts.

These specifications highlight the crane's capability to perform under extreme conditions, making it a reliable choice for industries that need to move and handle extremely heavy materials. The combination of the double girder system, open winch trolleys, and powerful lifting mechanisms ensures that this crane will perform safely and efficiently for years to come.

Engineering and Customization

Customized Features

When the customer approached us, they didn't just want a heavy-lifting crane. They needed a crane that could adapt to specific site conditions and complex lifting operations. Here's how we customized it:

Dual Operation Modes:

  • The crane needed to lift either two separate loads or one large load.
  • We designed it with two independent open winch trolleys, which can work alone or together as needed.

Space Adaptation:

  • The facility had limited headroom and a tight working space.
  • We optimized the lifting height and created a low-headroom design for the trolleys.
  • The crane was designed to fit the existing rail gauge and building width, avoiding costly building modifications.

Smooth and Flexible Movements:

  • Different lifting jobs required different speeds.
  • We added a dual-speed drive system, offering fast travel for long moves and slow speed for precise positioning.

Extra Durability:

  • Because the crane would be working near heavy machining areas, all critical parts were designed with dust protection and high-heat resistance.
  • We also applied special coatings on the steel structures for longer service life.

Electrical and Control Systems

A crane of this size needs to think as well as lift. We put a lot of effort into making the controls easy, safe, and smart.

Manual and Semi-Automatic Control:

  • Operators can control the crane using a radio remote control or from a cabin with joysticks.
  • We also offered a semi-automatic mode, where the crane can follow pre-set lifting paths for repetitive tasks.

Dual Trolley Coordination:

  • When lifting a single 400-ton load, the two trolleys must stay perfectly synchronized.
  • We installed a master-slave system, where one trolley leads and the other follows automatically.
  • Real-time sensors constantly check their position, keeping synchronization within a few millimeters.

Safety and Monitoring Systems:

  • Load limiters were installed to stop lifting if the weight gets too high.
  • Anti-sway systems reduce load swinging, making operations safer and faster.
  • Independent power supplies for each trolley mean that if one system fails, the load can still be lowered safely.

Structural Design

The crane frame was designed to be extremely strong and durable because safety at 400 tons is non-negotiable.

Strong Frame Design:

  • We used high-strength Q345B structural steel for the main girders.
  • Critical welding joints were fully penetrated and ultrasonically tested to make sure there were no hidden flaws.
  • Extra cross-beam stiffeners were added to prevent deformation under heavy load.
durable overhead crane main girder

Material Selection:

  • Trolley frames were made with heat-treated alloy steel for better strength and lighter weight.
  • Forged wheels, hooks, and shafts were used for longer wear life.

Safety Focused Modifications:

  • Shock absorbers were installed at trolley end-stops to reduce collision forces.
  • The whole crane was fatigue-rated for 2 million load cycles, giving it a much longer working life compared to standard designs.

Analysis of Load Distribution Between the Two Trolleys

Balancing the load between the two trolleys is not just important — it's critical for safety.

Equal Load Sharing:

  • Each trolley was designed to carry up to 200 tons individually.
  • When lifting together, they share the load 50/50, managed by real-time load sensors.

Automatic Load Balancing:

  • If one trolley feels a heavier load, the system adjusts the motor power to balance the difference instantly.
  • This prevents twisting or overloading one side of the crane.

Safe Lifting Rules:

  • When only one trolley is working, the lifting system automatically limits the load to 200 tons maximum.
  • Full load operations always require synchronized trolley movement.

Monitoring During Operation:

  • Sensors constantly check lifting speeds, hook heights, and motor loads.
  • Any imbalance triggers a warning or a safe stop.

This crane isn't just strong. It's smart, safe, and purpose-built to handle real-world challenges, lifting 400 tons with confidence every single time.

Operational Performance

Efficiency and Handling

After installation and commissioning, the crane quickly proved its capabilities in daily operations. It wasn't just about lifting 400 tons — it was about lifting them smoothly, safely, and efficiently.

Heavy Lifting Performance:

  • The crane handles full-capacity loads without noticeable structural deflection or excessive vibration.
  • Lifting speeds remain stable even under the maximum 400-ton load, providing a secure and controlled lifting experience.

Dual Trolley Overhead Crane System Advantages:

  • Having two open winch trolleys allows flexibility in operations.
  • Operators can lift two smaller loads independently at different positions, which saves time compared to using one larger crane for everything.
  • For extremely heavy or oversized loads, the two trolleys work together, giving better load balance and stability across the entire bridge span.

Improved Productivity:

  • The crane reduces load handling time by up to 30% compared to single-trolley systems.
  • It enables continuous operations without needing to reposition loads manually or adjust lifting gear frequently.
  • Overall, the combination of synchronized movement and high lifting speeds improves operational output significantly.
Dual Trolley Overhead Crane System

Precise Handling:

  • The semi-automatic control system allows operators to preset lifting sequences, reducing human error, especially for repetitive lifting tasks.
  • Anti-sway technology keeps the load stable, even when moving at higher trolley speeds.

The customer reported that what used to take hours could now be completed in much less time, without sacrificing safety.

Maintenance and Lifespan

A crane designed to lift 400 tons every day must be built for the long haul. Regular maintenance is essential to keep it running reliably.

Maintenance Schedule:

  • Daily inspections are carried out on winch systems, trolley travels, and critical bolts.
  • Weekly maintenance focuses on lubrication of wire ropes, gears, and motor bearings.
  • Monthly checks include testing brake systems, electrical connections, and sensor calibration.
  • Annual inspections involve a full load test, checking the structural integrity, and preventive replacement of key parts like wire ropes and motor brushes.

High-Capacity Component Care:

  • Winch trolleys are fitted with easily accessible inspection points for faster service routines.
  • Motors and gearboxes are designed for long service intervals, but oil levels and seals must be checked regularly to avoid failures.
  • Special attention is given to synchronization sensors between the two trolleys to ensure accurate load sharing over time.

Expected Lifespan:

  • Under heavy-duty use (two to three shifts per day), the crane is expected to last 20 years or more with proper maintenance.
  • Fatigue-resistant frame design and over-dimensioned motors help extend the service life compared to standard cranes.

Strategies for Prolonging Operational Life:

  • Strict adherence to load limits and synchronized lifting operations.
  • Scheduled replacements of consumable parts like brakes and wire ropes before failure occurs.
  • Regular software updates for the control system to enhance safety features and optimize lifting algorithms.
  • Environmental protection measures such as anti-corrosion coatings and dust seals are maintained to keep the crane operating at peak condition even in tough surroundings.

With good care and responsible use, this 400-ton double girder, double trolley bridge crane will remain a key part of the customer's operations for decades.

Challenges Faced

Engineering and Design Challenges

Designing a 400-ton double girder, double trolley crane was never going to be simple. Several technical challenges had to be solved before production even started.

Load Distribution Balance:

  • Making sure that the two trolleys shared the load evenly was a major challenge.
  • Uneven loading could cause twisting of the bridge structure or overloading one trolley, leading to dangerous situations.
  • To solve this, we designed an advanced synchronization system supported by real-time monitoring sensors.

Stability Under Full Capacity:

  • When lifting 400 tons, even small structural flexing could create safety risks.
  • The crane girders were carefully engineered using finite element analysis (FEA) to ensure minimum deflection.
  • Extra reinforcements and stiffeners were added at critical points to maintain structural integrity.

Trolley Coordination:

  • Synchronizing two massive open winch trolleys was harder than expected, especially when they operated separately and together.
  • Special attention was given to designing independent control circuits and master-slave operation logic.

These engineering adjustments were essential to make the crane safe, stable, and efficient under real working conditions.

Installation Challenges

Getting the crane into the customer's facility wasn't an easy task either. Several hurdles popped up during installation.

Space Constraints:

  • The installation site was already packed with other heavy machinery.
  • There wasn't enough free space for easy movement of large crane parts and assembly equipment.
  • We had to plan a careful step-by-step lifting and assembly sequence, using mobile cranes in a very tight working area.

Height Limitations:

  • The building's ceiling was lower than typical crane installation standards.
  • This required assembling the crane girders and trolleys on the ground first, then lifting the entire bridge structure into position in one coordinated lift.

Complex Setup:

  • Aligning the crane rails precisely over a long span took extra time and care.
  • Special temporary supports and alignment tools were used to get the bridge to fit perfectly on the first try.

In the end, careful planning and teamwork helped complete the installation without needing any major building modifications.

Operational Hurdles

Even after the crane was up and running, some operational challenges needed to be tackled to ensure smooth daily use.

High Wind Resistance:

  • The facility had large open doors, and strong winds could blow across the crane's path.
  • We added wind sensors and an automatic crane parking system that locks the crane safely during high wind events.

Temperature Fluctuations:

  • The region had big temperature swings between seasons, from freezing winters to very hot summers.
  • Steel expansion and contraction needed to be considered to avoid problems with the crane rails and motor operations.
  • We used temperature-resistant materials and flexible electrical cables to ensure stable performance year-round.

Operator Learning Curve:

  • At first, operators needed extra training to get used to managing two trolleys at once.
  • A focused training program was developed, including simulation exercises and real-time coaching during the first few weeks of operation.

Each hurdle was addressed with practical solutions to keep the crane operating safely and efficiently, no matter the conditions.

Benefits to the Customer

Increased Productivity

One of the biggest wins for the customer was the immediate improvement in material handling speed and efficiency. The new crane was able to handle larger loads with fewer moves, making the entire process faster and smoother.

Higher Load Handling:

  • With a 400-ton total capacity, larger and heavier components could be moved in a single lift.
  • No need to break down oversized parts into smaller pieces for handling, saving a lot of preparation time.

Reduced Downtime:

  • The dual trolley system allowed more flexible lifting operations.
  • When two smaller loads needed to be lifted at different positions, both trolleys could work independently without repositioning the crane.
  • Less waiting time between lifts meant more products could be moved every day.

Improved Throughput:

  • The facility saw a noticeable increase in output shortly after the crane went into operation.
  • Faster material movement allowed production lines to keep running without unnecessary pauses.

Overall, the crane helped the customer move more material in less time, leading directly to higher production numbers.

Cost-Effectiveness

Beyond performance, the crane also helped the customer save money — both in day-to-day operations and over the long term.

Lower Maintenance Costs:

  • Because of the heavy-duty design, parts like winches, motors, and gearboxes need less frequent servicing compared to lighter cranes.
  • The use of high-grade materials and oversized components means slower wear and tear.

Reduced Equipment Needs:

  • With one crane handling what previously required multiple lifts or even multiple cranes, there was no longer a need to invest in additional lifting equipment.

Energy Efficiency:

  • The crane's motors and control system are optimized to reduce power consumption, especially during partial load operations.
  • This helped lower the facility's overall energy bills.

Long Service Life:

  • With a design life of over 20 years under heavy use, the crane represents a solid long-term investment.
  • Spreading the initial cost over two decades makes it highly cost-effective compared to buying multiple smaller cranes over the same period.

In short, the crane didn't just perform better — it saved real money in real ways.

Safety and Reliability

When lifting hundreds of tons, safety is non-negotiable. The crane's built-in safety features and reliable performance made a major difference in daily operations.

Advanced Safety Systems:

  • Overload limiters, emergency stop functions, and automatic braking systems were all part of the standard setup.
  • Anti-sway controls helped keep the load steady, even at higher speeds or under sudden movement.

Dual Trolley Reliability:

  • Having two synchronized trolleys added a layer of redundancy.
  • If one trolley experienced an issue, the system could safely lower the load or allow the second trolley to assist.

Operator Confidence:

  • Operators reported feeling more secure during lifts because of the crane's smooth handling and predictable response.
  • Safety alarms and real-time monitoring systems also helped operators react quickly if something unexpected happened.

Reduced Risk of Accidents:

  • By minimizing manual handling and improving load control, the crane helped cut down on workplace accidents.
  • Fewer accidents mean fewer disruptions, fewer costs, and — most importantly — safer working conditions for everyone.

At the end of the day, the crane didn't just meet the customer's expectations — it exceeded them by creating a safer, more productive, and more cost-effective operation.

Conclusion

Summary of Achievements

Looking back at the project, the 400-ton double girder, double trolley bridge crane delivered everything the customer needed — and more. From the first lift onward, it made a big difference to their operations.

Boosted Operational Efficiency:

  • Material handling time was cut significantly thanks to the crane's high lifting capacity and dual trolley setup.
  • Production bottlenecks caused by slow or limited lifting equipment were eliminated almost overnight.

Enhanced Workplace Safety:

  • Safety systems like overload protection, synchronized trolley controls, and emergency brakes gave operators confidence and security.
  • With fewer manual interventions and better load stability, accident risks dropped sharply.

Reliable, Daily Performance:

  • The crane handled continuous heavy lifting tasks with minimal maintenance needs, showing strong reliability from day one.
  • Both trolleys performed smoothly even during long shifts, helping the customer meet strict production schedules.

In short, the crane did exactly what it was designed to do — improve speed, safety, and reliability, all at the same time.

Future Recommendations

While the project was a success, there are always ways to push even further and make a good solution even better.

Automation Upgrades:

  • Adding more automated features like semi-autonomous trolley movements or programmed lift paths could speed up repetitive operations.
  • Remote control options could allow operators to handle lifts from safer distances or control multiple cranes from a central station.

Real-Time Monitoring Systems:

  • Installing more sensors for real-time load monitoring, motor health tracking, and predictive maintenance alerts would further cut downtime.
  • Smart maintenance scheduling based on real usage data could help prevent small problems before they grow.

Adaptability for New Loads:

  • Preparing the crane with interchangeable lifting attachments, like custom spreader beams or magnet lifts, could allow it to handle a wider variety of materials in the future.

Making these adjustments would not only fine-tune current performance but also help the crane stay useful if the customer's production needs change down the road.

This project was a great example of what careful engineering, smart customization, and close customer collaboration can achieve. The 400-ton bridge crane didn't just fill an equipment need — it became a critical part of the customer's daily operations.

It allowed them to move larger products faster, operate more safely, and focus on growing their business instead of worrying about lifting capacity limits.
With the crane performing beyond expectations and laying a strong foundation for future improvements, both the customer and our engineering team can look back on this project as a real success story.

150 Ton Overhead Crane Installation Feedback – Paraguay Case

QDX 150 ton overhead crane in action in Paraguay. Installation photos, video, and client feedback show performance, safety, and heavy-lifting efficiency.


Free consultation to Confirm Parameters & Specifications and Get

Latest Crane Price & Crane Rate.

  • Types of overhead cranes : _______?
  • Optional: Overhead travelling crane, goliath gantry crane,Slewing jib crane, Single girder or double girder crane,small portable crane or kbk crane, etc.
  • Capacity of overhead crane: _______?
  • Optional: 0.25ton, 0.5 ton, 1 ton, 2 ton, 3ton, 5 ton, 10 ton,15ton, 20ton, 25 ton, 30ton,35ton, up to 550ton, etc.
  • Crane span & lifting height : _______?
  • Crane travelling length : _____?
  • Control of overhead crane:_______?
  • Optional: pendant/ remote/cabin control
  • Voltage supply of overhead crane:_____?
  • Eg,: 380V50/60HZ,3Phase or others,etc.
  • Application/usage of crane:_______?
  • Eg,: Steel mill, ,injection mold, cement,stone, concrete,granite, general manufacturing, etc.
  • Just leave a message via the contact form and our hoist and crane engineer will contact you with in 24working hours.

Get In Touch

Feel Free
to Contact With us