A single-girder overhead eot crane is an overhead crane andbridge crane with two or more overhead runways incorporated into the building's support structure and a girder / beam(the bridge) running between the runways for the crane bay's width.
End trucks / end carriagesare located at each end of the girder and move the girder and hoist forward and backward down the runways. Typically, the trolley and hoist travel along the underside of the maingirder or main beam.
Single-girder overhead cranes provide a variety of advantages, including
Single girder eot crane is an economical overhead crane material handling solution for vairous industrial workshops and applications, such as Valve plant, etc.In the following, 5 ton and 15 ton single girder eot crane for sale Thailand Gasket and Valve Plant project for your reference.
Valve plants can be found almost anywhere and are one of the most common plants in related sectors. In valve plants, a single girder eot crane is always used to increase productivity. EOTCRANEKIT is always ready to help you find the best overhead traveling cranes for your plant. For your convenience, I've included an example of one of the cases.
It was created in 2001 and is based in Rayong, Thailand. It mostly focuses on gasket and valve maintenance, such as Safety Valve, Control Valve, Globe Valve, and Butterfly Valve maintenance. Semi-Metallic & Metallic Gaskets (Spiral Wound Gasket, Camprofile Gasket (Kammprofile Gasket), Metal Jacketed Gasket, Ring Type Joint), Soft Gasket (Non Asbestos), Rubber Gasket, Gland Packing, and others are the main gasket products. Insulation Kits Type D, Insulation Kits Type E, Insulation Kits Type F, Graphite Ring, Silicone Gasket, Flexoid® Paper Gasket, Acid Resistant Gasket, Chemical Resistant Gasket, Oil Resistant Gasket, Heat Resistant Gasket, Insulating Textile, Graphite Ring, Silicone Gasket, Flexoid® Paper Gasket, Acid Resistant Gasket, Chemical Resistant Gasket, Oil Resistant Gas SGL SIGRAFLEX® Graphite, NR, NBR, EPDM, Neoprene(CR), VITON, Non-Asbestos Gasket, Graphite Sheet, Graphite Tang, Graphite Foil, as well as laser and CNC cutting services.
Valve plant of Thailand customer
Valves of Thailand client of EOTCRANEKIT
The 5 ton eot crane is used for material handling in valve production and maintenance.For general use, the load weight is 5 ton and sometime the maximum load weight is up to 15 ton. Based on the dimension of warehouse or workshop, the lifting height is 6 mandwidth is 15 m. As for the lifting speed, double speed is required for material handling and maintenance work.They have intermittent work some days they will not move. When busy they will possibly work 4 hours in 8.
Client's site under construction
Here is EOTCRANEKIT's design suggestion based on the client's requirements: one set of single girder eot crane 5 ton, span 14meters, lifting height 6meters, double speed and one set of single girder eot crane 15ton, span 14meters, lifting height 6meters, double speed. These twoelectric overhead travelling cranes are sharing the same track. EOTCRANEKIT fully matches the needs of the client and improves their working efficiency.
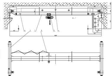
5 ton single girder eot crane drawing for Thailand valve plant
15 ton single girder eot crane drawing for Thailand valve plant
The eot crane has various unique requirements, including lifting speed and painting.
Main girder for single girder eot crane for Thailand valve plant
Main girder for single girder eot crane for Thailand valve plant
5 ton and 15 ton eot crane for delivery to Thailand
5 ton and 15 ton eot crane for delivery to Thailand
5 ton and 15 ton eot crane installatin in Thailand
5 ton and 15 ton eot crane installatin in Thailand
The installation of 5 ton and 15 ton single girder eot cranecrane installation was a huge success, and it passed all of the local expert examinations. The client is really pleased with our eot craneproduct and our hard work. The eot crane not only works effectively, but it also has a really attractive appearance. We earn companionship, trust, and new friends.
EOTCRANEKIT is here to help you get back on your feet. Material handling system that is ideal for your needs.

Our eot crane engineer and client at Thailand
European Standard Suspension Single Girder EOT Crane for Sale Thailand
Lifting capacity of single girder overhead crane: 1ton,3 ton, 5 ton to 10 ton
Span ofsingle girder overhead crane: 3-15 m
Lifting height of single girder overhead crane: 3-100 m
Ask for single girder overhead crane price now.
Suspension Single Girder EOT Crane Chinese Type for Sale Thailand
Lifting Capacity of Single Girder EOT Crane: 0.5ton, 3 ton, 5 ton to 10 ton
Span of Single Girder EOT Crane: 3m to 31.5m
Working Class of EOT Crane: A3 to A5
Ask for single girder overhead crane price now.
FEM / DIN Top running Single Girder EOT Crane for Sale Thailand
Lifting Capacity of Single Girder EOT Crane: 3.2ton, 3 ton, 5 ton 10 ton ton 16ton
Span of Single Girder EOT Crane: 7.5m to 28.5m
Working Class of EOT Crane: A5
Ask for single girder overhead crane price now.
Chinese Style Top Running Single Girder EOT Crane for Sale Thailand
Lifting Capacity of Single Girder EOT Crane: 1ton, 3 ton, 5 ton,10 ton up to 20 ton
Span Length of Single Girder EOT Crane: 7.5m-28.5m
Working Class of EOT Crane: A3, A4
Ask for single girder overhead crane price now.
Explosion Proof Single Girder EOT Crane for Sale Thailand
Lifting Capacity of Single Girder Crane: 1ton, 3 ton, 5 ton,10 ton up to 20 ton
Span of Single Girder EOT Crane: 7.5m to 28.5m
Working Class of EOT Crane: A3, A4
Ask for single girder overhead crane price now.
Partial Hung Low Headroom Single Girder EOT Crane for Sale Thailand
Lifting Capacity of Single Girder EOT Crane: 1ton, 3 ton, 5 ton,10 ton up to32 ton
Span of Single Girder EOT Crane: 7.5m to 22.5m
Working Class of EOT Crane: A3, A4
Ask for single girder overhead crane price now.
Low headroom Hoist Single Girder EOT Crane for Sale Thailand
Lifting Capacity of Single Girder EOT Crane: 1ton, 3 ton, 5 ton,10 ton up to32 ton
Span of Single Girder EOT Crane: 7.5m to 22.5m
Working Class of EOT Crane: A3, A4
Ask for single girder overhead crane price now.
Ladle handling Single Girder EOT Crane for Sale Thailand
Lifting Capacity of Single Girder EOT Crane: 1ton, 3 ton, 5 ton, 10t
Lifting Height of Single Girder EOT Crane: 6~18m
Working Class of EOT Crane: M5
Ask for single girder overhead crane price now.
With 3 decades of experiences, EOTCRANEKIT has been a well recognized materials handling equipment specialist, who have provided full crane services for various industries on the global scale, such as, cement manufacturing, valve production factory, auto industry, mining, steel mill, beverage factory, etc.
Our overhead travelling crane will make your work more efficient and gain more profit. The best eot crane design, production, transportation, installation team and 24 hours online after-sale services are all ready for you. Contact us to check what we can to for your single girder eot crane solution.










