Awesome Image

High speed winch

Fast speed & high speed cable winch of JK electric winch series, 20~35 m/min and 1ton -80ton cable winch, custom high speed winch & fast speed cable winch

Model JK
Loading Capacity 1~80 t
Rope Capacity 20~500 m
Working Speed 20~35 m/min
Power Supply 220-690V,50/60HZ,3Phase

Category: Winch

Content Quick Link

Your Trusted Hoisting & Pulling WInch Manufacturer & Supplier

High Speed & Fast Speed Electric Winch
Fast Speed Winch, Save Your Time

Fast speed cable winch is a frequently used electric winch for material handling with a wide industrial applications with the advantages of simple operation, large rope capacity, and convenient installation and relocation, etc. The electric cable winch can be used independently for vertical hoisting, horizontal pulling or slopped towing, etc., and on the other hand the cable winch also can be functioned as a hoisting or pulling components of process cranes or other type of hoisting machinery, etc.

JK series fast speed electric winch with high speed of 20~35 m/min and 1T-80T load lifting capacity can be used for large and heavy sized loads handling such as large and medium concrete, steel structure and machinery equipment installation and dismantling, etc. The electric cable winch can be processed with various industrial features to meet diverse industrial applications such as factory workshops, warehouses,construction site, mines,, harbors, cargo storage areas and others, to improve your working efficiency and safety.

High speed winch

High speed electric cable winch

High speed winch

Drawing of high speed winch for reference

JK Fast Speed Electric Winch

  • Electric winch type: JK cable winch of fast speed and high speed
    Loading capacity of high speed cable winch: 1~80 t
    Rope capacity of high speed cable winch: 20~500 m
    Working speed of high speed cable winch : 20~35 m/min
    Power supply of high speed cable winch: 220-690V,50/60HZ,3Phase;
  • Tailored electric cable winch are available for your particular applications.

Advantages of cable winch

With the features of simple operation, large rope capacity, and convenient installation and relocation,our high speed winch are with the following advantage:
  • High safety, reliable operation, durable quality, very competitive winch price
  • Wide application, various process features to meet your applications including factory, mining, shipyard or double beam cranes
  • Reasonable design, compact structure, easy to install, operate and maintenance
  • Low noise and good performance.

 

 

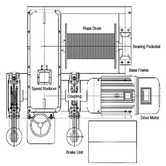
High speed electric winch – Main parts and structure

Explore the key components of high speed electric winches, including gear boxes, rope drums, motors, control systems, and more, for optimized industrial lifting and pulling applications.

Fast speed cable winch are mainly consisted of the frame base, electric motor, elastic coupling, hydraulic brake, enclosed triple-reduction gear box, reel and brackets with control cabinet, and others, etc. Cable winch are available with process design. Contact us to get more information.

The high speed electric cable winch can be configured with process features to meet your particular applications and lifting requirements. The main components and parts of the cable winch are presented for your reference. Usually, the cable winch adopts the national standard YZR-series electric motor and hydraulic brake. The brake and powered motor works synchronously. When the power is cut off, it is braked simultaneously, the process of which is fast, sensitive, safe and reliable.

Gear Box

Transfers and multiplies motor power to the drum for smooth speed control and high torque output.

  • Supports continuous high-speed operation
  • Ensures efficient lifting and towing
  • Reduces motor overload during heavy-duty use

Rope Drum

Stores and winds wire ropes efficiently for long-distance material handling.

  • Supports high-speed winding
  • Designed for long rope lengths
  • Ensures smooth operation in construction, ports, and industrial workshops

Motor

High-speed electric motor powers the drum for lifting, pulling, and precise positioning of heavy loads.

  • Optimized for continuous industrial operation
  • Supports heavy-duty material handling
  • Works in both AC and DC configurations

Control Box

Houses the electrical control systems for safe and precise winch operation.

  • Enables directional control and speed adjustment
  • Supports emergency stop and load monitoring
  • Ensures operational safety in industrial environments

Winch Frame

Provides structural support and alignment for all winch components.

  • Sturdy and vibration-resistant
  • Maintains stability during high-speed lifting
  • Supports safe handling of heavy industrial loads

Wire Rope Guide

Guides wire rope evenly onto the drum to prevent tangling and wear.

  • Prevents rope overlap and damage
  • Ensures smooth high-speed operation
  • Critical for long-distance lifting and repeated cycles

Brake System

Stops and holds heavy loads safely during operation.

  • Mechanical or hydraulic options available
  • Reliable for high-speed stopping
  • Essential for construction, industrial, and port applications
High speed electric winch for sale

High speed winch of electric winch series – optimized for industrial lifting and fast material handling.

High speed electric winch for sale

High speed electric winch – designed for reliable operation in construction, port, and industrial workshops.

High speed electric winch for sale

Electric high-speed winch series – perfect for fast rope winding and heavy load lifting in multiple industrial applications.

High-speed electric winch applications

Explore the typical industrial applications, load capacities, and environments for high-speed and fast electric winches across various sectors.

The electric cable winch not only can be used independently for hoisting, pulling and towing but also can be used as a hoisting components of process cranes, road construction equipment, and mining hoist machine, etc.

The high speed or fast speed electric cable winch are widely used in various industrial sectors due to the features of high versatility, compact structure, small volume, light weight, heavy weight, easy to use and relocate,etc. With process winch design, the fast speed electric winch are widely used in construction site, water conservancy projects, forestry, mining, wharf and other material lifting or towing and other various industrial applications,etc.

Construction & Civil Engineering

Fast electric winches are used for rapid lifting of pre-fabricated concrete panels, steel girders, scaffolding, and modular building sections.

  • Typical Loads: 2–40 tons depending on rope diameter and drum configuration.
  • Ideal for bridges, roads, and high-rise building construction.
  • Dual-drum high-speed operation enables synchronized lifting and time-efficient workflow.

Ports, Docks & Marine Operations

High-speed winches handle rapid loading/unloading of containers, vessels, and dockside equipment.

  • Typical Loads: 5–50 tons per drum.
  • Corrosion-resistant design ensures safe maritime operations.
  • Fast electric winches reduce turnaround time for dockside logistics.

Mining & Quarrying

Used for hauling ores, transporting heavy mining machinery, and moving equipment efficiently in open-pit or underground mines.

  • Typical Loads: 5–35 tons per drum.
  • Friction-geared high-speed drums allow long-distance and safe material transfer.
  • Minimizes operational downtime with fast retrieval and controlled pull.

Water Conservancy & Hydropower Projects

Fast electric winches position turbines, sluice gates, and pre-cast structures quickly and safely.

  • Typical Loads: 10–60 tons.
  • Continuous-duty operation for wet or humid environments.
  • Ensures precise and efficient installation under tight project schedules.

Forestry & Agricultural Applications

Hauling large logs, timber, or heavy agricultural machinery across rugged terrain.

  • Typical Loads: 2–20 tons depending on rope and terrain.
  • High-speed operation allows fast retrieval without rope damage.
  • Dual-drum control ensures precise pulling over slopes or forested areas.

Industrial Workshops & Manufacturing Facilities

Fast lifting and positioning of molds, heavy machine components, and large industrial parts.

  • Typical Loads: 5–30 tons per drum.
  • Synchronized dual-point lifting enables precise and safe movement of oversized components.
  • High-speed winches optimize workflow efficiency in production facilities.

Other Heavy Industries

Used in steel mills, bulk storage, energy projects, and large-scale material handling.

  • Typical Loads: 10–50 tons per rope.
  • Tailored high-speed winches allow long-distance towing and dual-point hoisting.
  • Optimizes productivity in demanding industrial environments.

Customized double drum winch, cost-effective electric winch design

To meet the various industrial needs and your particular application, the tailored electric winch design and fabrication services are available. To provide your the specific fast speed electric winch, please help us to confirm the following information of the fast speed electric winch you need, which including the following;

  • Loading capacity of fast speed electric winch : _____________?(Ton/kN)
  • Working speed of fast speed electric winch : _____________?(m/min)
  • Wire rope length of fast speed electric winch : _____________?(m)
  • Power supply of fast speed electric winch : _____________?
  • Optional power supply of electric winch including 220V/230V/380V/400V/415V/440V,single or three phase, or customized.
  • Functions or usages of fast speed electric winch : _____________? For horizontally pulling or vertically hoisting?
  • Specialized requirements to get tailored fast speed electric winch design.

Send us a inquiry to get your tailored fast speed electric winch design and electric winch price.

QDX 150 ton overhead crane in action in Paraguay. Installation photos, video, and client feedback show performance, safety, and heavy-lifting efficiency.


Free consultation to Confirm Parameters & Specifications and Get

Latest Crane Price & Crane Rate.

  • Types of overhead cranes : _______?
  • Optional: Overhead travelling crane, goliath gantry crane,Slewing jib crane, Single girder or double girder crane,small portable crane or kbk crane, etc.
  • Capacity of overhead crane: _______?
  • Optional: 0.25ton, 0.5 ton, 1 ton, 2 ton, 3ton, 5 ton, 10 ton,15ton, 20ton, 25 ton, 30ton,35ton, up to 550ton, etc.
  • Crane span & lifting height : _______?
  • Crane travelling length : _____?
  • Control of overhead crane:_______?
  • Optional: pendant/ remote/cabin control
  • Voltage supply of overhead crane:_____?
  • Eg,: 380V50/60HZ,3Phase or others,etc.
  • Application/usage of crane:_______?
  • Eg,: Steel mill, ,injection mold, cement,stone, concrete,granite, general manufacturing, etc.
  • Just leave a message via the contact form and our hoist and crane engineer will contact you with in 24working hours.

Get In Touch

Feel Free
to Contact With us