Product Details

Awesome Image

Essential Specifications for Designing an Efficient Overhead Crane Facility Layout

Designing an efficient overhead crane layout involves optimizing space, headroom, load capacity, crane clearance, and safety protocols.

Category: Featured

menu_open Content Quick Link

Your Trusted Overhead Crane Manufacturer & Supplier

Essential Specifications for Designing an Efficient Overhead Crane Facility Layout
Your Handy,Small & Most Economical Gantry

Designing an efficient overhead crane layout involves optimizing space, headroom, load capacity, crane clearance, and safety protocols.

Importance of Overhead Cranes in Industry

Overhead cranes play a vital role in material handling across various industries, including manufacturing, construction, and warehousing. These cranes are designed to lift, move, and position heavy loads with precision and ease. Unlike traditional forklifts, which may require considerable floor space and can be limited in maneuverability, overhead cranes operate above the workspace, freeing up valuable ground area for other operations. This vertical lifting capability allows businesses to handle materials more effectively, improve workflow, and enhance overall productivity.

An efficient facility layout that incorporates overhead cranes provides numerous benefits. First, it streamlines the movement of materials, reducing the time and effort needed to transport goods between workstations. This efficiency not only speeds up production processes but also minimizes labor costs associated with manual material handling. Additionally, a well-planned layout enhances safety by reducing congestion and ensuring that operators have clear pathways to navigate while using cranes. Moreover, by optimizing the placement of cranes and workstations, companies can ensure that equipment is utilized to its fullest potential, leading to better resource management and improved return on investment.

Fundamentals of Facility Layout

Facility layout refers to the arrangement of physical spaces within a facility to support efficient operations. This includes the positioning of equipment, workstations, storage areas, and pathways for the movement of materials and personnel. The primary purpose of an effective facility layout is to facilitate a smooth flow of operations, minimizing unnecessary movement and maximizing the use of available space.

An optimal layout helps streamline processes, reduce operational costs, and enhance productivity. In environments that rely on overhead cranes, the layout must accommodate the crane's operation while also considering the placement of machinery, workstations, and storage. A well-planned facility layout minimizes delays, reduces the risk of accidents, and ensures that all operations can proceed efficiently and safely.

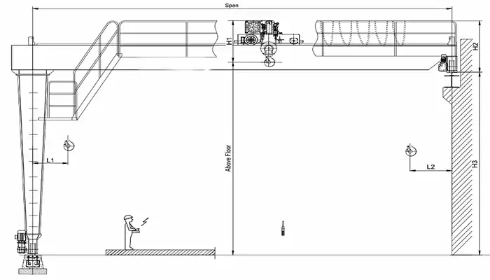
overhead crane specifications required for workshop facility layout planning

Overhead crane specifications required for workshop facility layout planning 

Key Considerations

When designing a facility layout, several key considerations must be taken into account to ensure operational efficiency and safety:

  • Workflow and Operational Processes: The the workflow is critical to designing an effective layout. This involves mapping out how materials will move through the facility, identifying key processes, and ensuring that the layout supports these movements. For overhead cranes, it's essential to position them near areas where heavy lifting occurs, facilitating quick access to materials and reducing travel time between workstations. Additionally, the layout should allow for smooth transitions between different operational areas, such as receiving, storage, production, and shipping.
  • Space Utilization and Safety: Efficient use of space is vital in any facility. This means ensuring that every square foot is optimized for productivity while also providing safe working conditions. Overhead cranes require adequate clearance and support structures, so the layout must accommodate these needs without compromising other operations. Safety is another critical aspect; clear pathways for both crane movement and pedestrian traffic must be established to minimize the risk of accidents. By prioritizing space utilization and safety, organizations can create an environment that fosters productivity while protecting their workforce.

By integrating these key considerations into the design process, businesses can create a facility layout that not only enhances operational efficiency but also supports a safe and productive working environment.

Essential Specifications for Overhead Crane Facility Layout

Spatial Considerations

Spatial considerations are crucial in designing a facility layout that accommodates overhead cranes. These specifications ensure that the crane can operate effectively while maintaining safety and efficiency throughout the workspace.

Ceiling Height

Determining the ceiling height is vital for overhead crane operations. The minimum height should be sufficient to allow for the crane's lifting operations without any obstructions. This involves considering the maximum lifting height of the crane, the load being lifted, and any potential overhead equipment or structures that may interfere with crane operations.

  • Minimum Height: The minimum ceiling height must account for the crane's vertical lift capabilities and the load's overall height. If the crane lifts heavy or oversized loads, the ceiling should be high enough to allow for safe clearance during operation.
  • Maximum Height: While ensuring adequate height for operations, it's also important to avoid excessively high ceilings that could waste energy or increase heating and cooling costs. An optimal ceiling height balances operational needs with cost efficiency.

Footprint

The footprint of the crane refers to the overall area required for its operation, including space for the crane itself and necessary clearances for safe movement and maintenance.

  • Area Requirements: The footprint must accommodate the crane's structure and any additional equipment or supports needed for stability. This includes space for rail systems, hoists, and safety equipment.
  • Clearance Space: Sufficient clearance must be allocated around the crane to allow for safe movement of loads, as well as access for maintenance personnel. This area should be free from obstructions to ensure that the crane can operate without hindrance.

Aisle Width

Aisle width is essential for ensuring safe and efficient crane movement within the facility.

  • Adequate Space: The aisles should be wide enough to accommodate the crane's movement, allowing it to transport loads without risking collisions with other equipment or personnel. The width will depend on the type of crane and the nature of the operations.
  • Safety Considerations: In busy operational areas, wider aisles can help prevent accidents and ensure that operators have sufficient space to maneuver safely. Clear signage and marked pathways can further enhance safety by guiding both crane operators and pedestrians.

By carefully considering these spatial specifications, organizations can create a facility layout that optimally supports overhead crane operations, promoting safety and efficiency throughout the workspace.

Load Specifications

Load specifications are critical in the design of an overhead crane facility layout, as they directly influence the crane selection, operational efficiency, and safety measures. The the characteristics and dynamics of the loads being handled ensures that the facility is equipped to meet operational demands effectively.

Load Capacity

Load capacity refers to the maximum weight that the crane is designed to lift safely.

  • Determining Capacity: It is essential to assess the types of loads the crane will be expected to handle, as this will influence the type of crane selected and its configuration. Each crane model has a specified load limit that should not be exceeded to prevent equipment failure or safety hazards.
  • Safety Margins: When determining load capacity, it is also important to consider safety margins. A conservative approach is advisable; for example, selecting a crane with a capacity exceeding the maximum expected load by a certain percentage can help mitigate risks associated with unexpected loads or dynamic forces during lifting operations.

Load Characteristics

The load characteristics is vital for ensuring safe and efficient handling.

  • Types of Loads: The types of loads that the crane will handle can vary significantly. Common characteristics to consider include size, shape, and material. For example, irregularly shaped or oversized loads may require specialized lifting attachments or additional equipment to ensure stability during transport.
  • Handling Requirements: Different materials may also require specific handling methods. For instance, fragile loads might necessitate gentler lifting techniques, while heavy, dense materials might require robust rigging and stabilization measures. Analyzing these characteristics helps in designing a layout that accommodates the specific needs of each load type.

Load Dynamics

Load dynamics refer to the effects of movement and forces acting on loads during lifting and transportation.

  • Dynamic Loads: When a crane lifts a load, dynamic forces come into play, which can include factors such as acceleration, deceleration, and the potential for swinging. The these forces is crucial for selecting the appropriate crane type and layout to minimize the impact of dynamic loads on both the crane and the facility.
  • Shock Loads: Shock loads occur when a load is suddenly dropped or jerked, leading to increased stress on the crane and structural components. Designing the facility layout to absorb these forces involves ensuring adequate structural support and considering the use of dampers or shock-absorbing systems to protect equipment and enhance safety.

By meticulously considering load specifications, organizations can ensure that their overhead crane facility layout is equipped to handle various loads effectively and safely, ultimately leading to improved operational efficiency and reduced risk of accidents.

Crane Specifications

Crane specifications are pivotal in determining the efficiency and functionality of an overhead crane facility layout. Proper selection and The of these specifications ensure that the crane meets operational demands while maximizing safety and productivity.

Type of Crane

Selecting the appropriate type of crane is crucial based on the specific operational needs of the facility.

Crane Types: The most common types of overhead cranes include bridge cranes, gantry cranes, and jib cranes.

Lifting Height and Span

Lifting height and span are critical specifications that determine the crane's operational range.

  • Lifting Height: This specification indicates the maximum vertical distance that the crane can lift loads above ground level. Adequate lifting height is essential, especially in facilities where tall machinery or storage systems are present. The height must accommodate not only the loads being lifted but also any potential obstacles within the facility.
  • Span: Span refers to the horizontal distance between the crane's support structures. This specification affects the crane's ability to reach various workstations and storage areas. A longer span allows for more extensive coverage of the facility, facilitating the movement of materials and enhancing operational efficiency. However, longer spans may require additional structural support and careful planning to ensure stability during operation.

Each type serves different applications and environments:

Bridge Cranes: These are ideal for large spaces, offering excellent lifting capabilities and the ability to cover expansive areas. They are typically installed on elevated rails and can handle heavy loads efficiently.

single girder overhead eot crane main specifications required for your facility planning

Single girder overhead eot crane main specifications required for your facility planning 

Single gider underslung crane specification drawing for your workshop planning

Single gider underslung crane specification drawing for your workshop planning 

magnetic overhead crane specification for reference, note that the crane capacity should covering the weight of the electric magnetic chucks and spreader

Magnetic overhead crane specification for reference, note that the crane capacity should covering the weight of the electric magnetic chucks and spreader

Grab bucket overhead crane specifications

Grab bucket overhead crane specifications drawing for your reference

Gantry Cranes: These cranes are versatile and can be used in outdoor and indoor settings. They are supported by legs that move along the ground, making them suitable for operations where overhead support structures are unavailable.

Jib Cranes: Jib cranes are best for specific, localized tasks and are particularly useful in confined spaces. They allow for a significant range of motion for lifting and moving loads in a limited are

Pillar mounted jib crane specification drawing

Floor column mounted jib crane specification drawing 

wall mounted jib crane specification drawing

Wall mounted jib crane specification drawing 

 

Operational Needs: Tailoring Crane Type to Facility Requirements

When designing an overhead crane system, the choice of crane type is fundamentally tied to the specific operational needs of the facility. This alignment is critical to ensuring efficiency, safety, and the long-term sustainability of operations. Several factors must be carefully evaluated to ensure the selected crane type supports the facility's intended workflow and operational objectives.

Facility Space Limitations

The available space in the facility is one of the primary considerations when selecting a crane. Cranes like bridge cranes, gantry cranes, or jib cranes require different amounts of overhead clearance and operational space. For example, in facilities with restricted headroom or limited floor space, a low-profile crane or a single girder overhead crane might be a more suitable choice. Evaluating the crane's dimensions relative to the facility layout, including aisle space, wall distance, and clearance requirements, is essential to ensure the crane can operate without obstructing other activities or equipment.

Load Characteristics

Each type of crane has a specific load capacity range and design considerations that make it suitable for different materials, components, or industries. The crane must be chosen based on the size, weight, and type of loads it is expected to handle. For instance, double girder overhead cranes are ideal for heavy loads, while light-duty cranes are best suited for smaller, more frequent handling tasks. Understanding the typical load sizes and the nature of materials being handled — such as heavy machinery, components, or bulk materials — will guide the decision-making process.

Frequency and Intensity of Crane Use

The frequency of crane use, or how often it will be in operation, impacts the choice of crane. In high-cycle environments where cranes are used extensively, such as in automotive manufacturing or steel production, a durable, high-duty cycle crane may be required. In contrast, for infrequent or lighter-duty use, a smaller, more cost-effective crane system could be appropriate. Crane systems also differ in terms of the speed of lifting and hoisting mechanisms, which should be selected based on how fast the facility's workflow demands.

Workflow and Operational Process

The crane system must be seamlessly integrated into the overall workflow of the facility. If materials need to be moved long distances, a bridge crane with a motorized trolley may be required for continuous, efficient movement. In contrast, for more localized, small-scale lifting tasks, a jib crane may be more suitable. Ensuring the crane type supports the flow of operations reduces bottlenecks and improves throughput, enhancing productivity.

Customization and Flexibility

In many industrial settings, customization is key. Cranes with specialized features like remote controls, explosion-proof capabilities, or anti-corrosion coatings might be necessary depending on the environment. For facilities with varying operational needs, modular crane systems, such as KBK crane rails, offer flexibility in adapting to changing workflows or expansion requirements.

In summary, aligning the crane type with the facility's operational needs, load characteristics, and workflow is crucial to achieving optimal efficiency, safety, and cost-effectiveness. Careful analysis of space, load handling requirements, and usage intensity ensures the right crane is chosen to support ongoing operational success.

Control Systems

Control systems are integral to crane operation and play a vital role in ensuring safety and efficiency.Overhead cranes can be operated using several control systems, each with unique benefits and considerations:

Manual Controls

  • Operators manually control the crane's movements.
  • This option offers simplicity and straightforward operation.
  • However, it may lead to a higher risk of human error due to reliance on operator skill.

Electric Controls

  • Electric systems provide more precise and efficient control.
  • They often feature enhancements like variable speed control and advanced safety mechanisms.
  • This type of control can significantly improve operational efficiency, allowing for smoother operations.

Automated Systems

  • Designed for environments prioritizing high efficiency, automated cranes operate with pre-programmed movements.
  • These systems reduce the need for human intervention, enhancing productivity and minimizing accident risks.
  • While they offer numerous benefits, implementing automated systems typically requires a substantial initial investment and operator training.

By thoroughly assessing these control options, organizations can select the most suitable crane type, optimize lifting heights and spans, and implement the right control systems. This strategic approach will ultimately enhance the efficiency and safety of overhead crane operations.

Safety Features

Safety features are essential in overhead crane operations, as they help protect both personnel and equipment from accidents. Implementing robust safety measures in the facility layout ensures a safe working environment and compliance with industry regulations.

Emergency Exits

Planning for emergency exits is critical for ensuring the safety of all personnel in the facility.

  • Safe Exit Routes: Designing clear and accessible exit routes is essential for rapid evacuation during emergencies. These routes should be strategically placed throughout the facility, ensuring that employees can quickly access them without obstruction. Emergency exits should be well-marked, with visible signage and adequate lighting to guide personnel to safety.
  • Accessibility: Emergency exits should be positioned in locations that minimize travel distance from any point in the facility, particularly near high-risk areas where crane operations are prevalent. Regular drills and training should be conducted to familiarize employees with these routes, ensuring they can navigate to safety quickly and efficiently.

Safety Zones

Establishing safety zones around crane operations is vital to prevent accidents and ensure safe interactions between cranes and personnel.

  • Operational Safety Zones: These designated areas around the crane's operational path serve to keep unauthorized personnel away from active lifting operations. Clearly marked safety zones, typically delineated by physical barriers or warning signs, help establish boundaries and communicate to employees where they should not enter during crane operations.
  • Access Management: It's important to implement access control measures to prevent unauthorized entry into these safety zones. This can include physical barriers, such as gates or fencing, and safety training programs to educate personnel on the importance of maintaining a safe distance from crane operations.

Clearance Requirements

Ensuring adequate clearance is essential for safe crane operations and effective workflow.

  • Safe Distances: Proper clearance requirements dictate the necessary distance between the crane's operational area and fixed structures, equipment, and personnel. This space is crucial for preventing accidents, allowing the crane to operate without the risk of collisions.
  • Environmental Considerations: Clearance requirements should take into account the potential for load swing and the dynamic nature of lifting operations. For instance, the layout must ensure that loads can be lifted and moved without obstruction from walls, machinery, or personnel. This may involve maintaining sufficient vertical and horizontal clearances based on the crane's lifting height, span, and load dynamics.
  • Facility Design Integration: When designing the facility layout, it is vital to integrate these clearance requirements to ensure that the operational flow remains efficient while also prioritizing safety. This can involve positioning workstations and equipment thoughtfully, ensuring that they do not infringe upon the required clearance zones.

Incorporating these safety features into the overhead crane facility layout not only enhances operational safety but also fosters a culture of safety within the workplace, ultimately contributing to the overall efficiency and effectiveness of crane operations.

Infrastructure and Support

A solid infrastructure is crucial for the safe and efficient operation of overhead cranes. Proper support ensures that cranes can operate effectively without compromising safety or performance. The following specifications address key infrastructure components necessary for successful crane facility layout planning.

Structural Integrity

The structural integrity of the building is vital for safely accommodating overhead crane operations.

  • Load-Bearing Capacity: It is essential to assess the building's structural capabilities to support the weight of the crane and any loads it will handle. This includes evaluating the strength of beams, columns, and the overall foundation to ensure they can withstand the dynamic forces exerted during lifting operations.
  • Consulting Engineers: Engaging structural engineers during the design phase can help identify potential weaknesses in the building's framework. They can recommend reinforcements or modifications to ensure that the facility meets the necessary load-bearing requirements for safe crane operation.
  • Regular Inspections: Ongoing inspections of the building's structural integrity should be conducted to detect any signs of wear or damage. This proactive approach helps prevent accidents and maintains the safety and reliability of crane operations.

Electrical Supply

Planning for adequate electrical supply is crucial for the reliable operation of overhead cranes.

  • Power Requirements: Determine the electrical power requirements for the crane, including its motors, controls, and any auxiliary systems. Assessing the power demand helps ensure that the electrical supply can handle the crane's needs without risk of overload.
  • Electrical Infrastructure: Design a robust electrical infrastructure that includes power supply lines, distribution panels, and emergency power sources. This infrastructure should be easily accessible for maintenance and repairs while providing reliable power to support continuous operations.
  • Safety Protocols: Implement safety measures such as circuit breakers and emergency shutoff switches to protect against electrical faults. Proper grounding and surge protection should also be established to safeguard the crane's electrical components and enhance overall safety.

Maintenance Access

Designing adequate maintenance access is essential for ensuring the ongoing functionality and safety of overhead cranes.

  • Access Points: Incorporate convenient access points for maintenance personnel to reach the crane and its components without disrupting operations. This includes strategically placed ladders, platforms, or service areas that allow for safe inspection, repairs, and routine maintenance.
  • Workflow Considerations: The design should facilitate efficient movement for maintenance staff, ensuring they can quickly access tools and parts necessary for servicing the crane. This can reduce downtime and help maintain optimal operational efficiency.
  • Safety Measures: Establish safety protocols for maintenance activities, such as lockout/tagout procedures to prevent accidental activation of the crane during servicing. Ensure that maintenance areas are clearly marked and equipped with necessary safety equipment to protect personnel while working.

Integrating these infrastructure and support specifications into the facility layout ensures that overhead cranes operate safely and efficiently, minimizing downtime and enhancing productivity. A well-planned infrastructure not only supports current operations but also allows for future expansion and adaptability to changing needs.

Workflow Design

Effective workflow design is critical for optimizing material handling and enhancing operational efficiency in facilities that utilize overhead cranes. Thoughtfully planned layouts contribute to smoother operations, reduced handling times, and improved productivity. The following specifications focus on two key aspects of workflow design: material flow and workstation arrangement.

Material Flow

Designing layouts that facilitate smooth material handling is essential for maximizing efficiency in operations.

  • Logical Pathways: Establish clear and logical pathways for the movement of materials within the facility. This involves mapping out the routes that cranes, forklifts, and personnel will take to ensure seamless transitions between various work areas. Avoiding unnecessary detours minimizes travel time and enhances productivity.
  • Minimizing Bottlenecks: Identify potential bottlenecks in the workflow and design solutions to alleviate them. This may include widening aisles, creating dedicated lanes for crane operations, or increasing the number of access points to high-traffic areas. A well-structured layout reduces waiting times and keeps operations running smoothly.
  • Integration with Other Equipment: Consider how the overhead crane will interact with other equipment and processes within the facility. Ensure that the layout allows for easy integration between cranes, conveyors, and storage systems. This coordination promotes efficient material handling and streamlines overall operations.

Workstation Arrangement

Positioning workstations strategically is crucial for optimizing productivity and efficiency in the facility.

  • Proximity to Operations: Arrange workstations close to the crane's operational zone to minimize the distance that materials must be transported. This reduces handling time and enables workers to access the crane quickly when needed. A layout that emphasizes proximity enhances collaboration and efficiency in operations.
  • Ergonomics and Safety: Consider ergonomic principles when designing workstation layouts to ensure that employees can perform their tasks comfortably and safely. This includes providing adequate space for movement, proper heights for work surfaces, and accessible tools and materials. An ergonomic design reduces the risk of injuries and promotes employee well-being.
  • Flexibility and Scalability: Design workstations with flexibility in mind to accommodate changes in production demands or workflows. Modular workstations that can be easily reconfigured allow for quick adaptations to evolving operational needs. This scalability ensures that the facility can grow without requiring a complete redesign.

By prioritizing effective material flow and workstation arrangement, facility layouts can significantly enhance the efficiency and productivity of overhead crane operations. A well-designed workflow minimizes unnecessary movement, reduces downtime, and ultimately contributes to a more productive and safer working environment.

Environmental Considerations

In addition to spatial, load, and safety specifications, environmental considerations play a significant role in the design of an efficient overhead crane facility layout. Addressing factors like temperature, humidity, and hazardous materials ensures safe and effective operations while protecting both the workforce and equipment. Below are two crucial aspects of environmental considerations:

Temperature and Humidity Control

Controlling environmental factors such as temperature and humidity is essential for maintaining optimal operational conditions and protecting materials, equipment, and personnel.

  • Impact on Materials and Equipment: Extreme temperature fluctuations and high humidity levels can adversely affect the integrity of materials and the performance of equipment. For example, certain materials may become brittle in cold temperatures or absorb moisture in high humidity, leading to damage or operational inefficiencies. Designing the facility with climate control measures, such as insulation, ventilation, and heating/cooling systems, helps mitigate these risks.
  • Worker Comfort and Productivity: A comfortable working environment is crucial for maintaining employee productivity and safety. Excessive heat or cold can lead to discomfort and fatigue, reducing overall effectiveness. Implementing temperature and humidity control systems creates a pleasant atmosphere for workers, promoting their well-being and ensuring they can perform their tasks efficiently.
  • Regulatory Compliance: Many industries are subject to regulations regarding environmental conditions. Ensuring that the facility meets these standards not only protects employees but also avoids potential legal issues and fines. Properly designed HVAC (heating, ventilation, and air conditioning) systems can help facilities comply with these regulations.

Handling Hazardous Materials

Effective management of hazardous materials is vital for maintaining safety and compliance within the facility.

  • Risk Assessment and Mitigation: Identify and assess the types of hazardous materials that will be present in the facility, such as chemicals, flammable substances, or toxic agents. Implement risk mitigation strategies, including proper storage, handling procedures, and personal protective equipment (PPE) requirements. A thorough The of the risks associated with these materials helps develop appropriate safety protocols.
  • Safety Measures and Training: Establish safety measures tailored to the specific hazardous materials being handled. This may include designing dedicated areas for storage, implementing spill containment measures, and installing proper ventilation systems. Regular safety training for employees on the correct handling procedures and emergency protocols is crucial for preventing accidents and ensuring a safe work environment.
  • Emergency Preparedness: Develop and implement an emergency response plan tailored to the types of hazardous materials in the facility. This plan should include procedures for containment, evacuation routes, and communication protocols. Proper signage and labeling of hazardous areas are also essential for ensuring awareness among employees.

By addressing environmental considerations such as temperature and humidity control and the handling of hazardous materials, facilities can enhance operational efficiency while maintaining a safe and compliant working environment. Thoughtful design and planning in these areas contribute to the overall success of overhead crane operations.

Importance of Specifications

The implementing essential specifications in the design of an overhead crane facility layout is crucial for maximizing operational success. The following sections outline the importance of these specifications in various aspects of facility performance:

Enhancing Operational Efficiency

The specifications of an overhead crane facility layout significantly impact material handling processes, leading to enhanced operational efficiency.

  • Streamlined Processes: Well-defined specifications ensure that the layout supports smooth and efficient material flow. For instance, appropriate aisle widths and crane dimensions facilitate quick movements, minimizing downtime during loading and unloading.
  • Optimized Space Utilization: By considering the spatial requirements of both cranes and workstations, facilities can utilize space more effectively. Efficient layouts minimize wasted space, allowing for more effective inventory management and reducing congestion.
  • Minimized Cycle Times: Specifications related to load handling, such as load capacity and dynamics, help design a system that reduces cycle times for moving materials. Faster cycle times lead to higher throughput, directly affecting productivity and profitability.

Ensuring Safety and Compliance

Safety is a paramount concern in any industrial environment, and specifications play a vital role in maintaining safety standards.

  • Accident Prevention: Specifications such as safety zones, clearance requirements, and emergency exit plans help prevent accidents by ensuring that cranes operate safely and that personnel can move freely without risk of injury.
  • Regulatory Adherence: Compliance with safety regulations and industry standards is essential for avoiding legal issues and ensuring worker safety. Specifications guide the layout design to meet these requirements, creating a safe working environment.
  • Promoting a Safety Culture: A focus on safety specifications fosters a culture of safety within the organization. Employees are more likely to follow safety protocols when they are clearly defined and incorporated into the layout.

Cost-Effectiveness

A well-designed layout that adheres to specifications can lead to significant cost savings for organizations.

  • Reduced Operational Costs: Efficient material handling processes minimize labor costs and reduce wear and tear on equipment. For example, properly designed crane paths prevent unnecessary strain on the crane and reduce maintenance costs.
  • Lower Insurance Premiums: Facilities that prioritize safety and compliance often benefit from lower insurance premiums. By mitigating risks associated with accidents and damages, organizations can save on insurance costs.
  • Resource Optimization: Efficient space utilization and workflow designs minimize the need for excess inventory and storage, allowing organizations to allocate resources more effectively.

Flexibility and Scalability

Considering flexibility and scalability during the design phase ensures that facilities can adapt to future changes.

  • Adapting to Changes: Specifications that account for potential changes in operations allow facilities to adjust quickly to new requirements, such as increased production or different material handling needs. This adaptability is essential for maintaining competitiveness in a dynamic market.
  • Future Expansion: Designing with scalability in mind enables facilities to expand their operations without significant redesign costs. By planning for future growth, organizations can avoid disruptions in productivity.

Boosting Productivity

Efficient crane layout specifications can significantly enhance overall workflow and productivity.

  • Improved Workflow: A thoughtful layout that aligns with operational processes reduces travel times and increases the efficiency of material handling tasks. This streamlined approach allows employees to focus on their work rather than navigating obstacles.
  • Enhanced Employee Morale: A well-organized workspace contributes to employee satisfaction and morale. Workers are more productive when they have a safe and efficient environment to perform their tasks.
  • Maximized Equipment Usage: Proper specifications ensure that cranes and other equipment are utilized to their fullest potential. Effective layouts prevent bottlenecks and ensure that all resources contribute to productivity.

In summary, the importance of adhering to specifications in overhead crane facility layout design cannot be overstated. These specifications enhance operational efficiency, ensure safety, provide cost-effectiveness, allow for flexibility, and ultimately boost productivity. By investing in a well-planned layout, organizations can create a foundation for long-term success.

Case Studies

Case studies provide valuable insights into how organizations successfully implement effective overhead crane layouts. By examining these examples, we can learn from their experiences and apply these lessons to future designs. This section highlights successful implementations and key takeaways from real-world applications.

Successful Implementations

Automotive Manufacturing Facility

In a significant overhaul of an automotive manufacturing plant's overhead crane system, the following enhancements were made to boost operational efficiency:

  • Dedicated Crane Corridors: The layout featured specific corridors designated for crane use, which reduced congestion and allowed for safe, efficient material handling between various production areas.
  • High Ceiling Clearance: The facility optimized its ceiling height to accommodate larger lifting capacities. This adjustment enabled the effective handling of heavy vehicle components without any spatial constraints.
  • Automated Control Systems: By implementing automated crane control systems, the reliance on manual handling was diminished, resulting in increased precision and speed for moving components along the assembly line.

Outcome: These improvements led to a remarkable 30% increase in production efficiency and shorter cycle times, ultimately generating significant cost savings.

Warehouse and Distribution Center

A large warehouse and distribution center focused on logistics leveraged overhead cranes to enhance its material handling processes. Key features included:

  • Customized Load Zones: The facility established dedicated load zones tailored to different types of materials, ensuring efficient handling of various load types without delays.
  • Clear Aisle Widths: Ample aisle widths were designed to facilitate safe crane movement, enabling simultaneous operations in high-traffic areas and improving both safety and productivity.
  • Integrated Safety Features: Clearly marked safety zones and strategically placed emergency exits ensured quick access during emergencies, enhancing overall safety measures.

Outcome: The incorporation of these features resulted in a 25% reduction in operational costs and improved employee safety ratings.

Steel Fabrication Plant

In a steel fabrication plant, the overhead crane layout was reconfigured to accommodate heavy lifting requirements, with notable highlights:

  • Bridge Crane Installation: A new bridge crane was introduced specifically designed to optimize the lifting of large steel beams and materials, tailored to meet particular weight and size requirements.
  • Increased Lifting Span: The design included an expanded lifting span, allowing the crane to reach multiple workstations without the need for operators to manually move heavy loads.
  • Regular Maintenance Access: The layout provided convenient access points for regular maintenance, minimizing downtime and ensuring uninterrupted operations.

Outcome: This redesign resulted in a 40% improvement in lifting efficiency, significantly reducing downtime during maintenance periods.

Key Takeaways

From these successful implementations, several key takeaways emerge that can guide future overhead crane facility layouts:

  • Tailored Design Matters: Each facility has unique operational needs. Customizing the layout based on specific requirements can lead to significant improvements in efficiency and safety.
  • Safety is Paramount: Incorporating safety features into the design, such as clearly marked safety zones and emergency exits, can enhance overall safety and reduce the likelihood of accidents.
  • Workflow Optimization: A well-planned layout that considers material flow and workstation arrangement can streamline operations, reduce travel times, and enhance productivity.
  • Embrace Technology: Utilizing advanced control systems and automation can significantly improve operational efficiency, accuracy, and speed in handling materials.
  • Regular Maintenance Planning: Ensuring easy access for maintenance and inspections is crucial for minimizing downtime and extending the lifespan of crane systems.
  • Continuous Improvement: Organizations should continuously assess and refine their crane layouts and operations based on evolving needs and technological advancements.

By applying these lessons learned from successful implementations, organizations can create efficient and effective overhead crane facility layouts that maximize productivity and safety while minimizing costs.

Conclusion

As we wrap up this comprehensive guide on the essential specifications for designing an efficient overhead crane facility layout, it's vital to summarize the key points and provide actionable recommendations to help organizations optimize their operations.

Essential Specifications

Throughout this guide, we explored several fundamental specifications crucial for designing an effective overhead crane facility layout:

  • Spatial Considerations: The importance of adequate ceiling height, footprint, and aisle width to facilitate safe crane operations.
  • Load Specifications: The load capacity, characteristics, and dynamics to select the right equipment and design for the unique handling requirements of materials.
  • Crane Specifications: Choosing the appropriate crane type, determining lifting height and span, and implementing suitable control systems to enhance operational efficiency.
  • Safety Features: Planning for emergency exits, safety zones, and clearance requirements to protect personnel and equipment.
  • Infrastructure and Support: Assessing structural integrity, ensuring proper electrical supply, and facilitating maintenance access to support crane operations.
  • Workflow Design: Designing for smooth material flow and strategically positioning workstations to optimize productivity.
  • Environmental Considerations: Managing temperature, humidity, and hazardous materials to create a safe and effective working environment.

These specifications collectively contribute to a functional layout that maximizes operational efficiency, enhances safety, and reduces costs.

Final Recommendations

To effectively implement these specifications, organizations should:

  • Conduct Thorough Assessments: Analyze current operations, material handling processes, and space constraints to inform layout design.
  • Engage Stakeholders: Involve relevant stakeholders in the planning process, including operators and safety personnel, to ensure that all needs are considered.
  • Prioritize Safety: Incorporate robust safety features from the outset to foster a culture of safety within the facility.
  • Invest in Technology: Consider advanced control systems and automation to streamline operations and improve efficiency.

Now that you have a clearer The of the essential specifications for designing an overhead crane facility layout, it's time to take action.

  • Evaluate Your Current Layout: Assess your existing facility layout against the specifications discussed in this guide to identify areas for improvement.
  • Plan Your Design: Begin drafting a new or revised layout that incorporates these specifications, keeping in mind your unique operational needs.
  • Consult with Experts: Engage with crane manufacturers, layout planners, and safety consultants to ensure that your design is both practical and compliant with industry standards.

By taking these steps, you can enhance your facility's operational efficiency, safety, and productivity, ultimately leading to a more successful and sustainable operation. Embrace the challenge of designing an effective overhead crane facility layout, and reap the benefits that come with a well-optimized environment.

QDX 150 ton overhead crane in action in Paraguay. Installation photos, video, and client feedback show performance, safety, and heavy-lifting efficiency.


Free consultation to Confirm Parameters & Specifications and Get

Latest Crane Price & Crane Rate.

  • Types of overhead cranes : _______?
  • Optional: Overhead travelling crane, goliath gantry crane,Slewing jib crane, Single girder or double girder crane,small portable crane or kbk crane, etc.
  • Capacity of overhead crane: _______?
  • Optional: 0.25ton, 0.5 ton, 1 ton, 2 ton, 3ton, 5 ton, 10 ton,15ton, 20ton, 25 ton, 30ton,35ton, up to 550ton, etc.
  • Crane span & lifting height : _______?
  • Crane travelling length : _____?
  • Control of overhead crane:_______?
  • Optional: pendant/ remote/cabin control
  • Voltage supply of overhead crane:_____?
  • Eg,: 380V50/60HZ,3Phase or others,etc.
  • Application/usage of crane:_______?
  • Eg,: Steel mill, ,injection mold, cement,stone, concrete,granite, general manufacturing, etc.
  • Just leave a message via the contact form and our hoist and crane engineer will contact you with in 24working hours.

Get In Touch

Feel Free
to Contact With us