Capacity

Awesome Image

Euro Open Winch Heavy Duty Top Running Bridge Crane Specification

Heavy-duty top-running bridge crane with European open winch trolley, low headroom design for heavy loads handling, for various industrial applications.

Category: Hoist and Crane Specifications

Your Trusted Overhead Bridge Crane Manufacturer & Supplier

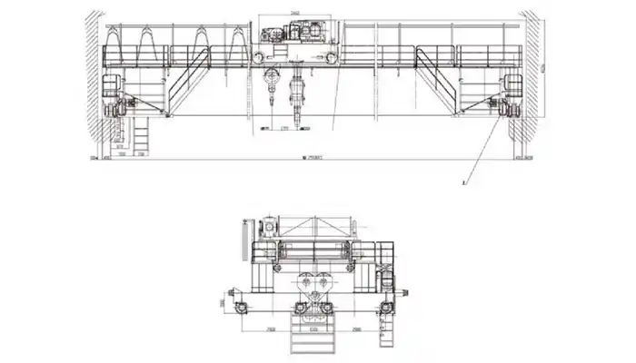
Heavy Duty Top Running Bridge Crane with European Style Double Girder Built-Up Hoist, Specifications, and Applications

A heavy-duty top running crane is a type of overhead crane designed to handle substantial loads with high efficiency and stability. Featuring a top running configuration, this crane operates on elevated rails, allowing it to cover large areas and lift heavy materials safely. The double girder design enhances its strength, providing a robust platform for various hoisting applications. These cranes are essential in industries where high lifting capacities and reliability are crucial for operational success.

The European style double girder built-up open winch hoist is notable for its efficient design and superior performance. This hoist allows for modular construction, meaning it can be easily assembled and maintained, reducing downtime. The open winch design offers better access for inspection and repairs, enhancing overall safety and operational reliability. Its ability to accommodate high lifting capacities while maintaining a compact profile makes it particularly advantageous in tight working environments. This hoist not only improves the crane's lifting efficiency but also ensures longevity and reduced maintenance costs.

Top running crane systems are widely used across multiple industries due to their versatility and strength. In manufacturing, these cranes facilitate assembly line operations by transporting heavy components efficiently. Construction sites benefit from their ability to lift materials like steel beams and concrete panels, making them essential for building projects. In logistics and warehousing, top running cranes streamline the movement of goods, optimizing storage space and enhancing productivity. Additionally, sectors such as shipbuilding and energy rely on these cranes for their ability to handle large, heavy items safely and effectively. Their robust design and operational efficiency make them indispensable tools in today's industrial landscape.

20/5 ton bridge crane with top running double girder design with European style open winch trolley

20/5 ton bridge crane with top running double girder design with European style  open winch trolley 

63 ton/10 ton open winch heavy duty open winch trolley overhead bridge crane

63 ton/10 ton open winch heavy duty open winch trolley overhead bridge crane 

Compact overhead open winch crane design

Compact overhead open winch crane design 

European style open winch trolley for low headroom workshop for heavy load lifting

European style open winch trolley for low headroom workshop for heavy load lifting 

ustomized heavy duty overhead crane, affordable crane price

Customized heavy duty overhead crane, affordable crane price 

Overview of Heavy Duty Double Girder Top Running Bridge Crane

A QDX Heavy Duty Double Girder Top Running Bridge Crane is a robust and versatile lifting solution commonly used in industrial environments where heavy loads are handled. Its design and functionality make it suitable for a wide range of applications, from manufacturing and assembly to warehousing and shipping. Below is a detailed overview of its key characteristics and advantages.

Structural Design

  • Double Girder Configuration: The double girder design enhances load distribution, allowing for a larger span and reducing the need for additional supports. This configuration improves stability and strength, making it ideal for heavy lifting tasks.
  • High-Quality Materials: Constructed from durable steel grades, these cranes are designed to withstand rigorous industrial conditions and heavy workloads, ensuring long-term reliability and performance.

Hoisting Mechanism

  • Built-Up Open Winch Hoist: This type of hoist features a modular design that simplifies maintenance and customization. The open design enhances visibility for operators, improving safety during load handling.
  • Lifting Capacity: These cranes typically have lifting capacities ranging from 10 to 100 tons, providing the flexibility needed for various industrial applications.

Performance Features

  • Variable Frequency Drive (VFD) Technology: This technology ensures smooth acceleration and deceleration, reducing load sway and enhancing operational safety. It also optimizes energy consumption, making the crane more efficient.
  • Advanced Control Systems: These cranes are equipped with user-friendly interfaces that facilitate precise maneuvering and load management, contributing to enhanced safety and efficiency.

Safety Features

  • Overload Protection: Integrated sensors and alarms monitor load conditions in real-time, ensuring that the crane operates within safe limits. Emergency stop functions are also included for immediate response in critical situations.
  • Ergonomic Controls: Designed for operator comfort, the control systems include limit switches and safety controls that prevent over-hoisting and enhance operational safety.

Applications

Heavy Duty Double Girder Top Running Bridge Cranes are widely used in various industries, including:

  • Manufacturing: For assembly lines and heavy lifting tasks.
  • Construction: To lift and move construction materials and equipment.
  • Logistics and Warehousing: In cargo handling and storage systems.
  • Specialized Industries: Such as marine, energy, and steel processing, where heavy materials need to be efficiently managed.

The Heavy Duty Double Girder Top Running Bridge Crane is a crucial piece of equipment for many industrial operations. Its robust construction, efficient hoisting mechanism, and advanced safety features make it an essential tool for enhancing productivity and ensuring safe lifting practices in demanding environments.

Key Specifications

QDX Heavy Duty Bridge Crane Specification 5 Ton & 10 Ton

QDX Heavy Duty Bridge Crane Specification 5 Ton & 10 Ton

Heavy Duty Bridge Crane Specification 5 Ton & 10 Ton

Heavy Duty Bridge Crane Specification 5 Ton & 10 Ton

Heavy Duty Bridge Crane Specification 5 Ton & 10 Ton Low Headroom

Heavy Duty Bridge Crane Specification 5 Ton & 10 Ton Low Headroom 


Lifting Capacity

t

5

10

Span

m

10.5

13.5

16.5

19.5

22.5

25.5

28.5

31.5

10.5

13.5

16.5

19.5

22.5

25.5

28.5

31.5

Lifting Height

16

10

Speed

Lifting

A5

m/min

0.8-8

0.53-5.3

Hoist Travelling

2.1-21

2.1-21

Crane Travelling

3.5-35

4-40

Motor Model

Lifting

KW

YZPEJ132M-4/7.5/1460

YZPEJ160M-4/11/1460

Hoist TravellingCrane Travelling

YZPEJ80M₁-4/2×0.55/1390

YZPEJ80M₂-4/2×0.75/1390

YZPEJ90L

YZPEJ100L₁

YZPEJ100L₁

YZPEJ100L₂

Main Dimensions

H

1438

1488

1635

H1

608

658

805

H2

110

140

H3

57

27

91.5

h

830

K

1400

1400

B

3062

4332

W

2600

3500

Wc

1000

1000

b

175

175

F

16

66

166

266

316

386

436

480

-5

135

145

165

215

265

415

515

S2

1107

1137

S3

1057

1087

Weight

Hoist

kg

1462

2009

Total Weight

6014

7250

8789

11539

12499

15286

16782

20313

8462

9937

11482

3743

15801

17820

21348

24790

Maximum Wheel Pressure

KN

46.4

48.7

52.8

57.3

61.7

67.3

73.9

79.8

77

80

85

90

95

100

110

118

Crane Total Power

KW

11.6

13

16.9

18.5

Recommended Crane Rail

38Kg/m

43Kg/m

Power Supply

Three-Phase AC380V 50HZ

QDX Heavy Duty Bridge Crane Specification 5 Ton & 10 Ton , Low Headroom Design

Lifting Capacity

t

5

10

Span

m

10.5

13.5

16.5

19.5

22.5

25.5

28.5

31.5

10.5

13.5

16.5

19.5

22.5

25.5

28.5

31.5

Lifting Height

16

10

Speed

Lifting

A5

m/min

0.8-8

0.53-5.3

Hoist Travelling

2.1-21

2.1-21

Crane Travelling

3.5-35

4-40

Motor Model

Lifting

KW

YZPEJ132M-4/7.5/1460

YZPEJ160M-4/11/1460

Hoist Travelling

YZPEJ80M₁-4/2×0.55/1390

YZPEJ80M₂-4/2×0.75/1390

Crane Travelling

YZPEJ90L

YZPEJ100L

YZPEJ100L₁

YZPEJ100L₂

Main Dimensions

H

945.5

995.5

1142.5

H1

608

658

805

H2

110

140

H3

57

27

91.5

h

337.5

K

1400

1400

B

3062

4332

W

2600

3500

Wc

1000

1000

b

175

175

F

16

66

166

266

316

386

436

480

-5

135

145

165

215

265

415

515

S2

1107

1137

S3

1057

1087

Weight

Hoist

kg

1462

2009

Total Weight

6014

7250

8789

11539

12499

15286

16782

20313

8462

9937

11482

13743

15801

17820

21348

24790

Maximum Wheel Pressure

KN

46.4

48.7

52.8

57.3

61.7

67.3

73.9

79.8

77

80

85

90

95

100

110

118

Crane Total Power

KW

11.6

13

16.9

18.5

Recommended Crane Rail

38Kg/m

43Kg/m

Power Supply

Three-Phase AC380V 50HZ


QDX Heavy Duty Bridge Crane Specification 16/3.2 Ton & 20/5 Ton

QDX Heavy Duty Bridge Crane Specification 16/3.2 Ton & 20/5 Ton

QDX Heavy Duty Bridge Crane Specification 16/3.2 Ton & 20/5 Ton

QDX Heavy Duty Bridge Crane Specification 16/3.2 Ton & 20/5 Ton, Low Profile Design

QDX Heavy Duty Bridge Crane Specification 16/3.2 Ton & 20/5 Ton, Low Profile Design

Lifting Capacity

t

16/3.2

20/5

Span

m

10.5

13.5

16.5

19.5

22.5

25.5

28.5

31.5

10.5

13.5

16.5

19.5

22.5

25.5

28.5

31.5

Lifting Height

Main Hook

16

16

Auxiliary Hook

18

18

Speed

Main Hoist

A5

m/min

0.5-5

0.5-5

Auxiliary Hoist

0.8-8

0.8-8

Hoist Travelling

2-20

2-20

Crane Travelling

4-40

4-40

Motor

Main Hoist

KW

YZPEJ160L-4/15/1460

YZPEJ180L-4/20/1460

Auxiliary Hoist

YZPEJ132S-4/5.5/1440

YZPEJ160M-4/11/1460

Hoist Travelling

YZPEJ100L₁/2.2/1390

YZPEJ100L₁/2.2/1390

Crane Travelling

YZPEJ112M

YZPEJ112M

YZPEJ132S

Main Dimensions

H

1750

1750

1820

1870

1920

1970

2020

2070

1752

1752

1822

1872

1922

1972

2022

2072

H1

785

785

855

905

955

1005

1055

1105

787

787

857

907

957

1007

1057

1107

H2

140

140

H3

698.5

698.5

628.5

578.5

528.5

478.5

428.5

378.5

700.5

700.5

630.5

580.5

530.5

480.5

430.5

380.5

H4

545

585

h

950

K

2000

2000

B

4340

4340

W

3500

3500

Wc

2000

2000

b

175

175

F

86

88

118

218

318

418

518

618

88

90

120

220

320

420

520

620

S1

640

1137

S2

1670

1087

S3

1530

1137

S4

2600

1087

Weight

Hoist

kg

4963

5163

Total Weight

12338

14178

16172

18767

21115

23947

27482

30313

3594

14899

16922

19474

22143

24623

28414

32053

Maximum Wheel Pressure

KN

108

115

123

131

139

146

157

167

128

135

143

151

159

166

177

187

Crane Total Power

KW

30.7

41.2

44.2

Recommended Crane Rail

43Kg/m

43Kg/m

Power Supply

Three-Phase AC380V 50HZ

QDX Heavy Duty Bridge Crane Specification 16/3.2 Ton & 20/5 Ton, Low Headroom Design

Lifting Capacity

t

16/3.2

20/5

Span

m

10.5

13.5

16.5

19.5

22.5

25.5

28.5

31.5

10.5

13.5

16.5

19.5

22.5

25.5

28.5

31.5

Lifting Height

Main Hook

16

16

Auxiliary Hook

18

18

Speed

Main Hoist

A5

m/min

0.5-5

0.5-5

Auxiliary Hoist

0.8-8

0.8-8

Hoist Travelling

2-20

2-20

Crane Travelling

4-40

4-40

Motor Model

Main Hoist

KW

YZPEJ160L-4/15/1460

YZPEJ180L-4/20/1460

Auxiliary Hoist

YZPEJ132S-4/5.5/1440

YZPEJ160M-4/11/1460

Hoist Travelling

YZPEJ100L₁/2.2/1390

YZPEJ100L,/2.2/1390

Crane Travelling

YZPEJ112M

YZPEJ112M

YZPEJ132S

Main Dimensions

H

1122.5

1122.5

1192.5

1242.5

1292.5

1342.5

1392.5

1442.5

124.5

124.5

194.5

244.5

294.5

1344.5

1394.5

1444.5

H1

785

785

855

905

955

1005

1055

1105

787

787

857

907

957

1007

1057

1107

H2

140

140

H3

698.5

698.5

628.5

578.5

528.5

478.5

428.5

378.5

700.5

700.5

630.5

580.5

530.5

480.5

430.5

380.5

H4

545

585

h

337.5

K

2000

2000

B

4340

4340

W

3500

3500

Wc

2000

2000

b

175

175

F

86

88

118

218

318

418

518

618

0Q 00

90

120

220

320

420

520

620

S1

640

1137

S2

1670

1087

S3

1530

1137

2600

1087

Weight

Hoist

kg

4963

5163

Total Weight

12338

14178

16172

18767

21115

23947

27482

30313

13594

14899

16922

9474

22143

24623

28414

32053

Maximum Wheel Pressure

KN

108

115

123

131

139

146

157

167

128

135

143

151

159

166

177

187

Crane Total Power

KW

30.7

41.2

44.2

Recommended Crane Rail

43Kg/m

43Kg/m

Power Supply

Three-Phase AC380V 50HZ

QDX Heavy Duty Bridge Crane Specification 32/5 Ton & 50/10 Ton

Heavy Duty Bridge Crane Specification 32/5 Ton & 50/10 Ton

Heavy Duty Bridge Crane Specification 32/5 Ton & 50/10 Ton

Heavy Duty Bridge Crane Specification 32/5 Ton & 50/10 Ton, Low Headroom Design

Heavy Duty Bridge Crane Specification 32/5 Ton & 50/10 Ton, Low Headroom Design

Lifting Capacity

t

32/5

50/10

Span

m

10.5

13.5

16.5

19.5

22.5

25.5

28.5

31.5

10.5

13.5

16.5

19.5

22.5

25.5

28.5

31.5

Lifting Height

Main Hook

11

10

Auxiliary Hook

12

12

Speed

Main Hoist

A5

m/min

0.5-5

0.47-4.7

Auxiliary Hoist

0.8-8

0.53-5.3

Hoist Travelling

2-20

2-20

Crane Travelling

4-40

4-40

Motor Model

Main Hoist

KW

YZPEJ225M-6/30/982

YZPEJ280M-8/45/735

Auxiliary Hoist

YZPEJ132M-4/5.5/1440

YZPEJ160M-4/11/1460

Hoist Travelling

YZPEJ90L-4/2×1.5/1410

YZPEJ100L,/2×2.2/1390

Crane Travelling

YZPEJ100L₂-4

YZPEJ112M-4

YZPEJ132S-4

YZPEJ132M-4

Main Dimensions

H

2067

2119

2169

2219

2269

2319

2369

2369

2304

2454

2458

2558

2558

2558

2560

2560

H1

807

859

909

959

1009

1059

1109

1109

894

1044

1048

148

1148

1148

1150

1150

H2

140

140

H3

848.5

796.5

746.5

696.5

646.5

596.5

546.5

546.5

1184.5

1034.5

1030.5

930.5

930.5

930.5

928.5

928.5

H4

571

994

h

1260

1410

K

2500

2500

B

5440

5700

W

4600

4700

Wc

2400

2800

b

175

175

F

153

155

225

355

455

555

655

755

99

124

128

178

328

478

628

730

S1

839

1138.5

S2

2316

2303.5

S3

1696

1923.5

S4

3173

3088.5

Weight

Hoist

kg

7029

9441

Total Weight

16827

19103

21593

24533

27920

31616

34946

38794

20646

24007

27308

30922

34155

38345

41999

45894

Maximum Wheel Pressure

KN

96

103

109

114

120

126

131

137

143

159

168

176

182

190

196

203

Crane Total Power

KW

50.5

54.5

82.4

90.4

Recommended Crane Rail

43Kg/m

43Kg/m

Power Supply

Three-Phase AC380V 50HZ

QDX Heavy Duty Bridge Crane Specification 32/5 Ton & 50/10 Ton, Low Headroom Design

Lifting Capacity

t

32/5

50/10

Span

m

10.5

13.5

16.5

19.5

22.5

25.5

28.5

31.5

10.5

13.5

16.5

19.5

22.5

25.5

28.5

31.5

Lifting Height

Main Hook

11

10

Auxiliary Hook

12

12

Speed

Main Hoist

A5

m/min

0.5-5

0.47-4.7

Auxiliary Hoist

0.8-8

0.53-5.3

Hoist Travelling

2-20

2-20

Crane Travelling

4-40

4-40

Motor Model

Main Hoist

KW

YZPEJ225M-6/30/982

YZPEJ280M-8/45/735

Auxiliary Hoist

YZPEJ132M-4/5.5/1440

YZPEJ160M-4/11/1460

Hoist Travelling

YZPEJ90L-4/2×1.5/1410

YZPEJ100L,/2×2.2/1390

Crane Travelling

YZPEJ100L₂-4

YZPEJ112M-4

YZPEJ132S-4

YZPEJ132M-4

Main Dimensions

H

1257

1309

1359

1409

1459

1509

1559

1559

1394

1544

1548

1648

1648

1648

1650

1650

H1

807

859

909

959

1009

1059

1109

1109

894

1044

1048

1148

1148

1148

1150

1150

H2

140

140

H3

848.5

796.5

746.5

696.5

646.5

596.5

546.5

546.5

1184.5

1034.5

1030.5

930.5

930.5

930.5

928.5

928.5

H4

571

994

h

1260

1410

K

2500

2500

B

5440

5700

W

4600

4700

Wc

2400

2800

b

175

175

F

153

155

225

355

455

555

655

755

99

124

128

178

328

478

628

730

S1

839

1138.5

S2

2316

2303.5

S3

1696

1923.5

S4

3173

3088.5

Weight

Hoist

kg

7029

9441

Total Weight

16827

19103

21593

24533

27920

31616

34946

38794

20646

24007

27308

30922

34155

38345

41999

45894

Maximum Wheel Pressure

KN

96

103

109

114

120

126

131

137

143

159

168

176

182

190

196

203

Crane Total Power

KW

50.5

54.5

82.4

90.4

Recommended Crane Rail

43Kg/m

43Kg/m

Power Supply

Three-Phase AC380V 50HZ

A 6 Working Duty QDX Heavy Duty Bridge Crane Specification 5 Ton and 10 Ton

A 6 Working Duty QDX Heavy Duty Bridge Crane Specification 5 Ton and 10 Ton

A 6 Working Duty QDX Heavy Duty Bridge Crane Specification 5 Ton and 10 Ton

A 6 Working Duty QDX Heavy Duty Bridge Crane Specification 5 Ton and 10 Ton

A 6 Working Duty QDX Heavy Duty Bridge Crane Specification 5 Ton and 10 Ton

Lifting Capacity (t)

5

10

Span S(m)

10.5

13.5

16.5

19.5

22.5

25.5

28.5

31.5

10.5

13.5

16.5

19.5

22.5

25.5

28.5

31.5

Lifting Height(m)

18

18

Working Duty

A6

A6

Lifting Speed(m/
min)

1.07-10.7

0.81-8.1

HoistRunning Speed
(m/min)

3-30

3-30

CraneRunning Speed
(m/min)

6.8-68

6.8-68

Basic Parameters

b

155

155

H1

108.5

158.5

258.5

288.5

290.5

390.5

440.5

490.5

138.5

238.5

290.5

390.5

490.5

590.5

690.5

H2

435.5

503.5

505.5

505.5

555.5

H3

2473.5

2523.5

2623.5

2663.5

2655.5

2755.5

2805.5

2855.5

2503.5

2603.5

2655.5

2755.5

2855.5

2855.5

2955.5

3055.5

H4

1198.5

1268.5

1238.5

1288.5

H5

154.5

86.5

84.5

394.5

344.5

H6

H0

320

340

340

L

3400

5492

5692

5692

5842

L1

3400

4000

4300

4000

4500

L2

L3

396

496

396

L4

1396

1096

996

1196

946

L5

729

879

K

C

C1

1086

1106

C2

1100

1116

Lk

1300

1400

W

1500

1800

Weight(kg)

Hoist

1358

2267

Crane

8400

9620

11190

13063

15183

17520

20447

22424

10344

11718

13718

13760

15511

18264

20863

23111

Recommended Crane Rail

P38  P43

P38  P43

Total Power(kw)

16.5

18.1

22.5

24.5

Maximum Wheel Pressure (KN)

53

57

63

68

76

82

86

87

92

98

103

110

116

121

128

QDX Heavy Duty Bridge Crane Specification 16/5 Ton & 20/5 Ton

Lifting Capacity (t)

16/5

20/5

Span S(m)

10.5

13.5

16.5

19.5

22.5

25.5

28.5

31.5

153

253

353

455

555

655

755

855

Lifting Height(m)

16/18

16/18

Working Duty

A6

A6

Lifting Speed(m/ min

Main Hook0.72-7.2Auxiliary Hook1.07-10.7

Main Hook0.58-5.8Auxiliary Hook1.07-10.7

HoistRunning Speed

3.2-32

3.2-32

CraneRunning Speed (m/min)

5.4-54

4.8-48

5.4-54

4.8-48

Basic Parameters

b

192

192

H1

151

251

351

453

553

653

753

853

153

253

353

455

555

655

755

855

H2

603

605

605

H3

2516

2616

2716

2818

2918

3018

3118

3218

2518

2618

2718

282

2920

30

3120

3220

H4

1500

1600

1602

H5

387

445

H6

290

350

H0

450

450

L

6292

6492

6292

6492

L1

4600

5000

4600

5000

L2

L3

446

446

L4

1496

1696

1496

169

L5

1229

1229

K

C

925

925

C1

800

800

C2

1755

1755

Lk

2500

2500

W

2500

2500

Weight(kg

Hoist

5110

5180

Crane

15292

683

8780

21364

24000

266

29596

32390

15574

17158

19141

22076

24884

27676

3077

33784

Recommended Crane Rail

P43

P43

Total Power(kw)

41.2

43.2

41.2

43.2

Maximum Wheel Pressure (KN)

115

123

130

138

46

154

162

170

132

141

149

158

67

175

184

192

QDX Heavy Duty Bridge Crane Specification 32/5 Ton, 50/10 Ton& 80/20 Ton

Lifting Capacity (t)

32/5

50/10

80/20

Span S(m)

10.5

13.5

16.5

19.5

22.5

25.5

28.5

31.5

10.5

13.5

16.5

19.5

225

25.5

28.5

31.5

10.5

13.5

16.5

19.5

22.5

25.5

28.5

31.5

Lifting Height(m)

16/18

16/18

28/30

Working Duty

A6

A6

M6

Lifting Speed(m/ min

Main Hook0.51-5.1 Auxiliary Hook1.07-10.7

Main Hook0.4-4Auxiliary Hook0.81-8.1

Main Hook0.16-1.56Auxiliary Hook0.58-5.76

HoistRunning Speed

3.3-33

2.9-29

1.56-15.6

CraneRunning Speed
(m/min)

5.4-54

4.8-48

5.4-54

4.8-48

3-30

3-30

Basic Parameters

b

192

192

H1

175

277

377

527

677

777

877

929

229

070

481

681

701

303

100

100

150

250

350

550

750

852

052

H2

685

687

689

709

711

791

793

252

2670

277

2970

3170

3272

3472

H3

254

42

31

42744

28463046

6

3168

3368

1042

1044

H4

1805

1807

1809

1959

196

204

2043

2237

2239

H5

565

563

561

691

689

609

607

H6

650

405

H0

450

450

--

L

6342

6592

6792

-

L1

4600

4900

5100

L2

1900

2000

2100

L3

446

446

--

L4

1296

1246

L5

1229

1379

K

800

900

C

950

1070

--

C1

900

1020

--

C2

1890

2140

Lk

2650

3000

W

2500

2800

Weight(kg)

Hoist

7167

10734

Crane

98072205

492

27450

31113

33 34

37601

41189

2504327746

31299

34676

43343

478665168

3420037600

404004550

51132

56741

6287868827

Recommended Crane Rail

P43

QU70

QU80

Total Power(kw)

43.2

72.5

Maximum Wheel Pressure (KN)

96

103

05

10

20

24

30

35

156

163

170

76

82

88

195

200

249

252

258

261

269

279

288

297

QDX Heavy Duty Bridge Crane Specification 100 Ton

QDX Heavy Duty Bridge Crane Specification 100 Ton

QDX Heavy Duty Bridge Crane Specification 100 Ton

QDX Heavy Duty Bridge Crane Specification 100 Ton

QDX Heavy Duty Bridge Crane Specification 100 Ton

Mechanism Name

Lifting Mechanism

Mechanism Name

Running Mechanism

Main Hoist

Auxiliary Hoist

Hoist

Crane

Lifting Capacity

t

100

20

Gauge

m

4800

32000

Lifting Speed

m/min

0.24-24

0.9/3.6

Running Speed

m/min

2.12-21.2

26.4

Working Duty

M6

Working Duty

M6

M6

Maximum Lifting Height

m

22

23

Base Distance

mm

2600

7600

Power Supply

Three-Phase AC380V 50HZ

Wire Rope

Structure

6×19-24- 2160

6×19-16- 2160

Buffer Stroke

mm

188

240

Number of Strands

16

8

Rail Model

QU80

--

Working Pressure

KN

68

26

Wheel Diameter

mm

φ500

φ500

Drum Diameter

mm

φ800

φ351

Maximum Wheel Pressure

KN

328

378

Motor

Model

YZP225M-4

ZDS51-4

Motor

Model

YZPEJ132M-6

YZPEJ132M-4

Power

KW

45

13

Power

KW

2×5.5

4×7.5

Speed

r/min

1460

1400

Speed

r/min

960

1440

Reducer

Model

P4HM-13- 200-C

20TPlanetary Gearbox

Reducer

Model

BS5.5- 71.12-1

BS11-85.6-1

Gear Ratio

195.588

107.15

Gear Ratio

i

71.12

85.6

Brake

Model

YWZ9-300/ E80

Braking Torque

n×m

630-1000

QDX Heavy Duty Bridge Crane Specification 100 /20 Ton

Capacity

100/20t

Span

32m

Lifting Height

22m

Lifting Speed

Main Hook0.24-2.4m/minAuxiliary Hook0.9-3.6m/minVariable Speed Frequency

Cross Travelling Speed

2.12-21.2m/minVariable Speed Frequency

Crane Travelling Speed

2.64-26.4m/minVariable Speed Frequency

Lifting Motor Power

Main Hook45KWAuxiliary Hook13KW

Hoist Cross Travelling Motor Power

2×5.5KW

Crane Travelling Motor Power

4×7.5KW

Hoist Weight

21t

Crane Structure Selfweight

55.957t

Power Supply Voltage

380V/48V/50HZ

Crane Working Duty

FEM A5

Hoist Travelling

FEM M6(2m)

Crane Travelling

FEM M6(2m)

Crane Power

199KW

Maximum Wheel Pressure

378KN

Item

Lifting Mechanism

Mechanism Name

Running Mechanism

Main Hoist

Auxiliary Hoist

Hoist

Crane

Lifting Capacity

t

150

30

Gauge

m

3.9

29.1

Lifting Speed

m/min

0.16-1.6

0.4-4.2

Running Speed

m/min

2.2-22

4-40

Working Duty

M6

M6

Working Duty

M6

M6

Maximum Lifting Height

m

21.5

21.5

Buffer Stroke

mm

94

188

Total Power of All Motors

KW

100

Maximum Wheel Pressure

KN

472

542

Power Supply

Three-Phase AC380V 50HZ

Rail Model

QU100

QU100

QDX Heavy Duty Bridge Crane Specification 150 /30 Ton with Builtup Open Winch Trolly

QDX Heavy Duty Bridge Crane Specification 150 Ton with Builtup Open Winch Trolley

QDX Heavy Duty Bridge Crane Specification 150 Ton with Builtup Open Winch Trolley

QDX Heavy Duty Bridge Crane Specification 150 Ton with Builtup Open Winch Trolley

QDX Heavy Duty Bridge Crane Specification 150 Ton with Builtup Open Winch Trolley

Capacity

150/30t

Span

29.1m

Lifting Height

21.5m

Lifting Speed

Main Hook0.16-1.6m/minAuxiliary Hook0.4-4.2m/minVariable Speed Frequency

Cross Travelling Speed

2.2-22m/minVariable Speed Frequency

Crane Travelling Speed

4-40m/minVariable Speed Frequency

Lifting Motor Power

Main Hook45KWAuxiliary Hook22KW

Hoist Cross Travelling Motor Power

2×5.5KW

Crane Travelling Motor Power

4×7.5KW

Hoist Weight

23t

Crane Structure Selfweight

65.378t

Power Supply Voltage

380V/48V/50HZ

Crane Working Duty

FEM A5

Hoist Travelling

FEM M6(2m)

Crane Travelling

FEM M6(2m)

Crane Power

100KW

Maximum Wheel Pressure

542KN

QDX Heavy Duty Bridge Crane Specification 200 ton

QDX Heavy Duty Bridge Crane Specification 200 ton

QDX Heavy Duty Bridge Crane Specification 200 ton

QDX Heavy Duty Bridge Crane Specification 200 ton

QDX Heavy Duty Bridge Crane Specification 200 ton

Capacity

200/20t

Span

28m

Lifting Height

14m

Lifting Speed

Main Hook0.15-1.5m/minAuxiliary Hook0.9-3.6m/minVariable Speed Frequency

Cross Travelling Speed

2.12-21.2m/minVariable Speed Frequency

Crane Travelling Speed

2.64-26.4m/minVariable Speed Frequency

Lifting Motor Power

Main Hook55KWAuxiliary Hook13KW

Hoist Cross Travelling Motor Power

2×5.5KW

Crane Travelling Motor Power

4×7.5KW

Hoist Weight

27t

Crane Structure Selfweight

55.957t

Power Supply Voltage

380V/48V/50HZ

Crane Working Duty

FEM A5

Hoist Travelling

FEM M6(2m)

Crane Travelling

FEM M6(2m)

Crane Power

109KW

Maximum Wheel Pressure

378KN

Structural Characteristics

Top Running Double Girder Crane Configuration

  • Load Distribution and Stability: The double girder design enhances load distribution, allowing for a larger span between supports. This reduces the need for additional structural reinforcements, optimizing floor space and minimizing construction costs.
  • Even Load Distribution: The configuration ensures that loads are uniformly spread across the entire structure. This not only reduces stress on individual components but also improves the overall stability and safety of the crane during operations.

Materials and Construction

  • High-Quality Steel: Heavy-duty top running cranes are made from premium-grade steel, ensuring exceptional strength and longevity. These materials are specifically chosen for their ability to withstand extreme industrial conditions and high workload demands.
  • Durability in Harsh Environments: The construction materials are designed to resist corrosion, wear, and tear, maintaining structural integrity over time. This durability is crucial for operations in environments with heavy use or exposure to challenging elements.
  • Rigorous Quality Control: Strict quality assurance processes during manufacturing guarantee that each crane meets high-performance standards, ensuring reliability and safety in all operational scenarios.
Weight and Dimensions
  • Customizable Specifications: The dimensions of top running bridge cranes are adaptable to meet specific operational needs. Key specifications include height, width, and span, which can be tailored based on the facility's layout.
  • Efficiency in Limited Spaces: For facilities with restricted headroom or space constraints, cranes can be designed to operate efficiently without sacrificing safety. This customization helps maximize the utility of available workspace, allowing for seamless integration into existing operations.

These structural characteristics contribute significantly to the effectiveness and safety of top running cranes in various industrial applications, ensuring they can handle demanding lifting tasks while maintaining reliability and performance.

Weight Specifications: The weight of the crane itself is an important consideration, as it affects the structural requirements of the supporting building. Manufacturers provide detailed weight specifications to help determine the necessary load-bearing capabilities of the installation site.

Dimensional Guidelines:

  • Span: The distance between the crane's support columns, which can typically range from 10 to 40 meters or more, depending on the application.
  • Height: Clearance height requirements, which ensure adequate space for lifting operations. This can vary based on the specific needs of the facility.
  • Width: The overall width of the crane, which must be considered in relation to the available space in the installation area.

Hoisting Mechanism

Built-Up Open Winch Hoist Design

  • Modular Construction: The built-up open winch hoist features a modular design that allows for easy maintenance and customization. This modularity can simplify repairs and reduce downtime, as individual components can be replaced without needing to disassemble the entire hoist.
  • Efficiency and Performance: The open winch design promotes efficient heat dissipation, allowing for longer operating periods without overheating. It typically incorporates a gear-driven mechanism that ensures smooth operation and precise load control.
Load Capacity Ranges
  • Standard Load Capacities: Top running cranes with built-up open winch hoists generally have load capacities that range from 10 to 100 tons, catering to various industrial needs. The choice of load capacity must align with the specific lifting requirements of the application.
  • Custom Capacity Options: Some manufacturers offer customization for load capacities beyond the standard range, enabling facilities to tailor cranes to their unique operational demands. This flexibility ensures that the crane can handle specific tasks effectively and safely.

By adhering to these detailed specifications, manufacturers ensure that their top running cranes meet the rigorous demands of industrial applications while maintaining safety and efficiency standards.

Hoist Speed
  • Variable Speed Options: Top running overhead cranes come equipped with variable speed capabilities, allowing operators to adjust lifting and lowering speeds according to specific requirements. This feature enhances operational efficiency, particularly when handling fragile or precise loads.
  • Safety Enhancements: By enabling smoother transitions and reducing the risk of sudden movements, variable speed control contributes to improved safety for both operators and nearby personnel. This control feature is essential for maintaining high safety standards in dynamic work environments.

Overall, the hoist mechanism of top running cranes is engineered for efficiency, flexibility, and safety, making them well-suited for a wide range of industrial applications.

Performance Features

Variable Frequency Drive (VFD) Technology

  • Smooth Operation: VFD technology allows for gradual acceleration and deceleration, which significantly reduces jerking motions during lifting. This smooth operation minimizes the risk of load sway, ensuring that loads are positioned accurately.
  • Energy Efficiency: By adjusting the motor speed to match load requirements, VFDs optimize energy consumption. This leads to lower operational costs and a reduced environmental impact, making cranes more sustainable.
  • Enhanced Safety: The technology allows for controlled speed adjustments, which improves safety during both lifting and lowering operations. Operators can execute delicate tasks with greater confidence, knowing that the system is designed to respond smoothly to inputs.
Control Systems
  • Precision Maneuvering: Advanced control systems facilitate precise movements of the crane. Operators can easily adjust the crane's speed and direction, allowing for intricate handling of heavy or delicate loads.
  • Safety Features: Integrated overload protection systems monitor weight limits in real-time, preventing the crane from operating beyond its capacity. Automatic braking mechanisms ensure quick halting of the load in case of emergency, enhancing safety during operations.
  • User-Friendly Interfaces: Intuitive control panels and joysticks simplify the operator's task, reducing the learning curve for new users. Features like visual displays and feedback systems provide real-time data on load status and crane performance.
  • Programmable Functions: Many advanced control systems allow for programmable lifting patterns and routines, increasing efficiency in repetitive tasks. Operators can pre-set lifting sequences, reducing the time needed for setup and enhancing productivity.

These performance features collectively improve the operational efficiency, safety, and precision of top running crane systems, making them essential for heavy-duty lifting applications across various industries.

Lifting Speed and Efficiency Ratings

  • Lifting Speed: The lifting speed of a top running crane with a built-up open winch hoist typically ranges from 5 to 20 meters per minute, depending on the load and application requirements. This speed ensures efficient handling of materials while allowing for precise load positioning.
  • Efficiency Ratings: Performance efficiency is measured through energy consumption and operational output. Many modern cranes utilize variable frequency drives (VFDs) to optimize motor performance, which enhances energy efficiency by adjusting the speed based on load conditions. This results in reduced operational costs and improved productivity.
Duty Cycle and Operational Limits
  • Duty Cycle: The duty cycle refers to the frequency and duration of operations a crane can perform within a specified time frame. Typical duty cycles for heavy-duty cranes may include classifications such as:
  • Heavy Duty: Designed for continuous operation, often with frequent lifting and lowering of heavy loads.
  • Moderate Duty: Suitable for less frequent operations, typically in environments where heavy lifting is required but not continuously.
  • Operational Limits: Each crane is designed with specific operational limits, including maximum lifting capacities, reach, and speed. Adhering to these limits is crucial for ensuring safety and prolonging the lifespan of the equipment.
Environmental Considerations
  • Temperature: Performance specifications often include operational temperature ranges, which can vary based on the materials used in the crane's construction. Standard operating temperatures may range from -20°C to 40°C, with options for extreme conditions available.
  • Humidity: The design must consider humidity levels, especially in environments prone to corrosion or moisture exposure. Cranes intended for high-humidity areas may feature enhanced corrosion-resistant coatings and sealed components to protect internal mechanisms.
  • Dust and Contaminants: For cranes operating in dusty or contaminated environments, manufacturers may recommend specific filtration systems or protective measures to ensure the longevity and reliability of the hoist and operational systems.

By focusing on these performance specifications, manufacturers can ensure that top running cranes are not only effective in their lifting capabilities but also reliable in a variety of challenging operational environments.

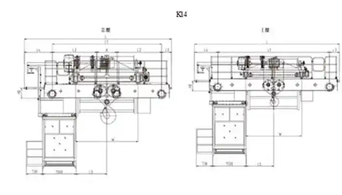
Key Components

Main Girder

The main girder serves as the backbone of the top running bridge crane, providing essential strength and rigidity necessary for lifting heavy loads.

  • Design for Strength and Stability: The girder is engineered to distribute weight evenly, minimizing deflection and ensuring stable operation. This design is crucial for maintaining balance, especially during heavy lifts.
  • Material Quality: High-grade steel is typically used, ensuring excellent tensile strength and durability. This choice of materials contributes to the overall longevity of the crane, reducing the need for frequent replacements.
  • Weld Quality and Integrity: Automated welding processes, along with non-destructive testing methods, ensure that welds are strong and free from defects, enhancing the girder's structural integrity.

Hoisting Mechanism

The built-up open winch hoist is a vital component that determines the crane's lifting capabilities.

  • High Lifting Capacities: Designed to handle loads ranging from 10 to 100 tons, the hoist accommodates various industrial applications, from manufacturing to construction.
  • Modular Design Features: This design allows for easy access during maintenance, ensuring that repairs can be performed quickly, minimizing downtime. Additionally, customization options enable users to tailor the hoist to specific operational needs.
  • Enhanced Visibility: The open winch configuration provides operators with a clear line of sight to the load, improving safety and accuracy during lifting operations.

Trolley System

The trolley system facilitates the horizontal movement of the load across the crane's span.

  • Smooth Movement: Precision engineering in the trolley design minimizes friction and wear, enabling seamless travel along the girder. This feature is crucial for maintaining operational efficiency.
  • Stability During Operation: The trolley is designed to remain stable even at maximum load capacity, reducing the risk of sway or tipping during lateral movements.
  • Ease of Positioning: With a well-designed trolley system, operators can position loads with greater accuracy, enhancing productivity and reducing the potential for accidents.
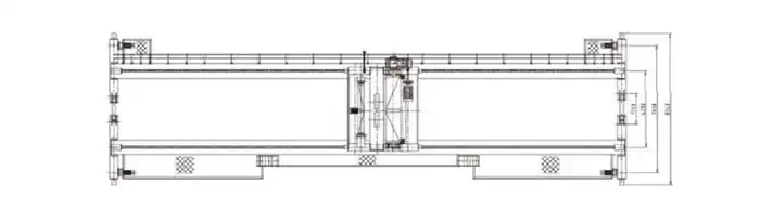
Main Parts of European style open winch: Hoisting motor, Hoisting brake, Hoisting speedreducer gear box,

Main Parts of European style open winch: Hoisting motor, Hoisting brake, Hoisting speedreducer gear box,

Main parts and components of European style heavy duty open winch: Wire rope drum, Wire rope, Electrical Control, Hook

Main parts and components of European style heavy duty open winch: Wire rope drum, Wire rope, Electrical Control, Hook

Control System

An effective control system is essential for the safe and efficient operation of top running overhead cranes.

  • Ergonomic Interfaces: Controls are designed to be intuitive, allowing operators to manage lifting and movement functions with ease. Ergonomic design minimizes operator fatigue during long shifts.
  • Advanced Safety Features: The control system incorporates emergency stop buttons, overload indicators, and real-time monitoring to enhance safety. Operators receive immediate alerts regarding any operational issues, allowing for prompt action.
  • Precision Maneuvering: Advanced control technology enables fine adjustments in load positioning, crucial in environments where precision is paramount.

Safety Devices

Safety devices are integral to the design and functionality of heavy-duty top running cranes, ensuring safe operation in various environments.

  • Overload Protection Systems: These sensors prevent the crane from lifting beyond its rated capacity, significantly reducing the risk of accidents caused by overloading.
  • Limit Switches: Installed to control the maximum lifting height, limit switches prevent loads from being hoisted too high, protecting both the crane and surrounding structures.
  • Alarm Systems: Real-time alarms alert operators to potential issues, such as overloads or mechanical failures, providing an additional layer of safety and promoting proactive maintenance.

Benefits

Enhanced Performance

Top running cranes significantly improve operational efficiency in heavy lifting scenarios.

  • Increased Efficiency: The advanced engineering and design of these cranes facilitate faster lifting and movement of heavy loads. This enhanced performance is crucial in environments where time is a critical factor, such as manufacturing and logistics.
  • Precision Handling: The ability to position loads accurately reduces the time spent on adjustments, allowing for smoother workflows and increased productivity.

Space Optimization

The design of top running bridge cranes effectively utilizes available space in industrial settings.

  • Minimized Space Requirements: The compact nature of the top running configuration allows for higher hook lifts and narrower spans. This design feature maximizes usable workspace beneath the crane, enabling more efficient layout options within the facility.
  • Flexible Layouts: Industries can configure their operations more effectively, accommodating various machinery and workflows without compromising on safety or accessibility.

Reduced Operating Costs

Operating a top running overhead crane can lead to significant cost savings.

  • Energy-Efficient Operation: The implementation of variable frequency drives and other energy-saving technologies lowers electricity consumption during operation, which translates to reduced energy costs.
  • Low Maintenance Requirements: The durable construction and modular design minimize maintenance needs, allowing for fewer interruptions in operation and lower overall maintenance expenses.

Improved Safety

Safety is paramount in any lifting operation, and top running cranes incorporate several features to enhance it.

  • Advanced Safety Features: With systems for overload protection, limit switches, and emergency stop functions, these cranes are designed to prevent accidents and safeguard operators.
  • Reduced Risks: Enhanced monitoring and real-time feedback systems contribute to a safer working environment, helping to identify potential issues before they lead to incidents.

Versatile Applications

Top running crane systems are adaptable to a wide range of industries and tasks.

  • Suitability for Various Industries: These cranes are utilized in manufacturing, construction, warehouses, and more, proving their versatility across different applications.
  • Diverse Lifting Tasks: From heavy machinery to precise assembly operations, top running cranes can handle an array of lifting challenges, making them a valuable asset for any industrial operation.

Safety Features

Overload Protection Systems

Ensuring the safe operation of top running cranes is paramount, and overload protection systems play a crucial role.

Sensors and Alarms

  • Real-Time Monitoring: These systems continuously assess the load being lifted, providing instant feedback to the operator.
  • Alerts: When loads exceed safety limits, alarms are triggered, warning operators to take immediate action, thus preventing potential accidents.
Emergency Stop Functions
  • Immediate Response Capabilities: Top running cranes are equipped with easily accessible emergency stop buttons that immediately halt all operations. This feature is critical during emergencies, allowing for quick intervention to protect personnel and equipment.

Braking Systems

The braking systems in top running bridge cranes are designed for reliability and efficiency.

Electromagnetic and Disc Brakes

  • Reliable Performance: These brakes are engineered to provide strong stopping power, essential for safe load handling in industrial environments.
  • Maintenance-Free Operation: The design of these braking systems minimizes the need for regular maintenance, reducing downtime and operational costs.
Wear Monitoring Features
  • Automatic Alerts: Integrated sensors monitor brake pad wear and provide alerts when maintenance is needed, ensuring that operators are always aware of the system's condition and can act before issues arise.

Ergonomic Control Systems

Operator comfort and safety are enhanced through thoughtful design of the control systems.

Operator Cabin Design

  • Comfort and Visibility: The operator cabin is designed with ergonomics in mind, featuring adjustable seating, ample space, and large windows for maximum visibility of the work area.
  • User-Friendly Interfaces: Controls are strategically placed to reduce strain and allow for easy access, enabling operators to focus on their tasks without distraction.
Limit Switches and Safety Controls
  • Over-Hoisting Prevention: Limit switches are installed to prevent the hook from exceeding its safe lifting height, significantly reducing the risk of accidents.
  • Safety Controls: Additional safety mechanisms ensure that cranes operate within designated parameters, further enhancing operational safety.

Maintenance and Durability

Low Maintenance Requirements

Maintaining top running cranes is crucial for ensuring their longevity and reliable operation.

Durable Materials

  • Selection of Components: Top running overhead cranes are constructed using high-quality materials that resist wear and tear. Components are engineered to withstand heavy loads and harsh working environments, reducing the frequency of repairs and replacements.
  • Extended Lifespan: The use of robust materials contributes to the overall durability of the crane, minimizing downtime and maintenance costs.
Maintenance Best Practices
  • Recommended Schedules: Adhering to a regular maintenance schedule is essential. Operators should follow manufacturer guidelines for inspections and servicing to identify potential issues before they escalate.
  • Procedures: Implementing systematic maintenance procedures, such as routine lubrication and inspections of critical components, helps maintain optimal performance and safety.

Long-Term Durability

The longevity of top running cranes is enhanced through specific design and maintenance strategies.

Corrosion-Resistant Coatings

  • Enhancements for Lifespan: Many components are treated with corrosion-resistant coatings, protecting them from environmental factors such as moisture, chemicals, and temperature fluctuations. This treatment significantly extends the lifespan of the equipment, particularly in challenging industrial settings.
  • Durability Under Various Conditions: Coatings are designed to endure diverse operating conditions, ensuring that the crane maintains its integrity and functionality over time.
Quality Assurance Measures
  • Testing Standards: Rigorous testing protocols are employed during the manufacturing process to ensure that each crane meets industry standards for performance and safety. This includes stress testing and operational assessments to confirm reliability.
  • Continuous Improvement: Manufacturers implement quality assurance measures that focus on continual improvement, incorporating feedback from real-world applications to enhance design and functionality over time.

 

Applications

Industrial Applications

Top running cranes are essential in various industrial settings, providing reliable lifting solutions for heavy tasks.

Manufacturing Facilities

  • Use in Assembly Lines: These cranes are widely used in manufacturing plants to assist with the assembly process. They facilitate the movement of heavy components, ensuring efficient workflow and reducing manual labor.
  • Heavy Lifting Tasks: In sectors like automotive and aerospace, top running cranes are crucial for lifting and positioning large parts, enhancing productivity and safety.
Construction Sites
  • Role in Lifting Construction Materials: On construction sites, top running cranes play a vital role in lifting and transporting materials such as steel beams, concrete blocks, and prefabricated structures. Their capacity to handle significant weights makes them indispensable for large-scale projects.
  • Equipment Handling: These cranes also assist in moving heavy machinery and equipment around the site, contributing to more efficient project timelines.

Logistics and Warehousing

Top running cranes streamline operations in logistics and warehousing, enhancing efficiency and safety.

Cargo Handling
  • Integration into Storage Systems: In warehouses, these cranes are integrated into storage and retrieval systems, allowing for rapid movement of goods. Their ability to lift heavy cargo helps optimize space and improve inventory management.
  • Efficient Operations: By facilitating quick loading and unloading of materials, top running cranes enhance overall productivity and reduce turnaround times in shipping and receiving processes.

Specialized Industries

In addition to general industrial use, top running cranes are pivotal in specialized sectors.

Marine and Shipbuilding

  • Applications in Building and Repairing Ships: In the maritime industry, top running cranes are used for lifting and positioning large ship components, making them essential for both construction and repair activities.
  • Heavy Equipment Handling: These cranes also handle heavy marine equipment, ensuring safe and efficient operations in shipyards.
Energy Sector
  • Utilization in Wind Turbine Operations: Top running cranes are critical in the energy sector, particularly in the installation and maintenance of wind turbines. They lift heavy turbine components into place, ensuring precision and safety.
  • Support for Other Energy Projects: These cranes also support various energy-related projects, including oil and gas, where heavy lifting is a regular requirement.

Steel and Metal Processing

  • Handling Heavy Materials: In steel mills and metal processing facilities, top running cranes are vital for moving large steel rolls, plates, and other heavy materials. Their robust design allows for efficient handling of these cumbersome loads, improving productivity and safety in the processing environment.
  • Integration in Production Lines: These cranes are often integrated into production lines, facilitating the seamless movement of materials from one processing stage to another.

Conclusion

The heavy-duty top running bridge crane with a European-style double girder built-up open winch hoist offers numerous advantages, including enhanced performance in heavy lifting operations, optimized use of space, and reduced operational costs. Its advanced safety features significantly mitigate risks, making it a versatile solution for various industries.

Choosing a reputable manufacturer is critical to ensuring the quality, safety, and performance of top running crane systems. A reliable manufacturer provides not only robust engineering and construction but also comprehensive support, including installation, maintenance, and adherence to industry standards. This partnership is essential for maximizing the crane's lifespan and operational efficiency.

QDX 150 ton overhead crane in action in Paraguay. Installation photos, video, and client feedback show performance, safety, and heavy-lifting efficiency.


Free consultation to Confirm Parameters & Specifications and Get

Latest Crane Price & Crane Rate.

  • Types of overhead cranes : _______?
  • Optional: Overhead travelling crane, goliath gantry crane,Slewing jib crane, Single girder or double girder crane,small portable crane or kbk crane, etc.
  • Capacity of overhead crane: _______?
  • Optional: 0.25ton, 0.5 ton, 1 ton, 2 ton, 3ton, 5 ton, 10 ton,15ton, 20ton, 25 ton, 30ton,35ton, up to 550ton, etc.
  • Crane span & lifting height : _______?
  • Crane travelling length : _____?
  • Control of overhead crane:_______?
  • Optional: pendant/ remote/cabin control
  • Voltage supply of overhead crane:_____?
  • Eg,: 380V50/60HZ,3Phase or others,etc.
  • Application/usage of crane:_______?
  • Eg,: Steel mill, ,injection mold, cement,stone, concrete,granite, general manufacturing, etc.
  • Just leave a message via the contact form and our hoist and crane engineer will contact you with in 24working hours.

Get In Touch

Feel Free
to Contact With us