What Type of Overhead Crane Is Used for Waste Incinerator?


What type of overhead crane is used for waste incinerator?

What type of crane is used for waste to energy incinerator or garbage incinerator? Waste incineration was developed with the development of the times, and which has grown to be a very crucial problem. The garbage handling grab bridge crane is the most important piece of rubbish incinerator equipment. The garbage grab bridge crane is a type of grab bucket overhead crane, whose primary functions are garbage handling, treatment, mixing, metering, and others, etc.

The garbage grab overhead crane is designed to be reliable and with high quality to prevent failures due to the challenging operating conditions. When the failure happens, the rubbish incinerator power plant as a whole can stop operating, which is not supposed to seen. Therefore, it is vital to custom the overhead crane for your particular application and wast handling requirement. Contact us today to get your wast handling grab overhead cranes in accordance with the requirements and workings of the waste incineration power plant.

Garbage grab overhead crane

The garbage grab overhead crane is the core equipment of the garbage disposal system in various municipal waste incineration power plants, located above the rubbish storage pit, to handle the feeding, handling, mixing, picking, and weighing of garbage.

Garbage handling crane -processed overhead crane with grab bucket

Garbage handling crane -processed overhead crane with grab bucket

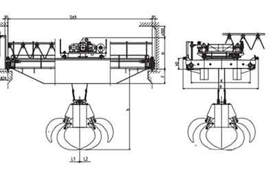
Overhead crane with clamshell grab bucket drawing

Overhead crane with clamshell grab bucket drawing 

Garbage grab overhead crane is a type of special-purpose overhead crane. Its main components include a grab bucket, a hoisting device, a traveling device, a cable hanging device, an operation control device, a weighing device, and a safety protection device, and the entire mechanism is operated in a fixed operating room.

To ensure the stable operation of the waste incineration power plant, the garbage grab overhead crane can carry out precise lifting and transport operations. The overehad crane can also adopt manual, semi-automatic, and automatic control.

Features of grab overhead crane for garbage grab overhead crane

-High wear resistance

When the cable is coiled and uncoiled in a drum, it will cause a significant amount of friction; the tensile strength of the cable's outer sheath should be between 22 and 35 MPA to withstand long-term friction and ensure no damage to drum.

- Water resistance and corrosion resistance

Due to the harsh application conditions and heavy material handling , water or corrosive liquids may be produced; therefore, the cable needs to have the reliable features to resistant the corrosion.

-  Hydraulic grab bucket

Electric hydraulic grabs are designed to handle bulk, granular, and irregularly shaped bulk materials such as coke, pig iron, scrap steel, slag, rubbish, and waste rock.

- Anti swing & precision positioning

Our group's independent R&D on 'anti swing automatic precision positioning control technology' fills a technical gap in this field in China. The anti-swing control reduces the load swing range of the grab bucket crane by more than 95% (after actual measurement, the swing angle is less than 0.2 degrees); the control accuracy of the automatic precision positioning control function of this technique is 2 millimeters.

Advantages of anti swing and automatic grab bucket cranes

The following are the benefits of 'anti swing automatic precision positioning control technology':

  • - By eliminating the time of halting the load swings , the waste handling crane's efficiency is increased by more than 30%.
  • - It can increase crane safety and reduce the risk of injury to workers in the hoisting and operating areas.
  • - Fully automated crane allows for the automatic grabing material and loads from a fixed point.
  • - Increase the grab bridge crane's safe running speed and overall working efficiency.
  • - Make the waste handling crane simple to operate, reducing training time and staff labor intensity.
  • - Increase the crane's safe working space.
  • - Extend the mechanical service life of the eot crane.

In comparison to general overhead cranes, the garbage grab overhead crane is used to grab unshaped domestic garbage, but also to stir the garbage, partition stack it, and do preliminary fermentation of the garbage in the garbage storage pit.

Main specifications of garbage handling grab overhead crane 8 ton, 10 ton, 12.5 ton

Productivity

t/d

800 - 1000

1000 - 1200

1200 - 1500

Capacity

t

8 ton

10 ton

12.5 ton

Volume of Grab

5

6.3

8

Span

m

22.5

25.5

28.5

31.5

19.5

22.5

25.5

28.5

31.5

19.5

22.5

25.5

28.5

31.5

Lifting Height

34

36

36

Working Class

A8

A8

A8

Speed

Lifting

m/min

Up 4.5 - 45

Up 4.5 - 45

Up 5 - 50

Down 6 - 60

Down 6 - 60

Down 7 - 65

Trolley Travelling

4.5 - 45

4.85 - 48.5

5 - 50

Cart Travelling

4.8 - 48

6.5 - 65

7 - 70

Limit Dimension

L1

mm

2600

2600

2850

L2

2600

2600

2850

h

6000

6000

6000

Main Dimension

H

mm

2300

2375

2550

B

5724

5724

5875

K

2500

2500

2650

B1

230

230

230

F

618

718

818

968

643

743

843

845

995

575

655

757

907

1057

Max. Wheel Loading

KN

117

125

134

141

136

143

151

162

170

155

165

175

185

195

Total Power

kw

106

135

190

Steel Rail

43kg/m

QU70

50kg/m or QU70

Power Supply

3-Phase AC 50Hz 380V

Precautions in incinator grab overhead crane operation

  1. the rated capacity of the grab bucket overhead crane should include the weight of the loads and the self weight of the grab bucket, the crane attachment.
  2. Do not change the inverter's settings at will, do not touch the inverter's terminals, do not open the inverter's cover during power-on or within one minute after power is turned off, and the grounding terminal must be grounded.
  3. A trial lifting must be performed to assess the dependability of the grab bucket, spreader, wire rope, lifting brake, etc. when lifting a large object for the first time during each shift or when lifting a heavy object that is close to the rated lifting capability.
  4. The controller should be turned on slowly and uniformly.
  5. Be quick and avoid stopping in the middle position when cutting off the controller. To ensure that the garbage crane stays in the planned position the power supply should be turned off beforehand, due to the inertial effect. When changing the running direction, the controller should be reset to zero and the operation should be conducted after the mechanism has stopped rotating.
  6. The speed of up and down should be slowed down as the mechanism nears its end, and the stopper must not be allowed to be used to halt.
  7. The emergency stop button needs to be used as soon as the garbage crane operation faces a critical condition, when it is too late to stop using the standard process, or when the operating handle is out of control. The emergency stop button must not be utilized for routine parking in non-emergency situations. Otherwise, there will be a massive impact.
  8. It is forbidden to leave heavy objects hanging in midair for a long time.
  9. Heavy objects must be lifted vertically, and the overhead crane and trolleys are not permitted to pull heavy objects. The driver must remain in the control position if the garbage hoist is carrying heavy objects or if all controls are not in the zero position. Under no circumstances may the hoisting and luffing mechanism brakes be altered.
  10. When the waste grab crane is in operation, inspection and maintenance cannot be done.
  11. Always make sure to check the location and position of the grab bucket before to move the overhead crane or crane trolley horizontally. If the grab bucket is on the bottom of garbage heap, it must be hoisted up to a particular height (the highest position of garbage heap ) before the overhead grab crane and hoisting trolley can be opeated to travell horizontally.
  12. To avoid the wire rope from being pulled and slanted, it is important to check the vertical alignment of the grab overhead crane , hoisting trolley and the grab bucket after grabbing the trash. Make sure to confirm that the grab bucket has passed the hopper's highest point before dumping the garbage into it.
  13. In order to prevent the grab bucket from colliding with the garbage pit's wall during the lifting or lowering process if the grab bucket swings violently from side to side, the large and small trucks must be stopped. Once the grab bucket has stopped, the grab overhead crane and trolley must be restarted.
  14. The operator must carefully inspect the water entry height of the bucket flap when the grab bucket is prepared to pluck up the trash at the bottom of the pool. The water must not be allowed to enter the middle of the grab bucket, as this will allow leachate from the pit to enter the hydraulic system and harm the grab bucket's ability to function.
  15. The garbage handling crane needs to be cleaned, lubricated, and overhauled when the bridge crane is halted and the power is turned off. And at the power switch, display a bold sign that reads, "Someone is working, please do not close."

Garbage crane operation procedure

The garbage crane can be operated once each of the aforementioned inspection items has been performed. General operating procedures, each garbage bridge crane will operate differently owing to equipment considerations, and the precise operation procedure will depend on the application circumstances.

waste handling overhead crane

  1. Check to make sure there are no idlers on the garbage handling grab overhead crane, that there aren't any tools or other scattered items, and that the electrical equipment is positioned normally.
  2. Switch on the power circuit breaker, control circuit breaker, and PLC circuit breaker, Circuit breaker, key switch on the right linkage table, main power start button on the right linkage table, power start button on the right linkage table.
  3. Before starting your grab bridge crane, ring the bell once more. Check to see whether there are any people or other barriers close to the operation site before beginning. Prior to turning on the main switch, every control must be in the "zero" position.
  4. Different mechanisms can be used when all circuit breakers and emergency switches have been closed, and the electronic control system has been turned on. Use the linkage platform's several buttons and two operational handles to operate. When utilizing the operating handle, pull up the sliding block in the handle's ball head with the middle and index fingers to release the zero-position self-locking, allowing the handle to be pushed freely.
  5. The handle on the right linkage table controls the operation of the grab lifting.Push out when going down and pull in when going up.There are four ascending and descending gears. Corresponds to four different speeds ranging from low to high. The right linkage table's handle controls the opening and closing of the grab.Turn the handle horizontally outward when opening the grab and horizontally inward when closing the grab. The grab's opening and closing is divided into one gear.
  6. The handle on the left linkage platform controls the crane trolley operation. Turn the handle horizontally to the left when traveling to the left, and horizontally to the right when traveling to the right. The left and right rows are divided into four gears, each of which corresponds to four speeds ranging from low to high.
  7. The trolley's operation is controlled by the handle on the left linkage platform. Push the handle vertically forward when moving forward, and pull the handle vertically and backward when moving backward. The handle's front and back directions are divided into four gears, which correspond to four speeds ranging from low to high.
  8. Operation of the grab. When the grabbed wastes or garbage prevents the grab bucket from closing, it can still be lifted properly while the grab bucket is closed. To achieve the maximum bucket capacity, the grab bucket should be lowered horizontally and not tilted more than 30 degrees during operation. Never use a high-speed grab and slam the grabbed cargo hard. Collisions should be avoided as much as possible to avoid damaging the grab. The system work system is a full-time work system, with no more than 120 starts per hour and a load rate of no more than 30%.

Article by Bella ,who has been in the hoist and crane field since 2016. Bella provides overhead crane & gantry crane consultation services for clients who need a customized overhead travelling crane solution.Contact her to get free consultation.