Explosion proof single girder overhead crane is for mining, oil, gas, dusty applications, featured as spark proof, flame proof & explosion proof.
| Application | Material handling, lifting, positioning, assembly, maintenance, loading/unloading, |
| Certifications | CE / ISO / SGS / Other third-party inspection |
| Customization | Customized material handling cranes solutions available for indoor, outdoor, hazardous, corrosive, cleanroom, and heavy-duty industrial applications. |
Category: Single Girder Overhead Crane
Tags: singlegirderoverheadcrane,explosionproofcrane
Your Trusted Overhead Crane Manufacturer & Supplier
LB single girder explosion proof single girder overhead cranes is light duty cranes, designed with the structure of common single girder overhead cranes but equipped explosion proof hoists as the lifting system. All the motors and electrical equipment is explosion proof and even the crane wheel is in accordance with the standard of JB/T10219-2000, which is made of stainless steel or nylon to ensure safety during operation to avoid friction sparks.. The explosion proof grades of the overhead cranes are ExdⅡBT4 and ExdⅡCT4.
Single girder overhead explosion-proof crane is mainly consisted of bridge crane traveling mechanism, electrical system with anti-explosion electric parts and components, bridge girder, explosion-proof hoist and other crane parts and components.

Main Parameters of Explosion Proof Single Girder Overhead Crane
The lifting capacity of single girder overhead explosion-proof crane is 1-20 tons and crane working class are A3 or A4. The specific crane parameters are presented for your reference.Customized explosion proof crane is available by leaving a message below.
LB Single girder explosion proof crane parameters:
Technical data of Explosion Proof 0verhead Crane
| Capacity | t | 1 | 2 | 3 | 5 | 10 | 16 | 20 |
| Span | m | 7.5~28.5 | ||||||
| Lifting height | m | 6~18 | ||||||
| Lifting speed | m/min | 0.8/8 | 0.8/8 | 0.8/8 | 0.8/8 | 0.7/78 | 0.6/6 | 0.42/4.2 |
| Trolley speed | m/min | 20/30 | 20/30 | 20/30 | 20/30 | 20/30 | 20/30 | 20/30 |
| Crane speed | m/min | 20 | 20 | 20 | 20 | 20 | 20 | 20 |
| Work duty | A3~A4 | |||||||
| Explosion-proof Grade | ExdⅡBT4、ExdⅡCT4 | |||||||
| Track type | P24 | P24 | P24 | P24 | P24 P38 | P24 P38 | P24 P38 | |
explosion proof single girder overhead crane is a type of particularly designed overhead cranes, mainly used to handle materials in workshop, warehouse and factory with hazardous explosive gas or dust with high safety and reliability. The explosion proof crane is equipped with explosion proof measures to ensure highest level of safety in motors, electrical crane parts, metal contact surface and even crane wheels to avoid flame by friction, conforming to national and international standards, which is a good selection for hazardous application environments such as oil refineries, gas power plants, petrochemical, paint processing plant, etc.
Main girder of explosion proof crane are fabricated with quality steels and covered with specified paints including 3 layers1) Dimer coat 9 primer( 75 microns drt),2) Amercoat 385 ( 150 microns drf),3)Amercoat 450S( RAI 1004 OR 1018) (75 microns drt), etc. Tailored explosion proof hoists & cranes are available.
First layer of the special paint for the explosion proof single girder overhead crane
Second layer of the special paint for the explosion proof single girder overhead crane
Third layer of the special paint for the explosion proof single girder overhead crane
Crane travel stainless wheel for the explosion proof single girder overhead crane
Hoist travel stainless wheel for the explosion proof single girder overhead crane
Explosion proof hoists for the explosion proof single girder overhead crane
Hoist explosion-proof electric box for the explosion proof single girder overhead crane
Crane explosion-proof electric box for the explosion proof single girder overhead crane
Explosion proof control for the explosion proof single girder overhead crane
Explosion Proof Hoists and Cranes series is designed and manufactured by the state-of-the-art CNC machine tools set up particular for production of hoists and winches. The modular design explosion proof hoists and cranes enables specific materials selection for hazardous and corrosive environment requirements.
Wire rope explosion proof hoist
Wire rope hoists with explosion proof, flame proof & spark resistant hoist designs to secure your electric hoist crane. Check wire rope explosion proof hoists now.
Electric chain explosion proof hoist
Electric chain hoists mounted on hook, lug, manual or electric hoist trolley for types of electric chain hoist cranes with capacity of 500kg, 5 ton, 10 ton, 32 ton.
Manual explosion proof hoist
Manual chain block & manual chain hoist for sale. Light,economical & handy manual hoists & hand hoists of 250kg, 1 ton, 1.5 ton , 2 ton , 3 ton , 4 ton , 5 ton , 6 ton,etc.
The explosion proof hoists and cranes offers a wide range of lifting height or hook height and lifting speeds incorporating with the standards of FEM, ISO, AS, ATEX, and IECEX, with the features of reliability, durability and easy maintenance. All components of the explosion proof hoists are carefully designed to suit the particularly targeted hazardous zones to make the explosion proof crane hoists manufactured to suit the specifications of application to further improve the reliability, safety and performance.
Why to select explosion proof single girder overhead crane system? explosion proof single girder overhead cranes systems are required in the hazardous environment to ensure in the safety of crane operation and working staff. Generally, they are widely used in chemical plants, gas power plants, paint shops, mining, oil refineries, and waste water treatment plants and other applications due to the following advantages and features :
The explosion proof single girder overhead cranes or explosion proof bridge cranes have a wide applications:
We designs and manufactures the explosion proof and anti -explosion proof hoist and crane equipment for the harsh and hazardous application environments, such as, chemical plants, gas power plants, paint shops, mining, oil refineries, and waste water treatment plants, etc.
Industrial Applications of Explosion Proof Cranes
Any question on explosion proof hoist crane zoning or applications, please feel free to contact us. Free consultation are available on explosion proof single girder overhead crane systems, anti-explosion proof hoists, and other spark resistant crane parts and components, etc. Send us an inquiry on explosion proof crane and hoist now.
As explosion proof hoists and crane manufacturer, we can offer you complete explosion proof single girder overhead crane systems of various overhead crane designs including single girder overhead cranes, double girder overhead cranes, top running overhead cranes & under hung overhead cranes, etc., and all the related spare parts for explosion proof hoists and cranes including motor, wire rope drums, explosion proof crane wheels, hooks, rails, travel beams, crane bus bar etc.
Explosion proof crane single girder design options and drawings
Top running single girder explosion proof overhead crane for sale with capacity from 1 ton to 20 ton, hot sale capacity 3 ton, 5 ton, 10 ton, 16 ton
Single girder explosion proof overhead crane with under running crane design for your reference, with capacity from 500kg to 10 ton
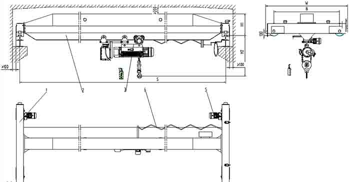
1. end carriage 2. main girder 3.electric hoist 4. electrical device 5. crane traveling
Figure 12 LB-type explosion-proof electric single girder crane
1. end carriage 2. electrical device 3. electric hoist 4. crane traveling
Figure13 LXB-type electric single girder Under slung crane
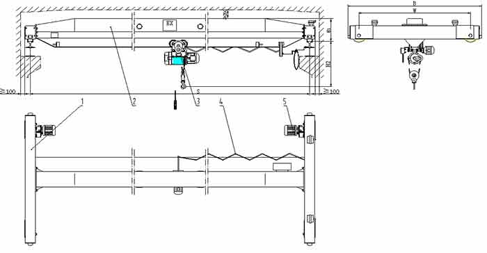
1. end carriage 2. main girder 3.electric hoist 4. electrical device 5. crane traveling
Figure 14 explosion-proof electric single girder crane for mine
1. end carriage 2. main girder 3.electrical device 4. electric hoist 5. crane traveling
Figure15 explosion-proof electric Under slung crane for mine
Tailored explosion proof single girder overhead cranes with process crane designs is the optimal overhead crane solutions for your specific industrial setup. Free consultation on explosion proof single girder overhead crane system and explosion proof hoists are available.
How to select the hazardous application hoist & crane ? Contact us to get your customized explosion proof single girder overhead crane design and explosion proof crane drawing now.
Latest project
QDX 150 ton overhead crane in action in Paraguay. Installation photos, video, and client feedback show performance, safety, and heavy-lifting efficiency.
Free consultation to Confirm Parameters & Specifications and Get
Latest Crane Price & Crane Rate.
Just leave a message via the contact form and our hoist and crane engineer will contact you with in 24working hours.
Get In Touch
