Top running single girder eot crane specifications 3 ton, 5 ton, 10 ton, 16 ton, 20 ton. Tailored single girder overhead crane specifications for you.
Category: Hoist and Crane Specifications
Your Trusted Overhead Crane Manufacturer & Supplier
The LD type economical top running single girder overhead crane is desinged and built based on the GB3811-2008 and JB/T1306-2008 standards. The single girder overhead crane is frequently equipped with cd/md type electric hoists. They are commonly used in mechanical processing, assembly, and repair, as well as warehouses and other workplaces. It is an important tool and matereial handling equipment for modern industrial enterprises to realize mechanization and automation of the production line, reduce heavy manual work, and improve productivity.

LD Series of top running single girder overhead cranes specifications
European style single girder under runnng overhed crane specifications
We provide single girder eot cranes with customized specifications. They have a lifting capacity of 1-20 tons, a span of 7.5 to 28.5 meters, a lifting height of 1-30 meters, and low work classes of A3, A4. We also design and manufacture nonstandard cranes or processed overhead canes to meet the lifting requirements and applications demands of user's.
LD series of top running single girder overhead crane for sale
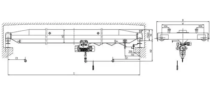
Electric single girder top running overhead travelling crane general drawing
Crane specifications of single girder eot crane 1 ton
Crane Capacity | T | 1 ton | |||||||
Crane Span | m | 7.5 | 11.5 | 14.5 | 17.5 | 19.5 | 22.5 | 25.5 | 28.5 |
Lifting height | m | 6、 9、 12、18、 24、 30 | |||||||
Lifting speed | m/min | 8 or 8/0.8 | |||||||
Hoist travelling speed | m/min | 20 | |||||||
Crane travelling speed | m/min | 20 | |||||||
Total weight | kg | 1590 | 1960 | 2390 | 2850 | 3060 | 3550 | 4610 | 5660 |
Max. Wheel load | KN | 8.7 | 9.9 | 11 | 12.2 | 12.8 | 14 | 16.7 | 19.4 |
Rail recommended | Model | 24kg/m | |||||||
Total motor power | kw | 1.7 | |||||||
Main dimension of eot crane (mm) | Span (m) | 7.5 | 11.5 | 14.5 | 17.5 | 19.5 | 22.5 | 25.5 | 28.5 |
Rail top to crane top | H | 490 | 530 | 580 | 660 | 745 | |||
Rail top to hook center | H4 | 910 | 955 | 970 | 990 | 1010 | |||
Eot crane base distance | W | 1500 | 2000 | 2000 | 2500 | 2500 | 3000 | 3500 | 4000 |
Crane width | B | 2000 | 2500 | 2500 | 3000 | 3000 | 3500 | 4000 | 4500 |
Hook left limitation | S1 | 796 | |||||||
Hook right limitation | S2 | 1274 | |||||||
2 ton overhead crane specifications
2 ton overhead crane specifications
Crane Capacity | T | 2 ton | |||||||
Crane Span | m | 7.5 | 11.5 | 14.5 | 17.5 | 19.5 | 22.5 | 25.5 | 28.5 |
Lifting height | m | 6、 9、 12、18、 24、 30 | |||||||
Lifting speed | m/min | 8 or 8/0.8 | |||||||
Hoist travelling speed | m/min | 20 | |||||||
Crane travelling speed | m/min | 20 | |||||||
Total weight | kg | 1680 | 2140 | 2670 | 3480 | 3760 | 4400 | 5680 | 6850 |
Max. Wheel load | KN | 13.6 | 15.2 | 16.7 | 18.8 | 19.5 | 21.2 | 24.4 | 27.4 |
Rail recommended | Model | 24kg/m | |||||||
Total motor power | kw | 3.4 | |||||||
EOT crane main dimension (mm) | Span (m) | 7.5 | 11.5 | 14.5 | 17.5 | 19.5 | 22.5 | 25.5 | 28.5 |
Rail top to crane top | H | 490 | 580 | 660 | 785 | 820 | 875 | ||
Rail top to hook center | H4 | 1080 | 1125 | 1140 | 1160 | 1135 | 1200 | 1250 | |
Crane base distance | W | 1500 | 2000 | 2500 | 3000 | 3500 | 4000 | ||
Bridge crane width | B | 2000 | 2500 | 3000 | 3500 | 4000 | 4500 | ||
Hook left limitation | S1 | 796 | |||||||
Hook right limitation | S2 | 1274 | |||||||
Eot crane capacity | T | 3 ton | |||||||
Span | m | 7.5 | 11.5 | 14.5 | 17.5 | 19.5 | 22.5 | 25.5 | 28.5 |
Lifting height | m | 6、 9、 12、18、 24、 30 | |||||||
Lifting speed | m/min | 8 or 8/0.8 | |||||||
Hoist travelling speed | m/min | 20 、30 | |||||||
Crane travelling speed | m/min | 20 | 30 | ||||||
Total weight | kg | 1860 | 2350 | 3120 | 3680 | 3970 | 5170 | 59500 | 8100 |
Max. Wheel load | KN | 18.6 | 20.5 | 22.6 | 24.2 | 25 | 28.1 | 30.1 | 35.5 |
Rail recommended | Model | 24kg/m | |||||||
Total motor power | kw | 4.9 | |||||||
Main dimension (mm) | Span(m) | 7.5 | 11.5 | 14.5 | 17.5 | 19.5 | 22.5 | 25.5 | 28.5 |
Rail top to crane top | H | 530 | 580 | 660 | 725 | 835 | 880 | 940 | |
Rail top to hook center | H4 | 1270 | 1290 | 1305 | 1295 | 1330 | 1370 | ||
Crane base distance | W | 1500 | 2000 | 2500 | 3000 | 3500 | 4000 | ||
Eot crane width | B | 2000 | 2500 | 3000 | 3500 | 4000 | 4500 | ||
Hook left limitation | S1 | 819 | |||||||
Hook right limitation | S2 | 1291 | |||||||
5 ton eot crane specification
Crane Capacity | T | 5 ton | |||||||
Span | m | 7.5 | 11.5 | 14.5 | 17.5 | 19.5 | 22.5 | 25.5 | 28.5 |
Lifting height | m | 6、 9、 12、18、 24、 30 | |||||||
Lifting speed | m/min | 8 or 8/0.8 | |||||||
Hoist travelling speed | m/min | 20 、30 | |||||||
Crane travelling speed | m/min | 20 | 30 | ||||||
Total weight | kg | 2220 | 2860 | 3430 | 4440 | 4790 | 5550 | 68000 | 8990 |
Max. Wheel load | KN | 28.7 | 31.4 | 33.2 | 36 | 37 | 39.1 | 42.3 | 47.9 |
Rail recommended | Model | 24kg/m | |||||||
Total motor power | kw | 8.3 | |||||||
Main dimension (mm) | Span(m) | 7.5 | 11.5 | 14.5 | 17.5 | 19.5 | 22.5 | 25.5 | 28.5 |
Rail top to crane top | H | 580 | 660 | 725 | 835 | 880 | 940 | 1020 | |
Rail top to hook center | H4 | 1460 | 1460 | 1475 | 1465 | 1500 | 1540 | 1520 | |
Crane base distance | W | 1500 | 2000 | 2500 | 3000 | 3500 | 4000 | ||
EOT Crane width | B | 2000 | 2500 | 3000 | 3500 | 4000 | 4500 | ||
Hook left limitation | S1 | 842 | |||||||
Hook right limitation | S2 | 1310 | |||||||
10 ton eot crane specification
Crane Capacity | T | 10 ton | |||||||
Span | m | 7.5 | 11.5 | 14.5 | 17.5 | 19.5 | 22.5 | 25.5 | 28.5 |
Lifting height | m | 6、 9、 12、18、 24、 30 | |||||||
Lifting speed | m/min | 8 or 8/0.8 | |||||||
Hoist travelling speed | m/min | 20 、30 | |||||||
Crane travelling speed | m/min | 20 | 30 | ||||||
Total weight | kg | 3060 | 3950 | 4640 | 5590 | 6010 | 7420 | 9220 | 14000 |
Max. Wheel load | KN | 50.8 | 56.4 | 59.4 | 62.5 | 64 | 68 | 74.1 | 85.1 |
Rail recommended | Model | 24kg/m | |||||||
Total motor power | kw | 13.8 | |||||||
Main dimension (mm) | Span(m) | 7.5 | 11.5 | 14.5 | 17.5 | 19.5 | 22.5 | 25.5 | 28.5 |
Rail top to crane top | H | 735 | 835 | 890 | 880 | 920 | 1065 | 1160 | |
Rail top to hook center | H4 | 1815 | 1815 | 1840 | 1950 | 1970 | 1865 | 1890 | |
Crane base distance | W | 1500 | 2000 | 2500 | 3000 | 3500 | 4000 | ||
EOT Crane width | B | 2000 | 2500 | 3000 | 3500 | 4000 | 4700 | ||
Hook left limitation | S1 | 1293 | |||||||
Hook right limitation | S2 | 1893 | |||||||
16 ton eot crane specification
Bridge Crane Capacity | T | 16 ton | |||||||
Span | m | 7.5 | 11.5 | 14.5 | 17.5 | 19.5 | 22.5 | 25.5 | 28.5 |
Lifting height | m | 6、 9、 12、18、 24、 30 | |||||||
Lifting speed | m/min | 8 or 8/0.8 | |||||||
Hoist travelling speed | m/min | 20 、30 | |||||||
Crane travelling speed | m/min | 20 | 30 | ||||||
Total weight | kg | 3390 | 4420 | 5760 | 7350 | 7940 | 9210 | 13170 | 15300 |
Max. Wheel load | KN | 76.5 | 84.3 | 89.6 | 94.9 | 97 | 100.9 | 111.4 | 117.2 |
Rail recommended | Model | 24kg/m | |||||||
Total motor power | kw | 13.8 | |||||||
Bridge Crane Main dimension (mm) | Span(m) | 7.5 | 11.5 | 14.5 | 17.5 | 19.5 | 22.5 | 25.5 | 28.5 |
Rail top to crane top | H | 835 | 890 | 980 | 1065 | 1135 | 1200 | 1300 | |
Rail top to hook center | H4 | 2445 | 2470 | 2520 | 2495 | 2545 | 2590 | 2600 | |
Crane base distance | W | 1500 | 2000 | 2500 | 3000 | 3500 | 4000 | ||
Crane width | B | 2000 | 2500 | 3000 | 3500 | 4200 | 4700 | ||
Hook left limitation | S1 | 1293 | |||||||
Hook right limitation | S2 | 1893 | |||||||
Crane Capacity | T | 20 ton | |||||||
Span | m | 7.5 | 11.5 | 14.5 | 17.5 | 19.5 | 22.5 | 25.5 | 28.5 |
Lifting height | m | 6、 9、 12、18、 24、 30 | |||||||
Lifting speed | m/min | 8 or 8/0.8 | |||||||
Hoist travelling speed | m/min | 20 、30 | |||||||
Crane travelling speed | m/min | 20 | 30 | ||||||
Total weight | kg | 5270 | 6710 | 8550 | 10110 | 10850 | 12600 | 14280 | 14690 |
Max. Wheel load | KN | 99 | 109.1 | 116.3 | 121.8 | 124.5 | 129.9 | 134.5 | 135.8 |
Rail recommended | Model | 24kg/m | |||||||
Total motor power | kw | 19.3 | |||||||
Overhead Crane main dimension (mm) | Span(m) | 7.5 | 11.5 | 14.5 | 17.5 | 19.5 | 22.5 | 25.5 | 28.5 |
Rail top to crane top | H | 900 | 970 | 1050 | 1130 | 1200 | 1300 | ||
Rail top to hook center | H4 | 2400 | 2430 | 2490 | 2550 | 2590 | 2600 | ||
Crane base distance | W | 2000 | 2000 | 2500 | 3000 | 3500 | |||
Crane width | B | 2700 | 3200 | 3700 | 4200 | ||||
Hook left limitation | S1 | 1394 | |||||||
Hook right limitation | S2 | 1933 | |||||||
This single girder bridge crane is used in environments with temperatures ranging from -25°C to +40°C, humidity levels of 85%, and elevations under 1000 meters. The power supply is a 3-ph, 380V, 50HZ which can designed based on the needs of the user.
Overall Organization Drawing of single girder overhead crane, top running design
It primarily consists of three parts: the mechanism part, which includes the crane's metal frame and moving parts, the electric hoist's lifting mechanism, and the electronic parts , and safe and protection devices, and safe operation devices.
Main Girder
Main girder is the main bearing part of the single girder bridge crane. its girder structure is made of U-shaped groove, inclined cover plate, rib plate and I beam steel plate, its upper arc is ((1/1000~4/1000)S,. When the rated lifting weight and the self-weight of the electric hoist are located in the middle of the span, the degree of camber caused is not less than the horizontal line, and no permanent deformation occurs during normal operation.
End girder is located at both ends of the main beam of crane bridge. The end carriage or end girder is bolted to the main beam by flange plats. It has a box structure made up of a U-shaped groove, a lower cover plate, a reinforcement plate, and rib plates formed by rolling steel plates or welding steel plates. The end girder has a light structure, good rigidity, a beautiful appearance, and a good welding performance.
Each electric hoist will perform dynamic and static load tests, as well as rise and drop pressure tests, on a single girder overhead crane. The baking paint process is used to improve the adhesion of the paint film and its appearance. The assembly line ensures the quality of the product.
Girder cross section drawing
Main girder production
Main girder and end carriage connection drawing
LD type single girder overhead crane top running design
Current collection installation drawing
Festoon cable installation drawing
Electrical Equipment
Safety Device
LDA(General use single girder overhead crane)
LDC (low headroom single girder overhead crane)
Low-headroom design enables the LDC type single girder overhead crane to lift objects to greater heights while taking up less room than the normal type.
LDP (partial hanging single girder overhead crane)
LB (explosion-proof single girder overhead crane)
Compact structure, good rigidity, sensitive operation, safe and reliable, beautiful appearance, strong explosion-proof, and so on are the main components of our explosion-proof single girder overhead crane .
LDY(Metallurgical electric single girder overhead crane)
LDZ Electric grab single girder overhead crane
LD model single girder eot crane is the most common type of overhead cranes used for small to moderate lifting applications. It is extensively applied in workshops of manufacturing, repairing and assembly lines, warehouses and storage yards to carry out different lifting tasks. This typical single beam overhead crane cannot be used in flammable, explosive or corrosive environments.
LD single girder eot crane parameters:
| Technical Parameter of LD single girder eot crane | |||||||||
| Capacity | t | 1 | 2 | 3 | 5 | 10 | 16 | 20 | 25 |
| Span | S(m) | 7.5~31.5 | 7.5~31.5 | 7.5~31.5 | 7.5~31.5 | 7.5~31.5 | 7.5~31.5 | 7.5~31.5 | 7.5~25.5 |
| Lifting height | m | 6~30 | 6~30 | 6~30 | 6~30 | 9~30 | 9~30 | 9~30 | 9~30 |
| Lifting speed | m/min | 8(0.8/8) | 8(0.8/8) | 8(0.8/8) | 8(0.8/8) | 7(0.7/7) | 3.5(0.35/3.5) | 3.3(0.33/3.3) | 3(0.3/3) |
| Trolley speed | m/min | 20(30) | 20(30) | 20(30) | 20(30) | 20(30) | 18 | 14 | 16 |
| Crane speed | m/min | 20(30) | 20(30) | 20(30) | 20(30) | 20(30) | 20(30) | 20(30) | 20(30) |
| Work duty | A3~A4 | A3~A4 | A3~A4 | A3~A4 | A3~A4 | A3~A4 | A3~A4 | A3~A4 | |
| Track type | P18 | P18 P24 | P24 | P24 | P24 P30 | P30 P38 | P38 P43 | P38 P43 |
HD electric single girder bridge crane represents a high-level lifting equipment that adopts unique design concept and the latest technology. This advanced overhead crane can be applied in mechanical manufacturing, metallurgy, power plant and other industries to handle large and heavy materials, especially suitable for occasions that require accurate positioning or precision assembly for large parts.
The European standard single girder crane is equipped with ND wire rope hoist to lift a large amount of weight, usually in a range of 1 ton to 20 ton. The bridge crane design conforms to international standards including DIN, FEM and ISO.
HD European single girder bridge crane parameters:
| Technical Parameter of HD European Type single girder eot crane | |||||
| Capacity | t | 1 | 2 | 3.2 | 5 |
| Span | S(m) | 7.5~28.5 | 7.5~28.5 | 7.5~28.5 | 7.5~28.5 |
| Lifting height | m | 6~18 | 6~18 | 6~18 | 6~18 |
| Lifting speed | m/min | 0.8/5 | 0.8/5 | 0.8/5 | 0.8/5 |
| Trolley speed | m/min | 2~20 | 2~20 | 2~20 | 2~20 |
| Crane speed | m/min | 3~30 | 3~30 | 3~30 | 3~30 |
| Work duty | A5 | A5 | A5 | A5 | |
| Track type | P18 P24 | P18 P24 | P24 | P24 |
| Capacity | t | 10 | 12.5 | 16 | 20 |
| Span | S(m) | 7.5~28.5 | 7.5~28.5 | 7.5~28.5 | 7.5~28.5 |
| Lifting height | m | 6~18 | 6~18 | 6~18 | 6~18 |
| Lifting speed | m/min | 0.8/5 | 0.66/4 | 0.66/4 | 0.53/3.4 |
| Trolley speed | m/min | 2~20 | 2~20 | 2~20 | 2~20 |
| Crane speed | m/min | 3~30 | 3~30 | 3~30 | 3~30 |
| Work duty | A5 | A5 | A5 | A5 | |
| Track type | P30 | P30 | P30 P38 | P30 P38 |
LB model explosion proof overhead crane is a kind of single girder crane specifically designed for hazardous lifting environments, usually equipped with HB explosion proof electric hoist. The motor and electrical devices of this crane are also explosion-proof type to ensure a high level of safety required for explosive atmospheres.
The single girder explosion proof crane is widely applied in power plant, chemical plant, sewage treatment plant and other industries to load, unload and transfer heavy items. It can lift a large amount of weight, ranging from 1 ton to 20 ton, and the working class is A3, A4.
LB explosion proof overhead crane parameters:
| Technical Parameter of LB Model Explosion-proof Electric Single Girder Crane | ||||||||
| Capacity | t | 1 | 2 | 3 | 5 | 10 | 16 | 20 |
| Span | S(m) | 7.5~31.5 | 7.5~31.5 | 7.5~31.5 | 7.5~31.5 | 7.5~31.5 | 7.5~31.5 | 7.5~31.5 |
| Lifting height | m | 6~30 | 6~30 | 6~30 | 6~30 | 9~30 | 9~30 | 9~30 |
| Lifting speed | m/min | 8(0.8/8) | 8(0.8/8) | 8(0.8/8) | 8(0.8/8) | 7(0.7/7) | 3.5(0.35/3.5) | 3.3(0.33/3.3) |
| Trolley speed | m/min | 20(30) | 20(30) | 20(30) | 20(30) | 20(30) | 18 | 14 |
| Crane speed | m/min | 20(30) | 20(30) | 20(30) | 20(30) | 20(30) | 20(30) | 20(30) |
| Work duty | A3~A4 | A3~A4 | A3~A4 | A3~A4 | A3~A4 | A3~A4 | A3~A4 | |
| Explosion-proof Grade | ExdⅡBT4、ExdⅡCT4 | |||||||
| Track type | P18 | P18 P24 | P24 | P24 | P24 P30 | P30 P38 | P30 P38 |
Suspension crane is a kind of small and lightweight underhung overhead crane, also known as under running crane or underhung crane. It is widely applied in workshop of production and assembly lines, warehouse and other places to lift and move heavy loads. The underhung crane, as its name implies, is suspended from building roof structure and runs at the bottom flange of runway beam.
Single girder suspension crane is designed and manufactured in strict accordance with industrial standard JB2603-94, usually equipped with CD and MD electric hoists. Due to its distinct structure, the under running overhead crane usually comes in single girder design, thus it cannot lift a considerable amount of weight. The capacity ranges from 0.5 ton to 10 ton, the span of is 3-22.5m, working classification is A3-A4.
LX suspension crane parameters:
| Technical Parameter of LX Single Girder Suspension Crane | |||||||
| Capacity | t | 0.5 | 1 | 2 | 3 | 5 | 10 |
| Span | S(m) | 3~22.5 | 3~22.5 | 3~22.5 | 3~22.5 | 3~22.5 | 3~22.5 |
| Lifting height | m | 6~30 | 6~30 | 6~30 | 6~30 | 6~30 | 9~30 |
| Lifting speed | m/min | 8(0.8/8) | 8(0.8/8) | 8(0.8/8) | 8(0.8/8) | 8(0.8/8) | 7(0.7/7) |
| Trolley speed | m/min | 20(30) | 20(30) | 20(30) | 20(30) | 20(30) | 20(30) |
| Crane speed | m/min | 20(30) | 20(30) | 20(30) | 20(30) | 20(30) | 20(30) |
| Work duty | A3~A4 | A3~A4 | A3~A4 | A3~A4 | A3~A4 | A3~A4 |
LDY model electric single girder foundry crane is specially designed for lifting and transferring molten metal in metallurgy and casting places. It can also be used for handling molten non-metallic materials and hot solid metal. The overhead crane is generally outfitted with YH type metallurgical electric hoist, and its lifting capacity is not more than 10 tons. This crane is designed according to JB/T 1306-2008 standards.
LDY single girder foundry crane parameters:
| Technical Parameter of LDY Metallurgy Electric single girder eot crane | ||||||
| Capacity | t | 1 | 2 | 3 | 5 | 10 |
| Span | S(m) | 7.5~31.5 | 7.5~31.5 | 7.5~31.5 | 7.5~31.5 | 7.5~31.5 |
| Lifting height | m | 6~20 | 6~20 | 6~20 | 6~20 | 6~20 |
| Lifting speed | m/min | 8(2/8) | 8(2/8) | 8(2/8) | 8(2/8) | 7(1.75/7) |
| Trolley speed | m/min | 20(30) | 20(30) | 20(30) | 20(30) | 20(30) |
| Crane speed | m/min | 20(30) | 20(30) | 20(30) | 20(30) | 20(30) |
| Work duty | A6 | A6 | A6 | A6 | A6 | |
| Track type | P18 P24 | P18 P24 | P24 | P24 | P24 P30 |
LDZ single girder grab crane is generally the same with LD electric single girder crane except for its grabbing mechanism. Equipped with grab hoist trolley, the crane is suitable for handling almost all kinds of loose and bulk materials, such as garbage, industrial materials and sand. The lifting capacity of overhead crane ranges from 2 ton to 10 ton, and the working class is A4. This crane cannot be used in flammable, explosive or corrosive atmosphere.
The crane system is usually controlled by an operator from the ground or by a driver sitting in the cabin to realize a safe and easy lifting operation. This bridge crane features high working efficiency, wide application, sturdy construction and reliable performance, making it perfect for lifting in mining, garbage disposal plant, steel plant and power plant.
LDZ single girder grab crane parameters:
| Technical Parameter of LDZ Electric Grab Crane Single Girder | |||||
| Capacity | t | 2 | 3 | 5 | 10 |
| Span | S(m) | 4.5-28.5 | 4.5-28.5 | 4.5-28.5 | 4.5-28.5 |
| Lifting height | m | 6~16 | 6~16 | 6~16 | 6~13 |
| Lifting speed | m/min | 16 | 16 | 16 | 14 |
| Trolley speed | m/min | 20(30) | 20(30) | 20(30) | 20(30) |
| Crane speed | m/min | 20(30) | 20(30) | 20(30) | 20(30) |
| Grab volume | m³ | 0.5 | 0.5 | 0.75 | 1 |
| Work duty | A3~A4 | A3~A4 | A3~A4 | A3~A4 | |
| Track type | P18 P24 | P24 | P24 | P24 P30 |
Latest project
QDX 150 ton overhead crane in action in Paraguay. Installation photos, video, and client feedback show performance, safety, and heavy-lifting efficiency.
Free consultation to Confirm Parameters & Specifications and Get
Latest Crane Price & Crane Rate.
Just leave a message via the contact form and our hoist and crane engineer will contact you with in 24working hours.
Get In Touch