Rotary overhead crane with electro- magnet beam spreader

Rotary overhead crane with electro- magnet beam spreader

Magnetic crane is a double girder overhead crane with rotary crane design & electromagnet beam spreader, lifting long & larger steels, safe & efficient rotary overhead crane.

Crane Type Overhead crane with electromagnetic beam spreader
Crane Capacity 7.5+7.5t -20+20t
Crane Span 10.5-34.5 m
Lifting Height 6-16m
Working Class A5-A7
ApplicationMaterial handling, lifting, positioning, assembly, maintenance, loading/unloading,
CertificationsCE / ISO / SGS / Other third-party inspection
CustomizationCustomized material handling cranes solutions available for indoor, outdoor, hazardous, corrosive, cleanroom, and heavy-duty industrial applications.

Category: Overhead Crane

Tags: magneticcrane

Content Quick Link

Your Trusted Overhead Travelling Crane Manufacturer & Supplier

Rotatry Magnetic Overhead Cranes
Overhead Crane with Fixed Beam & Rotary Beam Magnetic Spreader

Magnetic cranes with customized electro- magnetic beam spreader, the cost-effective overhead travelling cranes solution for long and larger steel loads handling which enable the crane operator to handle loads remotely with high efficiency and safety.

The magnetic crane is a Double Girder Overhead Crane with rotary crane design, equipped with electro- magnetic beam spreader widely used for long and larger steel loads handling such as, steel rebar, steel billet slab, steel plate, steel sheet,steel pipe and other steel products in the steel mill and steel plants.

The magnetic crane is a high-efficiency rotary overhead crane for Metallurgy Industrial applications which is used used for stacking, transshipment and loading and unloading task of the steel warehouse. If your steel mill needs any overhead travelling crane system, please feel free to contact us to get the customized steel mill cranes,giving us a chance to save your money and increase your material handling safety.

overhead crane with rotary magnetic beam spreader

overhead crane with rotary magnetic beam spreader 

rotary beam speader for double girder overhead cranes

rotary beam speader for double girder overhead cranes 

Main parameters of magnetic cranes with beam spreader

  • Load capacity of magnetic crane : 7.5+7.5t -20+20t
  • Span of magnetic crane: 10.5-34.5 m
  • Lifting height of magnetic crane: 6-16m
  • Lifting speed of magnetic crane: 11.7-13.2m/min
  • Trolley running speed of magnetic crane: 31.3-37m/min
  • Crane running speed of magnetic crane: 58.5-74.3m/min
  • Work duty of magnetic crane: A5-A7
  • Customized electro- magnet cranes are available.

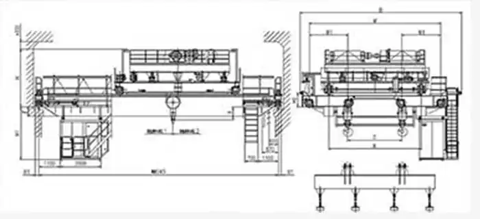
Structure & components

The carrier beam electro- magnet crane is mainly consisted of box-shaped bridges, double girder trolleys, cart operation mechanisms, crane operators cabin and electrical control system, installed with power failure protection system. The lifting mechanism of magnetic crane with double lifting points beam spreader usually adopts single motor, double speed reducer and double reel arrangement. And the electro- magnet beam spreader can be installed to the main girder either perpendicularly or parallel. And the other forms of the magnetic overhead crane are the same with the general use double girder overhead crane with hook.

Types of magnetic rotary crane designs

The magnetic hanging beam spreader overhead crane is with rotary crane designs, which enable the electro- magnet crane with high flexibility and convenience for steel loads handling. The rotation of the magnetic overhead crane can be achieved in two options:

Rotary overhead crane with lifting system 

Rotary overhead crane with lifting system

Rotary overhead crane with lifting system 

Upper rotating electromagnetic carrier-beam overhead crane

Upper rotating electromagnetic carrier-beam overhead crane

It is the magnetic crane that adopts a rotary trolley over the main girder which is the so called upper rotary overhead crane. The rotary trolley is designed with a double-layer structure, the upper layer of which a lifting trolley, and the lower layer of which is a running trolley. And the upper lifting trolley can move on an annular track installed which can enable the loads to rotate as request.

Overhead crane with rotating beam spreader

>Overhead crane with rotating beam spreader

Overhead crane with rotating beam spreader

Lower rotating electromagnetic carrier-beam overhead crane

Lower rotating electromagnetic carrier-beam overhead crane

The magnet crane adopts the rotary magnetic beam spreader, which is consisted of a double-layer structure. The upper layer of the magnetic hanging beam spreader is wound with a wire rope through a pulley set and the lower layer is equipped with multiple electromagnetic chuck or clamps, which can carrier the loads to rotate with the driving mechanism to a angle as requested. Magnetic crane with the rotary magnetic beam spreader is usually called the lower rotary overhead crane in China.

Electromagnetic beam spreader

General use electromagnetic spreader is mainly consisted of carrier-beam , electromagnet, and hook, etc., The spacing of electromagnet be adjusted according to operation requirements, the orientation of the electromagnetic beam spreader can be perpendicular or parallel to the main beam according to requirement. The body of electromagnetic spreader is a welded box shaped beam with upper and lower cover, webs, ribs, lifting lug and other plates, etc. Electromagnetic carrier-beam is through overall processing, to ensure its machining and assembly accuracy.

Rotatry magnetic crane beam spreader

Rotatry magnetic crane beam spreader 

Double girder overhead crane with rotatry beam magnetic spreader

Double girder overhead crane with rotatry beam magnetic spreader 

Electromagnetic carrier-beam spreader for overhead crane

Electromagnet is an important part of the electromagnetic crane, and there are various types of electromagnets for selection based on application requirements:

For general handling with loads temperature below 100 degrees, the room temperature electromagnet may be is a option. For handling iron with temperature between 100 to 600 degrees,the high temperature electromagnet is used. In terms the design of the beam spreader, the magnet can be mounted on the rotating carrier-beam and retractable carrier-beam. The length of the carrier-beam is adjustable according to the size of the lifting object, and the spacing of hanging points is also adjustable which providing you a more flexible and convenient rotary magnetic crane with high accuracy and safety.

Convenient and safe electromagnet crane is a ideal solution for steel loads handling in your workshops. Contact us to get your individualized magnetic crane solution.

Main feature of magnetic cranes

The rotary overhead crane with electromagnetic beam spreader is designed and manufactured based on national standards and is equipped with advanced parts and electronic control equipment. The overall of the magnetic rotary crane is featured with beautiful appearance, reasonable parameters, good performance and easy maintain.
  • Strong and easy assemble structure.The rotary overhead crane adopts welded box shaped bridge frame with bolted end carriage making the transportation and installation easy and convenient.
  • Crane parts and components. Standardization, serialization and generalization
  • Energy saving motors - All motors used on the magnetic crane are YZR energy-saving motors.
  • High safety power-off magnetic retention- The electro-magnetic crane adopts power-off magnetic-retention device and new electronic control equipment to ensure your safety and convenience.
  • High safety - Adopts DC electromagnet and hydraulic rod brake hydraulic buffer, safety cover for each mechanism, various safety protection devices and cages for maintenance, etc.
  • Crane control - Remote control or crane driver's cabin control. The driver's room can be equipped with air coolers and air conditioners to make your operator in good condition during operation.
  • Cut-to-tail design, best value magnetic crane - Based on your requirements and application conditions, the magnet crane can fully meet your expectation.

Advantages of magnetic cranes

  • More safe and ease for crane operator with remote crane control or driver's cabin control.
  • Magnet crane is more reliable and lower wear-and-tear during crane operation comparing with the use of slings and chains.
  • High efficient magnetic crane can improve your productivity and reduce manpower
  • Ensure safety of loads during operation with power off retention system.
  • Flexible & adaptable magnetic crane solution, applicable for a wide range of steel loads handling.
  • Customized magnetic beam spreader of any capacity or length fit your application requirement pleasantly.
  • Multifunctional with a fixed hook on the magnetic beam spreader for general material handling.

Applications

Rotary overhead crane with magnetic spreader are widely used for steel handling in the following conditions.

  • Magnetic cranes are used in the production line to handle beams and sections and the hot materials, etc.
  • The magnetic rotary crane can be applied in transportation for loading and unloading of trucks, rail containers, ships.
  • The magnetic beam crane can be used in stores or warehouses for stocking steel loads.

The carrier beam magnetic crane is mainly used in steel mills, ports, shipyards, and warehouses and other applications for handling and transporting Steel coil, Steel pile & tube, Steel sheet, Steel billets,Plates, Beams, Laser/Plasma/Flame cut profiles,Steel scraps , Rebar,Bar stock, Coiled strip product,Castings,Forging, Long containers, and other materials.

Steel pipe handling electromagnetic crane

Steel pipe handling electromagnetic crane

Electromagnetic crane for high speed wire ( coiled bar) handling cranes

Electromagnetic crane for high speed wire ( coiled bar) handling cranes

Electromagnetic crane for heavy rail and profiled steel handling cranes

Electromagnetic crane for heavy rail and profiled steel handling cranes

Reduce costs and improve safety with rotary crane with magnetic beam spreader

For steel handling, the carrier beam magnetic crane can be more effective , safe and labor saving. If you have a huge amount of steel materials and products to load and unload, the rotary overhead crane with electro -magnetic beam spreader will be a good choice. Contact us to see the chance what we do for you.

150 Ton Overhead Crane Installation Feedback – Paraguay Case

QDX 150 ton overhead crane in action in Paraguay. Installation photos, video, and client feedback show performance, safety, and heavy-lifting efficiency.


Free consultation to Confirm Parameters & Specifications and Get

Latest Crane Price & Crane Rate.

  • Types of overhead cranes : _______?
  • Optional: Overhead travelling crane, goliath gantry crane,Slewing jib crane, Single girder or double girder crane,small portable crane or kbk crane, etc.
  • Capacity of overhead crane: _______?
  • Optional: 0.25ton, 0.5 ton, 1 ton, 2 ton, 3ton, 5 ton, 10 ton,15ton, 20ton, 25 ton, 30ton,35ton, up to 550ton, etc.
  • Crane span & lifting height : _______?
  • Crane travelling length : _____?
  • Control of overhead crane:_______?
  • Optional: pendant/ remote/cabin control
  • Voltage supply of overhead crane:_____?
  • Eg,: 380V50/60HZ,3Phase or others,etc.
  • Application/usage of crane:_______?
  • Eg,: Steel mill, ,injection mold, cement,stone, concrete,granite, general manufacturing, etc.
  • Just leave a message via the contact form and our hoist and crane engineer will contact you with in 24working hours.

Get In Touch

Feel Free
to Contact With us