Overhead crane with clamshell bucket & clamshell grab for bulk material handling with capacity of 5 ton -25 ton. Clam bucket & overhead crane for your use.
| Crane type | Overhead crane with clamshell bucket |
| Crane capacity | 5 ton - 25 ton |
| Lifting span | 10.5~34.5m |
| Lifting height | Customized |
| Ambient Temperature | -20~40℃ |
| Application | Material handling, lifting, positioning, assembly, maintenance, loading/unloading, |
| Certifications | CE / ISO / SGS / Other third-party inspection |
| Customization | Customized material handling cranes solutions available for indoor, outdoor, hazardous, corrosive, cleanroom, and heavy-duty industrial applications. |
Category: Grab Crane
Tags: grabcrane
Your Trusted Grab Bucket Overhead Crane Manufacturer & Supplier
Overhead crane with clamshell bucket & clamshell grab for bulk material handling with capacity of 5 ton -25 ton. Types of clam buckets and overhead cranes for your selection. As a clamshell bucket crane manufacturer and supplier,we provide a full clamshell bucket crane system as well as a variety of crane buckets for varied load handling applications.
Clamshell Crane is a heavy duty overhead crane equipped with Clamshell Bucket, which can be used frequently. The lifting capacity of clamshell crane is consisted of the load weight and the dead weight of the crane bucket, which is from 5 ton to 25 tons.

The main specifications of clamshell bucket cranes are for your reference:
Clamshell Crane consists primarily of a bridge frame, crane traveling mechanism, lifting trolley, electric equipment, Clamshell Bucket, and other components.

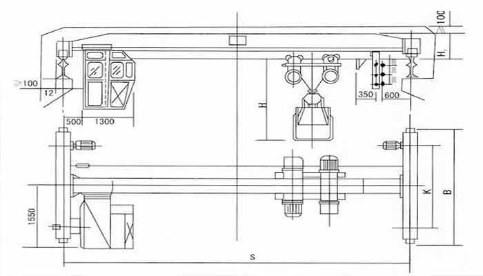
Clamshell bucket overhead crane drawing
Ideally designed Clamshell cranes with automatic, semiautomatic, and manual control are widely used in various industrial applications.
There are warning indicators installed, including flashing lights and a warning sound.
Clamshell Grab Bucket Eot Crane for Mining Factory- Grab bucket Overhead Crane
Single Rope Grab Bucket Single Girder Grab Overhead Crane- Single Rope Grab Overhead Crane
Four Rope Grab Bucket Overhead Crane- Grab Overhead Crane
Please contact us if you have any questions about Clamshell Crane.
Clamshell cranes are divided into two types based on their overhead crane structures: single girder overhead cranes and double girder overhead cranes. According to your needs and application conditions, EOTCRANEKIT Hoist and Crane can provide Clamshell Cranes with single girder overhead crane and double girder overhead crane. For your convenience, here are some photos of clamshell bucket overhead cranes. Please contact us if you require the grab overhead crane.
Using buckets made of superior wear and high strength steel can provide significant benefits to the company regardless of the clam shell bucket application. This is because wear and high strength steel provides the aggregates industry with the highest levels of wear and impact resistance, as well as strength. And, because these buckets are made up of several articulated pieces (i.e., two elementary buckets joining together from "a hinged structure and forming a claws-like appendage with an internal volume," high strength and wear steel can help them function better and last longer.
Sand clamshell bucket
Grain clam crane
Ore-mine clamshell bucket crane
Latest project
QDX 150 ton overhead crane in action in Paraguay. Installation photos, video, and client feedback show performance, safety, and heavy-lifting efficiency.
Free consultation to Confirm Parameters & Specifications and Get
Latest Crane Price & Crane Rate.
Just leave a message via the contact form and our hoist and crane engineer will contact you with in 24working hours.
Get In Touch