Casting ladle crane with electric single beam crane design & processed electric rope hoist for steel mill hot ladle lifting, safe & economical, up 10 ton.
Category: Single Girder Overhead Crane
Your Trusted Overhead Crane Manufacturer & Supplier
Casting ladle crane with electric single beam crane design & processed electric rope hoist for steel mill hot ladle lifting, safe & economical, up 10 ton. Learn more about the ladle handling electric single beam crane now!
The single girder casting ladle crane is specially designed for hot metal,ladle, metallurgical casting, and other hot temperature objects handling in according of various industrial standards especially for steel industry and metallurgical industries. The ladle single girder hoist crane is designed with the features of compact structure, light weight, high safety and reliability, high temperature resistant, easy operation & convenient for maintenance. If you need a high safety single girder overhead crane for hot metal or ladle handling with weight of 2 ton, 3 ton, 5 ton or up to 10 ton, the single girder casting ladle crane is a good option.
LDY electric wire rope hoist single girder cranes are specially designed metallurgical use hot temperature resistant overhead hoist crane system, which are widely applied for hot metal or ladle handling in the melting metal sites of metallurgy & casting plants, or other applications where high temperature resistant lifting equipment required.
Main parameters of hot metal & casting ladle crane
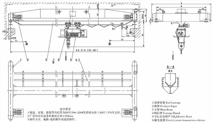
Metallurgical electric single girder casting ladle crane is mainly consisted of the crane travelling: bridge, metallurgical electric wire rope hoist and electrical system,crane controlling system and safety devices, etc. . The metallurgical wire rope hoist is suspended on the bottom flange of the overhead travelling bridge travelling with loads longitudinally, which is consisted of crane steel structure and running mechanism.

The casting ladle crane with electric single beam crane design is a cost-effective overhead crane solution for high temperature material handling and also can be used for general material handling. With single girder design, the crane cost will be much lower than the double girder ladle crane. And the main advantages of the single beam casting ladle cranes are as following:
The metallurgical use electric wire rope hoist is a specially designed casting ladle crane hoist with high safety by adopting dual brake, double spacing, insulation boards and other protections to ensure the material handling crane safety in the hazardous application conditions such as the workshop of metallurgical casting where high temperature molten metal ladle and solid hot metals required safety handling.
Due to high safety, reasonable designs and various configurations, the single girder casting ladle crane hoists are widely used which can be installed on electric overhead cranes either single girder crane design or double girder crane design, the cantilever jib cranes, gantry cranes, and also be suspended on the I-beam, either straight line or curved. Whats' more , with fixed hoist design, the wire rope hoist can be fastened on the supporting structure for lifting loads up and down.
Main Parameter of Single Girder Electric Hoist Casting Crane
Metallurgical use electric wire rope hoist is a type of hazardous application lifting equipment, widely used for molten metal and ladle handling with high safety. The Metallurgical electric casting ladle crane hoist is equipped with dual brake, double spacing, insulation boards, and other protections, with the working class of M3. The lifting capacity of metallurgical electric wire rope hoist is 1 to 63 tons and the main hoist parameters & specifications are presented for your reference. And custom designed electric wire rope hoists are ahead of standard electric rop hoists. Contact us for more details.

casting ladle crane hoist for single girder overhead crane
Single girder electric wire rope hoists for steel mill ladle crane
10 ton wire rope hoist for electric single beam crane
The main mechanical structure of metallurgical casting ladle crane hoist is the same as that of basic CD1 / MD1 electric wire rope hoist.Metallurgical use electric wire rope hoist is mainly consisted of lifting mechanism, travelling mechanism, electrical controlling system, and braking system with double brakes and double spacing, insulation boards and other protection devices, to ensure safety in the hazard applications.
Ladle handling hoist drawing
Main structure and components of ladle crane
Metallurgy use electric rope hoist is a cost-effective light-duty overhead hoisting equipment which is ideal to work with the metallurgical use single girder ladle crane for hot loads handling with capacity up to 10 tons. The casting ladle crane hoist also can be used on double girder overhead cranes with lifting capacity up to 63 tons with customized crane designs. The standard metallurgical use casting ladle crane hoists are not allowed to be used in applications where potentially explosive gases & dusts or flammable materials exist but the customized wire rope hoists with features of explosion proof or spark resistant are needed.
Features of casting ladle crane hoist - Heat insulation plate and the working environment temperature is - 10 ℃ - 60 ℃
Features of casting ladle crane hoist-Special insulation treatment is adopted for cables.
Features of casting ladle crane hoist -Hook with insulated base
The dominate feature of metallurgical electric wire rope hoist is hot temperature resistant with high safety by adopting dual brake, double spacing, insulation boards, and other protections. And the general features of the metallurgical use electric hoists are as following for your reference:
Metallurgical use electric wire rope hoist and single girder casting ladle crane are typically used to lift and handle molten metal, ladle or other solid high temperature objects with the working application conditions that environments temperature is 10℃~60℃ and relative humidity less than 50% under the condition of 40℃ temperature.
Specifically, the metallurgical use electric hoist and single girder crane are widely used in steel industrial and mining enterprises, foundry workshops, material yards, and others for high-temperature molten liquid metal and solid metal handling which is a safe and effective lifting equipment to improve your efficiency, safety and reduce labor stress and cost.If the single girder casting crane doesn't meet your requirements, consider our double girder ladle crane. Alternatively, feel free to contact us for a customized overhead casting crane tailored to your specific needs.
Casting ladle crane with electric single beam crane design & processed electric rope hoist for steel mill hot ladle lifting, safe & economical, up 10 ton. Contact us to get the ladle handling electric single beam crane now!
Latest project
QDX 150 ton overhead crane in action in Paraguay. Installation photos, video, and client feedback show performance, safety, and heavy-lifting efficiency.
Free consultation to Confirm Parameters & Specifications and Get
Latest Crane Price & Crane Rate.
Just leave a message via the contact form and our hoist and crane engineer will contact you with in 24working hours.
Get In Touch

