Capacity

Awesome Image

Electric Jib Crane Specifications 1 ton, 2 ton, 3 ton, 5 ton

Electric jib cranes specifications - Pillar jib cranes 0.5 ton -5 ton, Wall travelling jib cranes 0.25 ton -3 ton, Wall mounted jib crane 0.25 ton -5 ton.

Category: Hoist and Crane Specifications

Your Trusted Overhead Travelling Crane Manufacturer & Supplier

Electric Jib Crane Specifications 1 ton, 2 ton, 3 ton, 5 ton
Pillar Jib Cranes, Wall Travelling Jib Cranes & Wall Mounted Jib Crane

Electric jib crane is a light duty lifting systems for loads handling which can be grouped in to Pillar mounted jib crane, Mobile jib crane, Wall mounted jib crane, Wall travelling jib crane. Our standard offering with high quality includes the basic light jib cranes or advanced and customized electric jib equipped with high-tech features. If you have any need of the electric jib crane, please feel free to contact us.

Main classification of slewing jib crane

  • BZ Type Pillar Jib Crane, Lifting capacity: 0.5ton-10 ton,lifting height:1m-10m, Working class: light (A3)
  • BX Type Mural Jib Crane, lifting capacity 0.25ton -3 ton, lifting height 1m-10m, Working class A3
  • BB Type Wall-travelling Jib Crane,lifting capacity 0.25 ton -3 ton, lifting height 6m-30m,Working class A3

Application of overhead jib cranes

  • The electric jib cranes are in particular used for lifting in short-distance or serried place in workshop, storage, yard, and some other fixed place.
  • The general use overhead jib crane is prohibited to use it in a flammable, explosive, or corrosive environment.
  • Application Purpose and Environmental Factors: Ambient Temperature: -25°C to +40°C, Humidity: 85%, Elevation: 1000m, Power: 3 PH, 380V to 50HZ (also can meet client's requirement).

Main features of rotating jib cranes

  • The jib crane can be used freely in three dimensions.
  • Specially designed structure of the electric jib crane is safe and reliable, highly effective, and time and energy efficient.
  • Simple jib cranes are light weighted, flexible movement, and spacious working area.

The covering area of the electric jib crane is relatively small compared with that of the overhead crane. But they are simple to use and maintain, long-lasting economically, and flexible rotary.

Standards of jib crane

  • GB3811-2008 "Crane Design Standards"
  • GB6067-85 "Crane Machinery Safety Procedures"
  • GB5950-86 "Crane Test Specification and Procedures"
  • JB8906-1999 "Jib Crane"

Loaded Test of Electric Jib Cranes

Unloaded Test

When unloaded, the electric jib cranes are operated to test the lifting, rotating, travelling, moving, and test their limiter device. Each test should operate three rounds.

  • Operating Standard: No crawling, shaking, clashing, overheating, or abnormal noise is made by any of the mechanisms. No moving parts have an oil leak.
  • The controlling system of the overhead jib crane is reliable and precise.
  • All of the lifting, traveling, and moving limits are reliable and precise.
  • Rotating, lifting height, and working radius are all within the scope that is permitted.

Rated Loaded Test

Start the lifting, rotating, moving, and traveling processes in accordance with the demands of the rated loaded capacity. Test the trip limiter concurrently. Repeating this action three times is recommended.

And test eletric jib crane if it comply the requirements of following:

  • The deflection lines up with state policy.
  • All lifting, rotating, and moving speeds of slewing jib crane must fall within the range that is permitted.
  • Lowest lowering speed has to be within range (not include the variable speed)
  • Noise must fall within the permitted scope.
  • No-defection for the essential parts.

Fixed loading test

Make sure the lifting weight of the jib crane for testing is 1.25 times the rated capacity and that it complies with the GB/T5905 standard to test :

  • The load bearing parts of the electric jib hoist are free from distortion and damage in the form of permanent damage.
  • No welding line cracks.
  • Joints that are stable.
  • The major electric jib crane components are undamaged.

Moving loading Test

When 1.1 times of rated lifting capacity, according to GB/T5905 standards test:

  • Operating Standard: No crawling, shaking, clashing, overheating, or abnormal noise is made by any of the mechanisms. No moving parts have an oil leak.
  • The control system is reliable and precise.
  • Reliable braking
  • Various institutions and spare parts without damage, shaking, or abnormal noise

Pillar Jib Crane Specifications of 2 ton, 3 ton, 5 ton

Pillar mounted jib cranes are a relatively new type of small and medium-sized lifting equipment. It has a unique structure, is safe and reliable, and has the benefits of high efficiency and energy savings, time savings, flexibility, and so on. Additionally, it can be freely used in 3D space. Additionally, it can demonstrate its superiority when performing close-quarters or heavy lifting tasks. widely used in factories, warehouses, docks, and other permanent locations.

Features of electric pillar jib crane

The pillar jib crane is a type of lifting equipment that is widely used in workshops, storage, mining, and ports. It is made up of up-pillars, down-pillars, main beams, bars, electric hoists, rotating mechanisms, and an electric system.

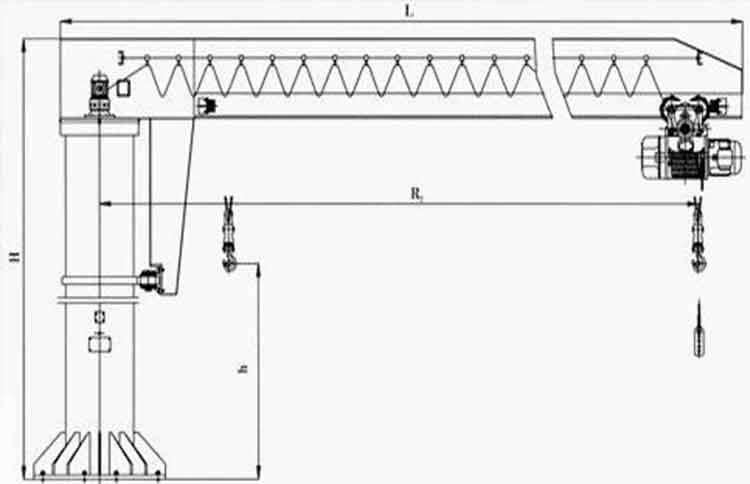
BZ Type Pillar Jib Crane Specifications 1 ton

BZ Type Pillar Jib Crane Specifications 1 ton

Lifting height(h)

m

5

5.5

6

Rotating radius R2

m

4

4.5

5

Lifting speed

m/min

8

Rotating speed

r/min

0.7

Travelling speed

m/min

20

Rotating angle

180°,270°,360°,at will

Max.height H

m

5.987

6.487

6.987

Max.length L

m

4.61

5.11

5.61

Body weight

kg

1860

1960

2229

BZ Type Pillar Jib Crane Specifications 2 ton

BZ Type Pillar Jib Crane Specifications 2 ton

Lifting height(h)

m

4

4.5

5

Rotating radius R2

m

4

4.5

5

Lifting speed

m/min

8

Rotating speed

r/min

0.7

Travelling speed

m/min

20

Rotating angle

180°,270°,360°,at will

Max.height H

m

5.28

6.78

6.28

Max.length L

m

4.626

5.126

5.626

Body weight

kg

2478

2613

2748

BZ Type Pillar Jib Crane Specifications 3 ton

BZ Type Pillar Jib Crane Specifications 3 ton

Lifting height(h)

m

4.5

5

Rotating radius R2

m

5

5.5

Lifting speed

m/min

8

Rotating speed

r/min

0.5~1

Travelling speed

m/min

20

Rotating angle

180°,270°,360°,at will

Max.height H

m

6.254

6.754

Max.length L

m

6.32

6.82

Body weight

kg

3577

3742

BZ Type Pillar Jib Crane Specifications 5 ton

BZ Type Pillar Jib Crane Specifications 5 ton

Lifting height(h)

m

4.5

5

Rotating radius R2

m

5

5.5

Lifting speed

m/min

8

Rotating speed

r/min

0.5~1

Travelling speed

m/min

20

Rotating angle

180°,270°,360°,at will

Max.height H

m

6.522

7.022

Max.length L

m

5.94

6.44

Body weight

kg

4224

4430


Mural Jib Crane Specification 0.25 ton, 0.5 ton & 1 ton

A wall-mounted jib crane is commonly used for loading and unloading materials in workshops, manufacturing, and assembly.

The majority of them are equipped with pendant control; however, in some special working conditions, we will recommend remote control to customers.

The wall mounted jib crane is designed to be attached to the structure of your building or other supporting facility and does not take up any of your plant's square footage. The most cost-effective electric travelling crane for material handling is the wall-mounted jib crane.

Features of wall mounted jib crane

Features of wall mounted jib crane

  • It is also known as a wall type jib crane or a Mural Jib crane.
  • The jib hoist can be selection from an electric hoist and a chain block.
  • The electric jib crane is fixed to a wall or concrete pillar, and it can rotate as needed by the client.
  • The rotating device can be operated manually or electrically.

Advantages of wall mounted jib crane

Advantages of wall mounted jib crane

  • There is no need to modify your building structure to accommodate a wall mounted jib crane.
  • Using less working space
  • Material manipulation in a three-dimensional plane.
  • Crane rotation can be tailored to your specific needs.
  • Overload protection device, crane traveling limit switch, lifting height limit device, and other features
  • Multiple functions, such as voltage lower protection, energy stop, and so on.
  • High-quality polyurethane buffer with a long working life.

BX Type Mural Jib Crane Specifications 0.25 ton

BX Type Mural Jib Crane Specifications 0.25 ton

Lifting height(h)

m

5

5.5

6

Rotating radius R

m

4

4.5

5

Lifting speed

m/min

8

Travelling speed

m/min

20

Rotating angle

180°,270°,360°,at will

Pillar Centre Height(H)

m

1.2

Max. Length(L)

m

4.326

4.826

5.326

Body weight

kg

343

362

378

BX Type Mural Jib Crane Specifications 0.5 ton

BX Type Mural Jib Crane Specifications 0.5 ton

Lifting height(h)

m

5

5.5

6

Rotating radius R

m

4

4.5

5

Lifting speed

m/min

8

Travelling speed

m/min

20

Rotating angle

180°,270°,360°,at will

Pillar Centre Height(H)

m

1.6

Max. Length(L)

m

4.43

4.93

5.43

Body weight

kg

389

405

420

BX Type Mural Jib Crane Specifications 1 ton

BX Type Mural Jib Crane Specifications 1 ton

Lifting height(h)

m

5

5.5

6

Rotating radius R

m

4

4.5

5

Lifting speed

m/min

8

Travelling speed

m/min

20

Rotating angle

180°,270°,360°,at will

Pillar Centre Height(H)

m

2.56

Max. Length(L)

m

4.525

5.025

5.525

Body weight

kg

768

782

810

Wall-travelling Jib Crane Specifications 0.5 ton, 1 ton, 2 ton, 3 ton

The wall travelling jib crane is a new type of material lifting device based on the mural jib crane. The electric jib hoist can achieve both the horizontal direction off the jib and the vertical lifting direction. Its rail is installed on a concrete post in the workshop and can move in the longitudinal direction.

Features of wall travelling jib cranes

  • The work area is greatly expanded by this electric traveling crane, making better use of the available space.
  • The electric jib crane is wide and tall and is used in a workshop or storage area. If it is close to a wall, high frequency work is applied.
  • The electric slewing jib crane is typically used in conjunction with a ceiling-mounted bridge crane. It is positioned close to the wall, working in a cuboid space and primarily lifting light objects.

Electric wall travelling jib crane with tie rod jib arm 

BB Wall-travelling Jib Crane Specifications 0.5 ton

BB Wall-travelling Jib Crane Specifications 0.5 ton

Lifting height(h)

m

6,9,12,18,24,30

Longest arm L2

m

5~12.5(0.5 increasing)

Shortest arm L1

m

1.0

Lifting speed(slow)

m/min

8(0.8)

Trolley travelling speed

m/min

20,30

Crane travelling speed

m/min

8~40

BB Wall-travelling Jib Crane Specifications 2 ton

BB Wall-travelling Jib Crane Specifications 2 ton

Lifting height(h)

m

6,9,12,18,24,30

Longest arm L2

m

5~10(0.5 increasing)

Shortest arm L1

m

1.2

Lifting speed(slow)

m/min

8(0.8)

Trolley travelling speed

m/min

20,30

Crane travelling speed

m/min

8~40

BB Wall-travelling Jib Crane Specifications 3 ton

BB Wall-travelling Jib Crane Specifications 3 ton

Lifting height(h)

m

6,9,12,18,24,30

Longest arm L2

m

5~10(0.5 increasing)

Shortest arm L1

m

1.2

Lifting speed(slow)

m/min

8(0.8)

Trolley travelling speed

m/min

20,30

Crane travelling speed

m/min

8~40

BZ Jib Crane with Tailored Specifications Drawing for your reference

BZ 0.5 ton -2.5m-1,2m+1 9m pillar jib crane , electric chain hoist.Click to download 0.5 ton pillar jib crane drawing pdf with tailored specificaiton

BZ 0.5 ton -2.5m-1.2m+19m pillar jib crane with specifications chain hoist, manual rotating Click to download 0.5 ton freestanding jib crane drawing pdf with tailored specificaiton

BZ 1.5 ton-3m-4m free standing overhead jib crane chain hoist .Click to download 1.5 ton floor jib crane drawing pdf with tailored specificaiton

BZ 2 ton -3.8m-3m light jib crane manual trolley chain hoist .Click to download 2 ton floor mounted jib crane drawing pdf with tailored specificaiton.

BZ 2 ton -4.5m-5.5m slewing jib crane with ABM Europena style electric chain hoist.Click to download 2 ton electric jib crane drawing pdf with tailored specificaiton.

BZ 2 ton-2.5m-5.5m rotationg jib crane with fixed type cd electric hoist .Click to download 2 ton rotating jib crane drawing pdf with tailored specificaiton.

BZ 3 ton-5.5m-10m floor mounted jib crane with chain hoist .Click to download 3 ton overhead jib crane drawing pdf with tailored specificaiton.

BZ 4 ton -4.5m-2.5m floor jib crane .Click to download 4 ton floor jib crane drawing pdf with tailored specificaiton.

BZ 5 ton -10m-5m Heavy Duty Electric Jib Crane, CD Hoist.Click to download 5 ton heavy duty jib crane drawing pdf with tailored specificaiton.

BZ 7.5 ton -8.8m-5.7m+61.3m Heavy Duty Jib Crane BCD Explosion Proof Hoist .Click to download 7.5 ton explosion proof jib crane drawing pdf with tailored specificaiton.

Contact us to get your free standling pillar jib crane with specification tailored to your need and lifting conditions.

BX Jib Crane with Tailored Specifications Drawing for your reference

BX 0.5 ton -5m-6m Tie Rod Wall Mounted Jib Crane Electric Chain Hoist . Click to download 0.5 ton wall jib crane drawing pdf with tailored specification.

BX 0.25 ton -6m-4m Tie Rod Wall Mounted Jib Crane Electric Chain Hoist.Click to download 0.25 ton wall mounted jib crane drawing pdf with tailored specification.

BX 1 ton -5m-4m Tie Rod Wall Mounted Jib Crane Electric Chain Hoist.Click to download 1 ton wall jib crane drawing pdf with tailored specification.

BX 2 ton -5.5m-10m Tie Rod Wall Mounted Electric Jib Crane Electric Chain Hoist.Click to download 2 ton electric wall jib crane drawing pdf with tailored specification.

BX 3 ton -5.5m-10m Tie Rod Wall Mounted Overhead Jib Crane Electric Chain Hoist.Click to download 3 ton wall jib crane drawing pdf with tailored specification.

BB Jib Crane with Tailored Specifications Drawing for your reference

BB 1.5 ton -7m-4.5m eletric jib crane with electric chain hoist.Click to download 1.5 ton wall travelling jib crane drawing pdf with tailored specification.

BB 2 ton -7m-7m wall travelling jib crane with electric chain hoist .Click to download 0.5 ton wall travelling jib crane drawing pdf with tailored specification.

QDX 150 ton overhead crane in action in Paraguay. Installation photos, video, and client feedback show performance, safety, and heavy-lifting efficiency.


Free consultation to Confirm Parameters & Specifications and Get

Latest Crane Price & Crane Rate.

  • Types of overhead cranes : _______?
  • Optional: Overhead travelling crane, goliath gantry crane,Slewing jib crane, Single girder or double girder crane,small portable crane or kbk crane, etc.
  • Capacity of overhead crane: _______?
  • Optional: 0.25ton, 0.5 ton, 1 ton, 2 ton, 3ton, 5 ton, 10 ton,15ton, 20ton, 25 ton, 30ton,35ton, up to 550ton, etc.
  • Crane span & lifting height : _______?
  • Crane travelling length : _____?
  • Control of overhead crane:_______?
  • Optional: pendant/ remote/cabin control
  • Voltage supply of overhead crane:_____?
  • Eg,: 380V50/60HZ,3Phase or others,etc.
  • Application/usage of crane:_______?
  • Eg,: Steel mill, ,injection mold, cement,stone, concrete,granite, general manufacturing, etc.
  • Just leave a message via the contact form and our hoist and crane engineer will contact you with in 24working hours.

Get In Touch

Feel Free
to Contact With us