Product Details

Awesome Image

1000kg Jib Crane for Construction | 1 Ton Jib Crane for Sale Qatar

1 ton pillar jib crane for sale Qatar. 1000 KG foundation jib crane for sale Qatar for material handling in construction site. Check electric jib crane 1 ton specification now.

Category: Qatar

menu_open Content Quick Link

Your Trusted Overhead Travelling Crane Manufacturer & Supplier

1 Ton Jib Crane for Sale Qatar Good Price
1000kg Jib Crane for Construction Site Economical Jib Hoist

1000kg Jib Crane for Construction | 1 Ton Jib Crane for Sale Qatar

1 ton pillar jib crane for sale Qatar.  1000 KG foundation jib crane for sale Qatar for material handling in construction site. Check electric jib crane 1 ton specification now.

Overview of jib crane for Qatar

  • Crane type: BZ floor mounted jib crane
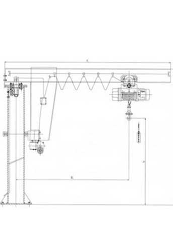
  • Main specifications: 1 ton, 3 m lifting height,  effective arm length 5M.
  • Crane application: Construction use near offshore use
  • Project locations: Qatar

The client is a local technical service engineering company in Qatar. The motorized jib crane 1 ton is required to help the contruction of factories and engage in some infrastructure projects.

5 sets of free standing slewing jib cranes for sale Saudi Arabia

Jib crane solution confirmation procedures

The  Qatar customer inquired about the jib crane price around November 2018, and said they would come to our crane factory for inspection.

Crane technical parameter confirmation

In the process of confirming the order, there are more discussions on slewing jib technical parameters, such as the power of the rotating motor, the diameter of the cantilever base, and the thickness of the column. Communicate with their engineers all the time.

The final crane parameter of the floor mounted jib crane is 1 ton lifting capacity, 3 m lifting height and 5 m long effective arm.

Application environment confirmation

It is used on the seashore, the temperature is 50°C, and the humidity is 95%, so special epoxy anti corrosion paint is required.  

On thickness of the paint on the surface of the cantilever crane

The customer asked for 350 microns anti corrosion painting however, the thickness of the jib crane painting is suggested to be 120 microns. If the painting is too thick, the adhesion of the paint surface will be weak and it will fall off easily.

On the confirmation of drawing and processing material of 1 ton jib crane

on jib crane 1 ton drawing confirmationn

Qatar requirement

1 ton jib crane construction material confirmation

Our crane sale engieer reply on jib crane processing material

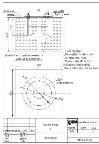
1 ton electric jib crane foundation drawing

Jib crane foundation confirmation

A foundation map is required to start laying the foundation, and the detailed dimensions of the rebar columns are also required.

 

1 ton electric motorized jib crane drawing

1000 KG jib crane drawing 

1000 ton electric jib crane with electric wire rope hoist for Qatar client 

Crane factory visiting of Qatar clients

Yuantai Crane send company invitation letter to customer for visa application

The engineer of the Q atar customer company came to inspect the 1 ton jib crane equipment . When he came to the Yuantai Crane  factory, his main concern was to ask a series of questions such as how to install this, how to install that jib hoist, and how to install the cables on the cantilever. The installation of the small jib crane is very easy and after explanation, the questions of  Qatar client was solved.

The  Qatar customer came to the Yuatai crane office on the third day . And  the main topic about the meeting was about some post-cooperation and  an agency agreement was signed.

Tips for exchanging foreign currency,

The Agricultural Bank of China can only exchange at the head office, and the Bank of China can exchange at any business hall. Foreigners cannot exchange directly, and Chinese people need to exchange foreign currency with their ID cards.


1 ton jib crane production and delivery

1 ton jib crane main steel part- jib column and cantilever

1 ton jib crane main steel part- jib column and cantilever 

Cantilever and column and jib crane parts for delivery to qatar

Cantilever and column and jib crane parts for delivery to qatar 

1 ton electric wire rope hoist for sale Qatar

1 ton electric wire rope hoist for sale Qatar 

Summary on 1000 kg jib crane for Qatar clients

What we have learnt from the 1 ton electric slewing jib crane ?

  • The more details confirmed with Qatar customers on the early stage of jib crane design, more smooth or easy on the later stage of jib crane solution confirmation and less problem or emergencies in the later stage.
  • The special use environment of jib crane has special requirements for painting. High and wet environment needs the anti-corrosion painting to ensure crane safety and working life.
  • As for the jib lifting height, the total height is 15m, which  is made up 3 meter above the height and 12 m below the ground. 
  • The processing material  of the electric jib crane are listed in detail for client reference if required.
  • After confirming the order, the foundation drawing of the floor mounted jib crane should be sent to the customer, so that the customer can prepare the foundation in advance.
  • When the customer visits, it is necessary to prepare the itinerary of the visit in advance, estimate the possible situation and the solution.

We are delicated to provide optional overhead material handling solution for client in Qatar. If you have any need of jib crane, overhead crane, or gantry crane, please feel free to contact us. Leave your lifting requirement now and let's see what we can do for you and what we can do to make us better. Contact us to get your small crane for your workshop. 

 

QDX 150 ton overhead crane in action in Paraguay. Installation photos, video, and client feedback show performance, safety, and heavy-lifting efficiency.


Free consultation to Confirm Parameters & Specifications and Get

Latest Crane Price & Crane Rate.

  • Types of overhead cranes : _______?
  • Optional: Overhead travelling crane, goliath gantry crane,Slewing jib crane, Single girder or double girder crane,small portable crane or kbk crane, etc.
  • Capacity of overhead crane: _______?
  • Optional: 0.25ton, 0.5 ton, 1 ton, 2 ton, 3ton, 5 ton, 10 ton,15ton, 20ton, 25 ton, 30ton,35ton, up to 550ton, etc.
  • Crane span & lifting height : _______?
  • Crane travelling length : _____?
  • Control of overhead crane:_______?
  • Optional: pendant/ remote/cabin control
  • Voltage supply of overhead crane:_____?
  • Eg,: 380V50/60HZ,3Phase or others,etc.
  • Application/usage of crane:_______?
  • Eg,: Steel mill, ,injection mold, cement,stone, concrete,granite, general manufacturing, etc.
  • Just leave a message via the contact form and our hoist and crane engineer will contact you with in 24working hours.

Get In Touch

Feel Free
to Contact With us