Your Trusted Overhead Travelling Crane Manufacturer & Supplier
Knowing the workshop conditions and dimensions is crucial when selecting an overhead crane because it helps to determine the most suitable crane configuration for the specific application. The available headroom, floor space, and lifting height requirements are all important factors to consider when selecting an overhead crane. The capacity of the loads that will be lifted and the types of loads that the crane will handle also need to be taken into account. By understanding the workshop conditions and dimensions, you can select an overhead crane that will operate safely and efficiently within the available space and meet your lifting needs.

Your Trusted Overhead Travelling Crane Manufacturer & Supplier
When designing a custom overhead crane for your workshop or facility, there are several key factors to consider:
By considering these factors, you can design a custom overhead crane that will operate safely and efficiently within your workshop or facility and meet your specific lifting needs. Click to know more about types of crane buildings and facility.
Main specifications or main terms needs to know to get your customized electric travelling bridge crane for indoor workshops
crane runway length, crane columns for indoor workshops Clicke to check more working coverages of overhead bridge cranes
When selecting an overhead crane for a workshop or facility, consider the following factors:
Careful evaluation of these factors is crucial when selecting an overhead crane.
A professional crane manufacturer or supplier can provide guidance and assistance in choosing the right crane for your needs.
For existing workshops, there are several additional factors to consider when selecting an overhead crane:
It is important to carefully evaluate these factors when selecting an overhead crane for an existing workshop. A professional crane manufacturer or supplier can provide guidance and assistance in selecting the right overhead crane for your specific needs.
Steel Structure workshops vs. Concrete workshops
how the factors and conditions for overhead crane selection may vary between steel structure and concrete workshops:
Building Structure
When selecting an overhead crane for a workshop or facility, one important factor to consider is the building structure. Steel structure workshops typically have a higher load-bearing capacity due to the strength and rigidity of the steel frame. This allows them to support heavier cranes and loads than concrete workshops, which may have lower load-bearing capacity due to the limitations of the concrete structure. A structural engineer should evaluate the building structure to determine its suitability for the installation of an overhead crane.
For both new and existing workshops, it is important to ensure that the building can support the weight and forces of the overhead crane. A structural engineer should evaluate the building structure to determine its suitability for the installation of an overhead crane.
Span and Height
Another important factor to consider is the span and height of the overhead crane. The span is determined by the distance between the rails on which the crane will travel, while the height is determined by the height of the building and the required lifting height of the load. Steel structure workshops may have larger spans and higher ceilings than concrete workshops, allowing for larger and taller cranes.
For new workshops, you can design the building with the span and height of the overhead crane in mind. This means you can ensure that there is enough space for the crane to operate effectively.For existing workshops, it is important to accurately measure the span and height to ensure that the selected crane will fit within the existing workshop space. Any obstructions, such as columns or beams, should also be taken into account.
Lifting Capacity
The lifting capacity of the overhead crane is another important factor to consider. This is determined by the maximum weight of the objects to be lifted and the weight of the pick-up mechanism. Steel structure workshops may be able to support cranes with higher lifting capacities due to their higher load-bearing capacity.
Working Level and Speed
The working level and speed of the overhead crane are also important factors to consider. The working level is chosen based on the load status and utilization level, while the working speed is determined by the required speed of lifting, traveling, and trolley movements. These factors may vary between steel structure and concrete workshops depending on their specific operational requirements.
Power Supply
The power supply for the overhead crane must also be considered. It must be sufficient to meet the power requirements of the crane's motors and control systems. Steel structure workshops may have different power supply requirements than concrete workshops due to differences in crane size, lifting capacity, and operational requirements.
Environmental Conditions
Environmental conditions, such as temperature, humidity, and presence of corrosive or explosive materials, must also be taken into account when selecting an overhead crane. These conditions may vary between steel structure and concrete workshops depending on their specific operational requirements.
Safety Features
Finally, safety features such as overload protection, emergency stop systems, and anti-collision devices are essential for ensuring safe operation of an overhead crane. These features are important for both steel structure and concrete workshops, but their specific requirements may vary depending on the size, lifting capacity, and operational requirements of the crane.
In summary, factors such as building structure, span, height, lifting capacity, working level, speed, power supply, environmental conditions, and safety features may vary between steel structure and concrete workshops when selecting an overhead crane. A professional crane manufacturer or supplier can provide guidance and assistance in selecting the right overhead crane for your specific workshop type. Click to learn more on cranes workshops and crane building.
Your Trusted Overhead Travelling Crane Manufacturer & Supplier
Overhead crane runways are the structural elements of an overhead crane that provide stability and support to the bridge crane structure.
Overhead crane end carriages with wheels running on crane rails
Overhead bridge crane crane rail installation
There are several main types of crane runways, including top-running, underhung, free-standing, and semi-free standing crane runways.
The main components of a crane runway include the vertical support columns, the bridge girder to support the rail, and the trolley/hoist assembly. The crane rail is also an important component of the crane runway, providing a smooth, level surface for the end trucks to travel along. All of these components work together to provide support and rigidity to the bridge crane assembly and ensure safe and efficient operation of the overhead crane.
A semi-free standing crane runway is a type of crane runway that utilizes the structure itself to help support the longitudinal and lateral forces acting on the crane. This type of crane runway is typically used when the building structure is not capable of supporting the full weight and forces of the overhead crane, but can provide some support.
Semi-free standing crane runways do not require as much steel as other designs, making them more cost-effective. They are typically braced back to the building structure to provide additional support and stability.
Some features of semi-free standing crane runways include:
It is important to carefully evaluate your specific needs and requirements when selecting a crane runway for your overhead crane. A professional crane manufacturer or supplier can provide guidance and assistance in selecting the right type of crane runway for your specific needs.
Free-standing crane runways are self-supporting structures that can be located indoors or outdoors. They do not require support from the building structure and can be used for a variety of overhead crane types.
Features of freestadning crane runways






Columns mounting
A ceiling mounted crane runway is a type of crane runway that is mounted to the ceiling of a building. This type of crane runway is typically used for underhung cranes, which are suspended from the ceiling and travel along the bottom flange of the runway beam.
Ceiling mounted crane runways are commonly used in facilities where floor space is limited or where there are obstructions on the floor that would interfere with the operation of a floor-mounted crane. They can also be used to maximize the lifting height of the crane by utilizing the full height of the building.
Ceiling Mounted
Some features of ceiling mounted crane runways include:
The crane rail is a key component of the crane runway. It is mounted on top of the runway beam and provides a smooth, level surface for the end trucks of the crane to travel along. The end trucks use the rail to transport the bridge and hoist along the crane runway .
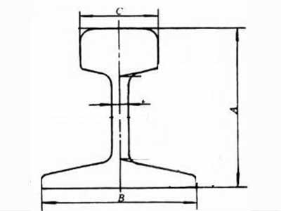
crane rail drawing
Overhead bridge crane rail
Overhead crane rails are tracks that overhead cranes use to move along. These rails are attached to supporting beams, which can be made of steel or concrete. Crane rails come in two types: light rail (P) and heavy rail (QU). P-type railroad rail is used for small and medium tonnage cranes, while QU type crane special rail or square rail is used for large tonnage gantry cranes. There are also special rails designed for specific needs and applications.
Track Model Table | ||||||
light rail, | Model | Height A | Bottom width B | Head width C | Track Waist Thickness | kg/m |
P8 | 65 | 54 | 25 | 7 | 8.42 | |
P12 | 69.85 | 69.85 | 38.1 | 7.54 | 12.2 | |
P15 | 79.37 | 79.37 | 42.86 | 8.33 | 15.2 | |
P18 | 90 | 80 | 40 | 10 | 18.06 | |
P22 | 93.66 | 93.66 | 50.8 | 10.72 | 22.3 | |
P24 | 107 | 92 | 51 | 10.9 | 24.95 | |
P30 | 107.95 | 107.95 | 60.33 | 12.3 | 30.1 | |
heavy rail | Model | Height | Bottom width | Head width | Track Waist Thickness | kg/m |
P38 | 134 | 114 | 68 | 13 | 38.733 | |
P43 | 140 | 114 | 70 | 14.5 | 44.653 | |
P50 | 152 | 132 | 70 | 15.5 | 51.514 | |
When choosing a crane rail system for your application, several factors need to be considered to ensure optimal performance and safety. Here are some key factors to consider:
It may be helpful to consult with a crane rail supplier or manufacturer to determine the best crane rail system for your specific needs. They can provide expert advice and guidance on selecting the right crane rail system for your application.
To ensure proper matching of crane wheels to crane rails, several factors need to be considered:
It may be helpful to consult with a crane rail supplier or manufacturer for specific guidance on ensuring proper matching of crane wheels to crane rails for your application.
Latest project
QDX 150 ton overhead crane in action in Paraguay. Installation photos, video, and client feedback show performance, safety, and heavy-lifting efficiency.
Free consultation to Confirm Parameters & Specifications and Get
Latest Crane Price & Crane Rate.
Just leave a message via the contact form and our hoist and crane engineer will contact you with in 24working hours.
Get In Touch