Capacity

Awesome Image

Grab Overhead Cranes Specifications 3 ton, 5 ton, 10 ton 16 ton

Grab Overhead Crane for sale. Check 3 ton, 5 ton, 10 ton, 16 ton grab overhead crane specifications to get right grab bridge crane for you!

Category: Hoist and Crane Specifications

Your Trusted Overhead Travelling Crane Manufacturer & Supplier

Grab Overhead Cranes Specifications 3 ton, 5 ton, 10 ton 16 ton
Efficient & Safe Bulk Material Handling Grab Bucket EOT Crane

Grab overhead cranes are available in a variety of capacities and sizes to handle large amounts of bulk materials in an efficient and safe manner. We can provide customers with superior quality bridge cranes custom designed to meet all types of lifting requirements because we have a wealth of experience in the crane manufacturing industry. These bulk handling grab bucket cranes come in two basic configurations, single girder and double girder, which can be selected based on your application conditions and requirements.

Our company mainly produce grab overhead crane can be designed with single girder & double girder overhead crane designs. The grab overhead crane specifications can be tailored with lifting capacity of 5-20t, lifting height of 1-30m, and A6 of medium working duty. If you need a grab bridge crane with your particular specification for your application, please feel free to contact us.

Single girder grab overhead crane 2 ton -10 ton

LDZ single girder overhead crane parameters:

  • Load capacity: 2-10t
  • Span: 4.5-28.5m
  • Lifting height: 6-16m
  • Lifting speed: 14-16m/min
  • Hoist running speed: 20m/min
  • Crane running speed: 20m/min
  • Work duty: A3, A4
double girder grab bridge crane 5 ton to 20 ton

QZ double girder overhead crane parameters:

  • Load capacity: 5-20t
  • Span: 10.5-31.5m
  • Lifting height: 6-26m
  • Lifting speed: 30.7-39.3m/min
  • Trolley running speed: 31.1-44.6m/min
  • Crane running speed: 76.9-93.6m/min
  • Work duty: A5-A7

Main features of grab overhead crane

  • Overhead lifting equipment designed specifically for bulk and granular materials;
  • Simple structure, reliable, and high efficiency;
  • Good manufacturing technology, long service life;
  • Large load capacity, heavy duty operation;
  • Depending on the the loading material, different types of crane grabs or grab buckets can be selected.

Main application of grab bridge crane

  • Widely used for loading, unloading, and transferring bulk materials in power plants, garages, workshops, and docks, and many other places where bulk material handling is required.
  • The rated capacity, including the weight of the grab.
  • The general use grab bridge crane is prohibited to use in flammable, explosive, or corrosive media environments. lf you have any need, please feel free to contact our crane engineer.
  • This electric overhead travelling crane is used in ambient temperatures of -25°C+40°C, humidity of 85%, elevation of less than 1000m, and power supply of 3-ph, 380V, 50HZ (can change as user demand).

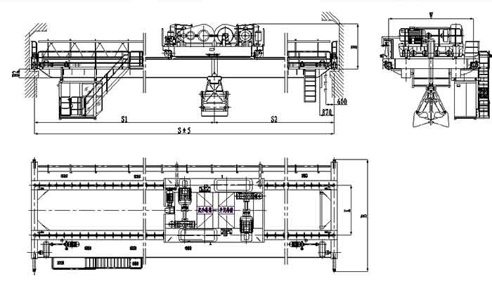
Main structure and characters of grab overhead crane, double girder designs

double girder grab bridge crane

Note: grab has two opening directions, vertical or horizontal to main beam . Picture above is the horizontal type.

Mainly composed by 5 parts: bridge, trolley and crane traveling mechanism, electric equipment, grab, and other accessories.

Bridge
  • Double girder, steel plate welded box beam, national standard camber;
  • Double girder, steel plate welded box beam, national standard camber;
  • The primary weld uses automatic submerged arc welding and NDT.
  • End carriages of grab overhead crane connected by high strength bolts and nuts, making transportation easier;

With uniform, fine, bright, complete, and consistent painting color; With painting thickness of 2535m each layer and total thickness of 75105m.

Trolley

  • The lifting mechanism of grab bucket crane is made up of a motor, a brake, a coupling, a transmission shaft, a reducer, pulley blocks, wire rope, and other components.
  • Grab eot crane is equipped with a dedicated YZR type wound motor and with insulation class F.
  • Equipped with hydraulic push rod type brakes, which will close the grab when the overhead crane is not working, and opened by brake releases device when working;
  • Roll casting reel with 3.5° wire rope angle, 3 laps and 2 laps fixed circle at both ends of reel;
  • Overhead crane dedicated 6W(19) wire rope, line contact type, high strength, long life;
  • A rotating limit switch is installed on the spindle nose of the winding drum to ensure safe lifting.
double girder grab bridge crane open winch trolley

Crane traveling mechanism

  • There are four traveling wheels installed on each side of the two end beams. Two of them are active wheels and the others are driven ones. The driving device of active wheels is installed on the walkway. Here adopt two sets of symmetrical independent driving devices and we call it respectively driven.
  • The reducer adopts circular-arc gear one of which load capacity is higher than involute gear reducer of the same type. All of the mechanisms adopt rolling bearing with A.C. electromagnetic block brake.
  • Driving devices include Reducer,Motor, Brake, Coupling,.Coupling, Wheels, etc.
  • The connection of the mechanism parts all adopt gear coupling. In this way, it can work well by gear coupling compensated even there is an error caused in manufacture and installation or deflection between the parts caused by bridge deformation when loading.
  • Active and driven wheel axle support on the angular bearing box for easy assembly and maintenance.

Electric equipment

  • Electric control box layout is reasonable, easy to repair
  • Security trolley line or angle steel trolley line
  • External cable are equipped with mark line number
  • Trolley moving's power is supplied by flat cable
  • The conductor is I steel or C shape sliding line
  • Safety sliding touch line with high conductive rate and low pressure drop; current collector with high speed.
  • Lifting and crane can be independently controlled; also can work separately or together.

Overhead Crane Grabs

  • Four-rope grab、double-rope grab
  • Orange-petal grab、electric & hydraulic grabs
  • Straw grab, wood grab, and other rich series varieties

Crane Specifications of Grab Overhead Crane & Grab Bridge Crane

Technical Parameter of LDZ Electric Single Girder Grab Overhead Crane 2 Ton, 3Ton, 5 Ton, 10 Ton

Technical Parameter of LDZ Electric Single Girder grab Crane

Capacity

t

2 ton

3 ton

5 ton

10 ton

Span

S(m)

4.5-28.5

4.5-28.5

4.5-28.5

4.5-28.5

Lifting height

m

6~16

6~16

6~16

6~13

Lifting speed

m/min

16

16

16

14

Trolley speed

m/min

20(30)

20(30)

20(30)

20(30)

Crane speed

m/min

20(30)

20(30)

20(30)

20(30)

Grab volume

0.5

0.5

0.75

1

Work duty


A3~A4

A3~A4

A3~A4

A3~A4

Track type


P18 P24

P24

P24

P24 P30

Crane Specifications of QZ Double Girder Grab Bucket Overhead Crane 5 Ton, 10 Ton, 16 Ton, 20 Ton

Technical Parameter of QZ Double Girder Grab Bucket Overhead Crane 5 Ton, 10 Ton, 16 Ton, 20 Ton

Capacity

t

5 ton

10 ton

16 ton

20 ton

Span

S(m)

10.5~31.5

10.5~31.5

10.5~31.5

10.5~31.5

Lifting height

m

6~18

6~18

6~26

6~26

Lifting speed

m/min

31.3

29.7

32.7

30.7

Trolley speed

m/min

44.6

31.7

31.1

31.1

Crane speed

m/min

93.6

86.5

75.1

76.9

Work duty


A5~A7

A5~A7

A5~A7

A5~A7

Track type


P43 QU70

P43 QU70

QU70

QU70

QZ Type of 5 Ton Grab Bucket Overhead Crane Specifications

5 ton grab bucket overhead crane specifications

Span (S)

m

10.5

13.5

16.5

19.5

22.5

25.5

28.5

31.5











Max lifting height

m

20

Lifting speed

m/min

39.2

Trolley traveling speed

m/min

44.6

Crane traveling speed

m/min

93.6

113.6

Lifting motor

kw

22×2

Trolley motor

kw

3.7











Crane whole weight(in door)

t

16.6

18.2

20.2

23.2

25.9

30

33.4

36.6

Crane whole weight(out door )

t

17.4

19

21

24

26.7

30.8

34.2

37.4

Max wheel load

KN

75

80

87

95

102

113

122

130

Crane rail recommended


P43 or QU70











Main dimension

mm

10.5

13.5

16.5

19.5

22.5

25.5

28.5

31.5

Distance from rail surface to trolley top

H

1876

1876

1876

1876

1876

1926

1926

1926

Distance from rail surface to beam bottom

H2

128

228

328

478

628

728

878

1028

Distance between two wheels

W

4000

4000

4000

4050

4050

5000

5000

5000

End carriage length

B

6568

6568

6568

6638

6638

7163

7163

7163

Trolley span

K

2000

Grab left limit

S1

1635

Grab right limit

S2

1635

Grab










Type


Light

Medium

Heavy

Super heavy


Volume

m3

2.5

1.5

1

0.75


Material density

t/m3

≤1

>1~1.7

>1.7~2.5

>2.5~3.3


Dead weight

kg

2633

2550

2615

2510

2570

2480

2560

QZ type 10 Ton Grab Overhead Crane Specifications

QZ type 10 Ton Grab Overhead Crane Specifications

QZ type 10 ton grab overhead crane specifications

Span (S)

m

10.5

13.5

16.5

19.5

22.5

25.5

28.5

31.5











Max lifting height

m

18

Lifting speed

m/min

39.3

Trolley traveling speed

m/min

45.9

Crane traveling speed

m/min

112.5

101

Lifting motor

kw

37×2

Trolley motor

kw

5.5











Crane whole weight(in door)

t

20.8

22.4

25.2

29.1

32.8

36.2

40

43

Crane whole weight(out door )

t

21.7

23.3

26.1

30

33.7

37.1

40.8

43.8

Max wheel load

KN

113

121

131

142

152

162

172

180

Crane rail recommended


P43 or QU70











Main dimension

mm

10.5

13.5

16.5

19.5

22.5

25.5

28.5

31.5

Distance from rail surface to trolley top

H

2078

2078

2078

2189

2189

2189

2189

2189

Distance from rail surface to beam bottom

H2

815

815

815

940

940

940

940

940

Distance between two wheels

W

4000

4000

4000

4100

4100

5000

5000

5000

End carriage length

B

6913

6913

6913

6963

6963

7413

7413

7413

Trolley span

K

2000

Grab left limit

S1

2015

Grab right limit

S2

1850

Grab










Type


Light

Medium

Heavy

Super heavy


Volume

m3

5

3

2

1.5


Material density

t/m3

≤1

>1~1.7

>1.7~2.5

>2.5~3.3


Dead weight

kg

4800

4803

4866

4850

4913

4730

4793

Pycnometer of Loose Material Piles for your reference

Pycnometer of Loose Material Piles for your reference


Material name

Proportion(t/m3 )

Material name

Proportion(t/m3 )

Material name

Proportion(t/m3 )

Material name

Proportion(t/m3 )

Anthracite

0.7-1.0

Zinc dust

0.7-1.5

Pyrite (block)

1.5-1.9

Large lime

1.6-2.0

Bituminous coal

0.8

Pyrite cinder

1.7-1.8

Manganese

1.7-1.9


Lime blocks

1.2-1.5

Lignite

0.6-0.8

Lead and zinc pellets

1.3-1.8

Magnesia (block)

2.2-2.5

Small lime

1.2-1.5

Peat

0.29-0.5

Pyrite pellets

1.2-1.4

Powdered magnesia

2.1-2.2

Quicklime

1.7-1.8

Peat (wet))

0.55-0.65

Flat slag (coarse)

1.6-1.85

Copper

1.7-2.1

Gravel

1.32-2.0

Coke

0.36-0.63

Blast furnace slag

0.6-1.0

Copper concentrate

1.3-1.8

Dolomite (block)

1.2-2.0

Charcoal

0.2-0.4

Lead and zinc water slag (wet)

1.5-1.6

Lead concentrates

1.9-2.4

Crushed dolomite

1.8-1.9

Anthracite powder

0.84-0.89

Dry ash

0.64-0.72

Zinc concentrate

1.3-1.7

Gravelly soil

1.5-1.9

Bituminous coal powder

0.4-0.7

Coal ash

0.70

Lead and zinc

1.3-2.4

Clay (small pieces)

0.7-1.5

Powdered graphite

0.45

Coarse sand (dry)

1.4-1.9

Iron sinter

1.7-2.0

Clay (wet)

1.7

Magnetite

2.5-3.5

Coarse sand (wet)

1.4-1.65

Broken sinter

1.4-1.6

Cement

0.9-1.7

hematite

2.0-2.8

Sand (wet)

1.8-2.1

Lead Sintering

1.8-2.2

Hydrated lime (powder)

0.5

Limonite

1.2-2.1

Molding sand

0.8-1.3

Lead-zinc sintering block

1.6-2.0

Hydrated lime

2.0

Grab overhead crane with specification of 5 ton -19.5m-12m

Grab overhead crane with specification of 5 ton -19.5m-12m A7.Click to download 5 ton grab overhead crane drawing pdf.

Grab overhead crane with specification of 10 ton-29m-16m A6.

Grab overhead crane with specification of 10 ton-29m-16m A6.  Click to download 10 ton grab overhead crane drawing pdf.

Grab overhead crane with specification of 25 ton-28.5m-21m A8,

Grab overhead crane with specification of 25 ton-28.5m-21m A8, cabin control. Click to download 25 ton grab overhead crane drawing pdf. 

Grab Crane Operating Principle

  • Grab or grab bucket is a type of overhead crane attachments to load or unload the bulk materials by open and close the grab bucket jaws.
  • Crane grabs are classified into three types based on their operation: double-rope, single-rope, and motor grab. The most common method is the double-rope grab.
  • Grab can be classified as light (such as crawl grain), medium (such as crawl gravel), or heavy based on the packing density of the materials (such as to grab iron ore)
  • According to the jaw plate number, it can be divided into dual jaw plate grab or clamshell grab and multitude jaw plate grab or orange peel grab . And the double jaw or plates grab bucket is one of the most frequently used type.
  • To crawl the lump ores, scrap iron, and scrap, the multitude jaw plate grab is suggested , because it has more claws and a notch tip that allows it to easily insert the stockpile and do a good crawl.
  • For underwater materials or special materials handling, special designed grab bucket should be selected. And also, when the grab bridge crane is using outside, the rainproof devices will be installed.

QDX 150 ton overhead crane in action in Paraguay. Installation photos, video, and client feedback show performance, safety, and heavy-lifting efficiency.


Free consultation to Confirm Parameters & Specifications and Get

Latest Crane Price & Crane Rate.

  • Types of overhead cranes : _______?
  • Optional: Overhead travelling crane, goliath gantry crane,Slewing jib crane, Single girder or double girder crane,small portable crane or kbk crane, etc.
  • Capacity of overhead crane: _______?
  • Optional: 0.25ton, 0.5 ton, 1 ton, 2 ton, 3ton, 5 ton, 10 ton,15ton, 20ton, 25 ton, 30ton,35ton, up to 550ton, etc.
  • Crane span & lifting height : _______?
  • Crane travelling length : _____?
  • Control of overhead crane:_______?
  • Optional: pendant/ remote/cabin control
  • Voltage supply of overhead crane:_____?
  • Eg,: 380V50/60HZ,3Phase or others,etc.
  • Application/usage of crane:_______?
  • Eg,: Steel mill, ,injection mold, cement,stone, concrete,granite, general manufacturing, etc.
  • Just leave a message via the contact form and our hoist and crane engineer will contact you with in 24working hours.

Get In Touch

Feel Free
to Contact With us