Awesome Image

16 Ton Overhead Crane & 8 Ton + 8 Ton Bridge Crane for Sale UAE

Single girder top running overhead cranes for sale UAE, 3 sets. 16 ton overhead cranes & 8 ton + 8 ton bridge crane, synchronized remote control. Check now.

Crane type single girder overhead crane with top running crane design
Crane capacity 16 ton, 8 ton + 8 ton
Way of delivery Container, by shipping
Country of destination United Arab Emirates

Category: Custom EOT Crane Manufacturing

menu_open Content Quick Link

Your Trusted Overhead Crane Manufacturer & Supplier

16 Ton Overhead Crane & 8 Ton + 8 Ton Bridge Crane for Sale UAE
Tandem Control & Separate Control Double Hoist Overhead Crane

Single girder top running overhead cranes for sale UAE, 3 sets. 16 ton overhead cranes & 8 ton + 8 ton bridge crane, synchronized remote control. Check now.

Basics of synchronized control double hoist crane for Sale UAE

  • Crane Type: single girder overhead cranes
  • Date of Placing Oder: 2020.4.13
  • Date of Delivery : 2020.6.5
  • Way of Transportation: Container,By Sea
  • Way of Payment: TT 50%
  • Destination country: United Arab Emirates
  • Destination port:CIF Jebel Ali Port, United Arab Emirates
  • First Contact:2020.4
  • Application: Automobile industry

General requirements & main specifications of overhead cranes for UAE

Crane type

European style single girder overhead crane

European style single girder overhead crane

Model

HD

HD

Working Class

A5

A5

Capacity

8 + 8 ton

16 ton

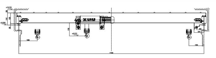
Span length (m)/ Effective Arm Length

17.8 M

17.5 M

Lifting Height(M)

5.4 m

8.033 m

Crane control

Remote control tandem control & separate control to the two electric hoists

Remote control tandem control & separate control to the two electric hoists

Voltage

380v,50hz,3p

380v,50hz,3p

Color

Yellow

Yellow

Application

Indoor use

Indoor use

Crane rail

P30

P30

Quantity

1

2

Main parts and components of 16 ton overhead cranes for sale UAE

  • Seamless sliding line: 8+8 tons overhead crane : 10 mm2 and 39 meters;
  • Seamless sliding line:2 sets of 16 tons overhead crane : 16 mm2 and 65 meters
  • P30 track: 78+130m=208m (3 sets of HD European style single girder overhead cranes have a total of 710 welded pressure plates, and a total of 24 pairs of clamping plates.)
  • Electronic scales: (hook type) 2 pcs 8 tons, 2 pcs 16 tons (8 tons accuracy reaches 5KG, 16 tons accuracy reaches 10kg)

Customized features of 16 ton overhead cranes for sale UAE

  • The customer's column, rail bearing beam, and corbel have been finished designing. The size of the single girder overhead crane must go match to the size of the existing steel structure and strictly follow the size on our design drawings.
  • The electrical cabinet needs a nameplate, indicating the protection level IP54 and other information (to facilitate SGS inspection)
  • Overheating protection is required.
  • Before delivery, SGS inspection is required to inspect the 3 sets of European style single girder top running overhead cranes in terms of quantity, appearance, parameter configuration inspection, etc.
8 ton + 8 ton single girder overhead crane with top running crane design and double hoists for synchronized operation

8 ton + 8 ton single girder overhead crane with top running crane design and double hoists for synchronized operation

16 ton single girder overhead crane, 2 sets, equipped with remote control for tandem control

16 ton single girder overhead crane, 2 sets, equipped with remote control for tandem control

Produciton of 16 ton overhead cranes for sale UAE

Box girder designed single girder overhead cranes for sale UAE

Box girder designed single girder overhead cranes for sale UAE

Main girders of top running single girder overhead cranes for 16 ton and 8 ton + 8 ton project

Main girders of top running single girder overhead cranes for 16 ton and 8 ton + 8 ton project

End carriages of 16 ton and 8 ton + 8 ton overhead bridge crane

End carriages of 16 ton and 8 ton + 8 ton overhead bridge crane

End carriages of 16 ton and 8 ton + 8 ton overhead bridge crane

End carriages of 16 ton and 8 ton + 8 ton overhead bridge crane

QDX 150 ton overhead crane in action in Paraguay. Installation photos, video, and client feedback show performance, safety, and heavy-lifting efficiency.


Free consultation to Confirm Parameters & Specifications and Get

Latest Crane Price & Crane Rate.

  • Types of overhead cranes : _______?
  • Optional: Overhead travelling crane, goliath gantry crane,Slewing jib crane, Single girder or double girder crane,small portable crane or kbk crane, etc.
  • Capacity of overhead crane: _______?
  • Optional: 0.25ton, 0.5 ton, 1 ton, 2 ton, 3ton, 5 ton, 10 ton,15ton, 20ton, 25 ton, 30ton,35ton, up to 550ton, etc.
  • Crane span & lifting height : _______?
  • Crane travelling length : _____?
  • Control of overhead crane:_______?
  • Optional: pendant/ remote/cabin control
  • Voltage supply of overhead crane:_____?
  • Eg,: 380V50/60HZ,3Phase or others,etc.
  • Application/usage of crane:_______?
  • Eg,: Steel mill, ,injection mold, cement,stone, concrete,granite, general manufacturing, etc.
  • Just leave a message via the contact form and our hoist and crane engineer will contact you with in 24working hours.

Get In Touch

Feel Free
to Contact With us