5-32 ton single girder hoist gantry crane for sale. Single girder gantry, box girder / truss girder design, equipped electric wire rope hoists,cost-effective hoist gantry crane.
| Crane Type | Single girder gantry crane with hoist trolley |
| Crane Capacity | 1 ton, 2 ton, 3 ton, 5 ton, 10 ton, 16 ton, 20 ton, 32 ton, 50 ton |
| Crane Span | 7m-30m |
| Lifting Height | 6 m, 9 m, 12 m, 30 m |
| Working Class | A3, A4 |
| Application | Material handling, lifting, positioning, assembly, maintenance, loading/unloading, |
| Certifications | CE / ISO / SGS / Other third-party inspection |
| Customization | Customized material handling cranes solutions available for indoor, outdoor, hazardous, corrosive, cleanroom, and heavy-duty industrial applications. |
Category: Gantry Crane
Tags: gantrycrane,singlegirdergantrycrane,electrichoistcrane
Your Trusted Overhead Travelling Crane Manufacturer & Supplier
The single girder electric hoist gantry crane is a small and middle duty gantry crane, equipped with CD1/MD1 type electric hoists, widely used in open space and warehouse for general material handling or grabbing, i.e, gantry crane equipped with grabs. Generally, Single girder electric hoist gantry crane is mainly consisted of overhead gantry frame, i.e. single beam main girder, either box type or truss type, supporting legs, bottom end beams, hoist lifting mechanism, travelling mechanism, and electrical control, and others, etc. The single girder gantry can be designed with two cantilever, one cantilever or no-cantilever based on lifting requirements and working conditions
Single girder Gantry Crane is a type of light small gantry crane with a single girder and rail travelling. The single girder hoist gantry crane is designed for generally material handling, with the lifting capacity around 1 to 50 tons, and working class A3, or A4. The specification of the single girder hoist gantry crane is as follow:
The MH series of single girder hoist gantry cranes with electric hoists are widely welcomed at home and abroad due to the advantages of simple structure, easy installation, easy operation, good performance, high efficiency, low and easy maintenance, long working life, and cost-affective crane price. If you need a good and economical gantry crane solution, please feel free to contact us by leaving a message below or send us an email.
The single girder hoist gantry crane with electric hoist is designed and manufactured in accordance with JB566.3.2-91 standard.The hoist gantry crane moves on and along crane rails mounted on the ground. Adopting several mechanisms and units, the single girder hoist gantry crane offers economical material handling crane solution efficiently and safely.
According to the structural features of the single girder hoist gantry cranes, they can be grouped in the following types of single girder hoist gantry cranes:
MHA single girder hoist gantry crane, box gantry girder design, A frame legs, under hung wire rope hoists, with lifting capacity of 3 ton 50 ton ,
MHH single girder hoist gantry crane, truss gantry girder design, A frame legs, under-hung wire rope hoists, with lifting capacity of 3 ton 32 ton ,
MHL single girder hoist gantry crane, box gantry girder design, L shape legs under-hung wire rope hoists, with lifting capacity of 5 ton 50 ton,etc.
The box type hoist gantry crane is a medium duty crane, travelling on gantry rail track , usually equipped with standard CD MD electric wire rope hoist as the overhead lifting mechanism, and the overhead electric hoist hung on the lower flange of the I- steel of the main gantry girder which is made of high quality steel plates, such as, C-steel and I-steel.
The box shaped gantry girder is welded with steel plates , with features of high safety and stiffness, used for gantry cranes with large and super large tonnages.The box gantry girder design also has the drawbacks of high production cost, heavy self weight and poor wind resistance.
Box girder single girder hoist gantry crane
Customized single girder gantry crane are available. Contact us to get free consultation on your gantry crane design and specific gantry crane price.
Single girder gantry crane with box girder design
5-32 ton single girder hoist gantry crane for sale. Single girder gantry, box girder / truss girder design, equipped electric wire rope hoists,cost-effective hoist gantry crane.
MH Single Girder Hoist Gantry Crane drawing
Single girder gantry cranes are vailable with process crane design. Contact us to get your customized process gantry hoist crane design drawing now.
The truss gantry girder is welded with angle steel or I-beam, featured as low manufacturing cost, light self-weight, and good wind resistance. However, due to the large amount of welding points and the inborn defects of the trusses structure, the truss gantry girder has the disadvantages of large deflection, low rigidity, low reliability, and frequent welding spots detection.
Truss single girder hoist gantry crane
Customized single girder gantry crane are available. Contact us to get free consultation on your gantry crane design and specific gantry crane price.
Truss Gantry Crane with Single Girder & Double Girder Crane Design
Truss crane for sale. 3 ton - 100 tons anti-windy gantry cranes, with single/ double truss gantry girder design, truss leg & complete truss gantry cranes for you!
Truss Type Single Girder Hoist Gantry Crane drawing
Truss Type single girder gantry cranes are vailable with process crane design. Contact us to get your customized process gantry hoist crane design drawing now.
A-frame cranes usually refers to A frame gantry cranes which is a special variation of regular gantry cranes, with A shape like side profile. With various crane specifications and crane configuration, our A frame gantry cranes can be used for light, medium and heavy duty material handling, which includes the following: 5 ton ~ 50 ton light duty & medium duty single girder A frame gantry crane, 5 ton ~320 ton heavy duty double girder A frame gantry cranes, 0.5 ton ~10 ton light duty Portable A frame gantry crane.More on A frame gantry crane.
A frame single girder hoist gantry crane
Customized single girder gantry crane are available. Contact us to get free consultation on your gantry crane design and specific gantry crane price.
A frame crane: Fixed A frame gantry & Mobile A frame crane
A frame crane design & manufacture:5 - 50 ton single girder & 5 - 320 ton double girder Fixed A frame gantry cranes & 0.5-10 ton Portable A frame crane for reliable material handling.
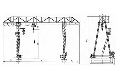
A Frame Hoist Gantry Crane Drawing
A Frame Hoist Gantry CraneS are vailable with process crane design. Contact us to get your customized process gantry hoist crane design drawing now.
L type gantry crane is a single girder hoist gantry crane, adopting L shaped supporting leg, offering wider clearance for long objects handling such as steel tube,concrete plate in the open freight storage and along the railway , etc. Compared to the double girder gantry crane, L type single girder hoist gantry crane is able to load and unload objects with capacity of 5 ton to 32 ton, featured as wider space for long objects, lower crane height when the lifting height is fixed, lighter self-weight and lower crane cost, etc. More on L type gantry crane.
L leg single girder hoist gantry crane
Customized single girder gantry crane are available. Contact us to get free consultation on your gantry crane design and specific gantry crane price.
L leg hoist trolley gantry crane, Gantry electric hoist crane
Single girder gantry crane with L shape gantry legs, electric hoist or hoist trolley, with hook/ electromagnet /grab for long objects and various material handling.
L leg hoist trolley gantry crane drawing
L leg hoist trolley gantry cranes are vailable with process crane design. Contact us to get your customized process gantry hoist crane design drawing now.
With FEM monorail hoist or European single girder hoists, the lifting capacity of European standard hoist gantry cranes can reach up to 20 ton , and lifting height and span can be processed based on your particular and actual lifting conditions and requirements.
European standard single girder hoist gantry crane
The single girder hoist gantry crane is more economical, much easier for installation and commissioning, and gantry crane cost for maintenance is extremely low. More on monorail hoist gantry crane specifications and gantry crane price, please contact us.
European style single girder gantry, economical hoist cranes solution
Single beam gantry cranes, European style box girder, FEM hoists for 3 ton, 5 ton, 10 ton, & 16 ton load handling. Good price European gantry cranes for sale.
European style single girder gantry drawing
European style single girder gantry cranes are vailable with process crane design. Contact us to get your customized process gantry hoist crane design drawing now.
As a general overhead travelling crane, the single girder hoist gantry crane is designed for light and moderate duty material handling , which is frequently used at open ground, ports, granite pit, cement pipe yard, open yard, container depots and shipyards, and indoor applications such as any workshop where overhead crane solution is needed but a bridge crane is not practical or a lifting crane is needed to work together with the existing overhead bridge crane, etc.
However,the single girder hoist crane is forbidden to handle melt metal, inflammable, or explosive loads and is not supposed to be used when the heavy duty crane with large tonnages is required.
Single girder hoist gantry crane with truss gantry girder design
Single girder gantry crane with truss gantry design
Box girder single girder hoist gantry crane
Box girder with truss leg gantry hoist crane design
Box girder gantry hoist crane with no cantilever design
Single girder gantry crane with wire rope hoists for stone block handling
As a reputable and experienced gantry crane manufacturer and supplier, we has produced many overhead travelling crane solutions for various industries and sectors. We are dedicated to working out the right overhead travelling crane solutions for your applications with superior quality and reasonable crane cost and to create the maximum value for your business.Crane Parameters and specifications are need for specific quotation.

Any of single girder hoist gantry crane inquiry will be replied with 24 working hours. Please leave us the main information of the electric hoist gantry crane needed and the gantry crane quotation will be given as quick and specific as possible. Please do not hesitate to leave a message.
Latest project
QDX 150 ton overhead crane in action in Paraguay. Installation photos, video, and client feedback show performance, safety, and heavy-lifting efficiency.
Free consultation to Confirm Parameters & Specifications and Get
Latest Crane Price & Crane Rate.
Just leave a message via the contact form and our hoist and crane engineer will contact you with in 24working hours.
Get In Touch