Awesome Image

5 Ton -50 Ton Insulation Overhead Crane for Smelting Workshops

5 ton, 10 ton,16 ton, 32 ton, 50 ton insulation double girder overhead crane for smelting workshops of electrolytic aluminum, magnesium, lead & zinc,etc.

Category: Double Girder Overhead Crane

menu_open Content Quick Link

Your Trusted Double Girder Overhead Crane Manufacturer & Supplier

5 Ton -50 Ton Insulation Overhead Crane for Smelting Workshops

5 ton -10 ton,16 ton-32 ton, 32 ton -50 ton insulation type of double girder overhead cranes are designed for smelting workshops of electrolytic aluminum, magnesium, lead & zinc,etc., to secure crane during operation in the charged application. Isolation crane or insulated crane is with working class A6 and 1 year assurance and 20 + years' service life.

Insulation Double Girder Overhead Crane

QY type isolation or insulation designed double girder overhead crane is basically with same structure as QD type of double girder bridge crane with a hook. To avoid the charged equipment which may conduct electricity to the overhead crane by hoisted articles from endangering the driver's life, insulation equipment & devices are applied on the hook group, crab frame, crab wheel (or under the crab rails). The insulation material such as epoxy phenol aldehyde glass cloth laminated board are usually adopted. The insulation crane or isolation crane with double girder overhead crane design are widely used to aluminum and magnesium smelting factories.

Insulation overhead crane with double girder overhead crane

Insulation overhead crane with double girder overhead crane design

Isolation overhead crane with double girder overhead crane

Isolation overhead crane with double girder overhead crane design

Main Specifications of Insulation Double Girder Overhead Crane

Isolation crane and insulation crane is a double girder overhead crane with the insulation measures in every necessary parts of overhead crane to ensure it from electricity shock to ensure safety. The insulation type double girder overhead crane is the customized material handling crane to lift and transport loads in charged environment, such as the plants where electrolyse non-ferrous metals, such as magnesium, aluminum.

Isolation crane is a heavy duty double girder overhead with double brake in the hoisting for the sake of safety. The lifting capacity of the insulation double girder overhead crane is 5 to 50 tons and the working class is A6. The specific parameters of the double girder overhead crane is as follow:

  • Product type of insulation overhead crane: QY Double girder overhead crane with insulation safety devices
  • Lifting capacity of insulation overhead crane: 5~50t
  • Span length of insulation overhead crane: 10.5~31.5m
  • Working class of insulation overhead crane: A6
  • Ambient temperature of insulation overhead crane: -25~50℃

Insulation Bridge Crane -Main Specifictions for Your Reference, Customized Designs are Provided

Lifting Weight (t)

5 10

16

20

32
50

Span (m)

10.5~31.5

Max Lifting Height

(m)

Main
20
20

16

12

16 12
Aux. 22 22

18

14

18 16


Speed (m/min)

Crab travelling

37.2 43.8

44.6

44.6

42.4 38.5

Trolley travelling

90.7-117 90.7-113

84.7-101.4

84.7-101.4

87.6-101.8 74.6-87.3

Max. wheel pressure (KN)

124 158

232

265

333 455

Power source

3-Phase A.C 50Hz 380v

Components of Insulation Double Girder Overhead Crane

The insulated feeding crane is composed of a bridge frame, crane driver operating mechanism, crane trolley, aluminum tapping trolley, feeding trolley, electrical control system, air compressor, and gas circuit control system, hydraulic station and oil circuit control system, etc.

Insulation overhead crane with double girder overhead crane

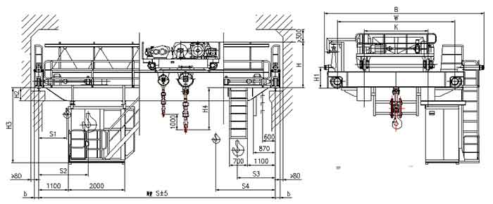
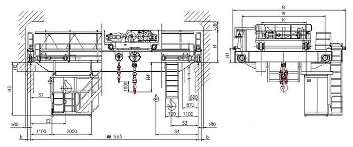
5 ton -10 ton isolation overhead crane double girder drawing

10 ton-20 ton insulation overhead crane with double girder overhead crane design

10 ton -20 ton insulation overhead crane with double girder overhead crane design

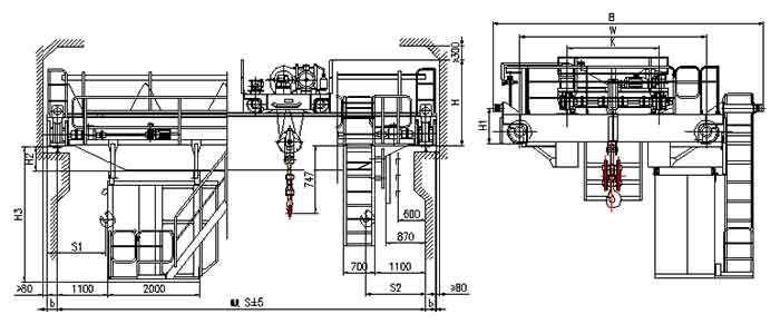
32 ton-50 ton insulation crane with double girder overhead crane design

32 ton-50 ton insulation crane with double girder overhead crane design

Features of Isolation Overhead Crane Main Components

Isolation overhead cranes are designed with advanced insulation, robust structure, and safety features to ensure reliable operation and operator protection in high-risk environments.

Insulation Measures of Isolation Overhead Cranes

To protect the crane and operator from electric shock, isolation cranes are equipped with three insulation devices placed strategically:

  • Between the hook and pulley
  • Between the lifting mechanism and trolley frame
  • Between the trolley frame and crane

Bridge Frame of Isolation Overhead Crane

The bridge frame serves as the main structural component, composed of double beams, tracks, end carriages, walkways, railings, ladders, and other metal structures to ensure strength and stability.

  • Main beam girders and end carriages are box-shaped, made from Q235 or Q345 steel with minimum thickness of 6 mm
  • Main beam camber is (1 ~ 1.4) S / 1000, with maximum camber controlled within a tenth of the central span

Insulating devices between trolley tracks and wheels ensure proper electrical isolation. Trolley tracks on top of the bridge provide smooth movement of the crane trolley while maintaining insulation features.

Driver's Cabin

  • Closed cabin with tempered glass, providing operator workspace with safety and comfort
  • Excellent 270° front viewing angle for clear visibility
  • Robust and reliable quality, easy cleaning and maintenance
  • High safety standards: alarms, unobstructed walking space, and operational comfort

Crane Traveling Mechanism

The traveling mechanism ensures smooth and reliable crane movement. Equipped with necessary safety devices, it prevents slips and ensures steady braking for operator and load safety.

Trolley Parts

Isolation overhead cranes have separate drive systems for the main and auxiliary hoisting mechanisms, allowing independent lifting and coordinated operations. The hoisting mechanisms use dual brakes for extra safety.

Safety Protection Devices

  • Main crane hook equipped with an overload limiter, providing weight display, overload alert, and automatic power-off functionality
  • Each mechanism has a closed electro-hydraulic brake; primary hoisting mechanism has dual brakes
  • Lifting limit switch, over-current protection, no-voltage protection, phase protection, zero protection, emergency switch, main isolating switch, hatch door interlock, and bells for operational safety
  • Optional shock-proof bulbs can be installed beneath the bridge structure depending on operational needs

Application of Insulation Overhead Crane

The insulation overhead crane is suitable for non-ferrous metal electrolytic aluminum, magnesium, lead, zinc and other smelting workshops.

The insulation overhead crane is widely used in the environment of high-temperature molten salt, high current, strong magnetic field, dust and hydrogen fluoride atmosphere in the electrolysis workshops.

If you need a customized insulation overhead crane, please feel free to contact us. A insulation double girder overhead crane will be designed based on your specific application.

FAQ – Insulation / Isolation Double Girder Overhead Cranes

Answering common concerns of buyers about safety, lifting capacity, maintenance, and customization of isolation cranes.

1. How do I know if this type of crane is safe for handling charged materials?

Isolation cranes are built with multiple protective layers that prevent electrical conduction from the load to the crane. Devices are installed between the hook, trolley, and bridge to isolate any current. These cranes meet A6 working class standards, feature dual brakes, and have emergency shutdown systems for operator safety in high-current and high-temperature environments.

2. Can these cranes handle different types of metals like aluminum or magnesium?

Yes. These cranes are specifically engineered for non-ferrous metals such as aluminum, magnesium, lead, and zinc. The insulation design ensures safe operation even in molten salt or strong magnetic fields, protecting the operator while allowing smooth lifting and transport of materials.

3. What lifting capacities and span lengths are available?

Clients can choose from lifting capacities of 5 t, 16 t, 32 t, or even 50 t, with spans up to 31.5 m. Our cranes support independent operation of main and auxiliary hoists, allowing flexibility to match your workshop size and lifting height requirements.

4. How does maintenance work for these specialized cranes?

Insulated cranes use durable materials like Q235/Q345 steel and laminated epoxy insulation boards that are easy to inspect. Overload limiters, electro-hydraulic brakes, and phase protection systems reduce wear. The driver's cabin and insulation components are simple to clean and maintain, minimizing downtime.

5. Can the crane adapt to high-risk environments?

Yes. These cranes are reinforced to withstand strong magnetic fields, dust, hydrogen fluoride, or molten salt. Safety interlocks and optional shock-proof bulbs ensure stable operation in challenging environments.

6. How customizable is the crane for my specific workshop layout?

Every crane can be tailored for span, lifting height, hook type, trolley speed, and insulation requirements. We work directly with buyers to ensure compatibility with existing rails, aisle widths, and lifting points, optimizing both safety and workflow.

7. What makes this crane a long-term investment?

These cranes are rated for over 20 years of service life using high-quality steel, epoxy insulation, and dual-brake systems. This ensures minimal downtime and maximizes operator safety, making it a reliable long-term solution.

8. How does the crane perform during intensive operations?

With robust hoisting mechanisms, stable traveling speeds, and independent main and auxiliary hoists, these cranes handle continuous operation in smelting workshops while maintaining precise and safe load handling.

9. How easy is it for operators to control and monitor the crane?

The driver's cabin offers a 270° view, ergonomic layout, and clear access to all controls. Alarms, limit switches, and interlocks allow real-time monitoring, reducing operator errors in high-risk operations.

10. What support is offered after purchase?

We provide a 1-year assurance and guidance for inspection, maintenance, and upgrades. Modular components make replacement easy, giving confidence for long-term crane operation.

QDX 150 ton overhead crane in action in Paraguay. Installation photos, video, and client feedback show performance, safety, and heavy-lifting efficiency.


Free consultation to Confirm Parameters & Specifications and Get

Latest Crane Price & Crane Rate.

  • Types of overhead cranes : _______?
  • Optional: Overhead travelling crane, goliath gantry crane,Slewing jib crane, Single girder or double girder crane,small portable crane or kbk crane, etc.
  • Capacity of overhead crane: _______?
  • Optional: 0.25ton, 0.5 ton, 1 ton, 2 ton, 3ton, 5 ton, 10 ton,15ton, 20ton, 25 ton, 30ton,35ton, up to 550ton, etc.
  • Crane span & lifting height : _______?
  • Crane travelling length : _____?
  • Control of overhead crane:_______?
  • Optional: pendant/ remote/cabin control
  • Voltage supply of overhead crane:_____?
  • Eg,: 380V50/60HZ,3Phase or others,etc.
  • Application/usage of crane:_______?
  • Eg,: Steel mill, ,injection mold, cement,stone, concrete,granite, general manufacturing, etc.
  • Just leave a message via the contact form and our hoist and crane engineer will contact you with in 24working hours.

Get In Touch

Feel Free
to Contact With us