3 Ton + 3 Ton Double Girder Overhead Crane for Timber Factory
Double girder overhead crane with two sets of 3 ton hoist trolleys, installed successfully in timber processing factory Maldives. Check double girder eot crane Maldives project and crane video now.
Basics of Overhead Cranes for Sale Maldives
- Crane Type: 3 Ton + 3 Ton Double Girder Overhead Crane
- Date of Placing Oder: 2020.03.16
- Date of Delivery : 2020.4.15
- Way of Transportation: By Sea,20GP & 40 GP containers
- Way of Payment: TT
- Destination country: Maldives
- Destination port:CNF, Male
- First Contact: 2020.1.3
- Application : Wood Industry
General configurations of 3 ton + 3 ton double girder overheadcrane for Maldives
Crane type | Double Girder Overhead Crane |
Model | LH |
Working Class | A3 |
Capacity | 3 ton + 3 ton |
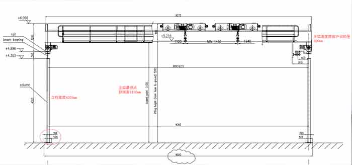
Span length (m) | 9.093 |
Lifting Height(M) | 5.2 m |
Crane control | Pendent control |
Voltage | 400v,50hz,3p |
Color | Gray |
Application | Indoor use |
Crane rail | P22 |
Quantity | 1 |
![3 ton + 3 ton double girder overhead crane steel structrue for wood processing factory for client in Maldives 3 ton + 3 ton double girder overhead crane steel structrue for wood processing factory for client in Maldives]()
3 ton + 3 ton double girder overhead crane steel structrue for wood processing factory for client in Maldives
![Spaceing of steel columns of Maldives double girder overhead crane project Spaceing of steel columns of Maldives double girder overhead crane project]()
Spaceing of steel columns of Maldives double girder overhead crane project
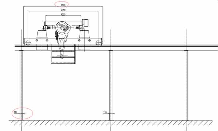
![Low headroom electric wire rope hoist trolley design drawing for Maldives client Low headroom electric wire rope hoist trolley design drawing for Maldives client]()
Low headroom electric wire rope hoist trolley design drawing for Maldives client
![Double girder overhead crane with 2 sets of 3 ton electric wire rope hoist for timber factory in Maldives Double girder overhead crane with 2 sets of 3 ton electric wire rope hoist for timber factory in Maldives]()
Double girder overhead crane with 2 sets of 3 ton electric wire rope hoist for timber factory in Maldives
![Anchor bolts for the column foundation , 82 pieces Anchor bolts for the column foundation , 82 pieces]()
Anchor bolts for the column foundation , 82 pieces
Custom features of 3 Ton + 3 Ton Double Grider Overhead Crane for Maldives
- The local island has high air salinity, and the surface is required to be coated with anti-corrosion paint; the paint color should not be light colors such as yellow, preferably gray, and the electric hoist is is acceptable to be green.
- The overhead crane is installed in an existing factory building, with limited space. The double girder overhead crane is non-standard size design and the production should be according to drawings strictly.
- The selection of rail-bearing beams and columns are confirmed with client and the layout and crane column are based on customer requirements. Pay attention to the direction of the column for the reserved position of the bolts;
- The lifting height of the column is 4303mm, and the actual production is made into 4608mm, because the 305mm of which will be buried underground.
- The foundation drawing of the pillar jib crane is required.
- Crane Track - P22, 48m long, with clamp plates and , pressure plate
- Sliding line - seamless sliding line, 8 square centimeter2, 24 meters long , including current collectors and supporting parts. Runway bearing Beam - H500*270*6*12mm, 72kg/m, 48m
- Column - HW300*300*10*15, about 120kg/ piece, 10 pieces
Customs declaration information registration
- The actual Chinese name of the goods: 桥式起重机
- English name of cargo declaration: Overhead crane
- Inland transportation fee: 588USD
- Port charges : 1000USD
- Sea freight: 4200USD
Productions & delivery of 3 ton + 3 ton overhead cranes for Maldives
![Main girder of double girder overhead crane under construction for Maldives timmer factory Main girder of double girder overhead crane under construction for Maldives timmer factory]()
Main girder of double girder overhead crane under construction for Maldives timmer factory
![Overhead crane runway supporting beam Overhead crane runway supporting beam]()
Overhead crane runway supporting beam
![3 ton + 3 ton electric wire rope hoist trolley for the double beam overhead cranes 3 ton + 3 ton electric wire rope hoist trolley for the double beam overhead cranes]()
3 ton + 3 ton electric wire rope hoist trolley for the double beam overhead cranes
![Double girder overhead travelling crane for delivery to Maldives Double girder overhead travelling crane for delivery to Maldives]()
Double girder overhead travelling crane for delivery to Maldives
Article by Bella ,who has been in the hoist and crane field since 2016. Bella provides overhead crane & gantry crane consultation services for clients who need a customized overhead travelling crane solution.Contact her to get free consultation.