Hydropwer station crane for sale. Spillway gate gantry crane & Turbine Hall Bridge Crane,overhead maintenance crane for hydropwer station & power plant. Custom for you.
Hydroelectricity is generated by dams by impounding a reservoir of water and then releasing it through one or more water turbines. The energy generated by the difference in water levels upstream and downstream is used to power the turbines' linked generators, which in turn produce electricity.
We provide hydro power station cranes for workshop and maintenance use with lifting capacities ranging from 1 to 80 tons to 560 tons.
hydropower station crane - gantry crane series
hydropower station crane - overhead crane series
A hydropower gantry crane positioned on the hydropower station's crest is employed in a variety of large-scale water supply and drainage, water conservation, and hydropower engineering applications. They are mostly used to lift the hydropower station gate for purposes of opening and closing it, maintaining and repairing machinery, cleaning rivers, etc.

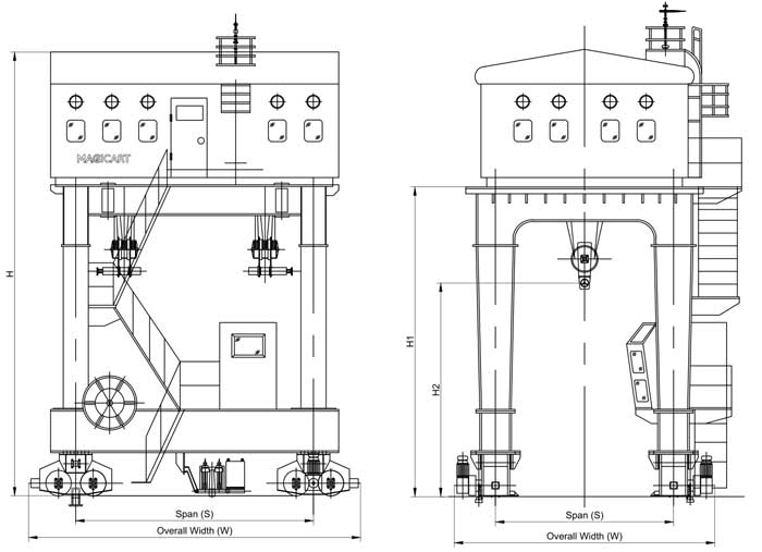
hydropower station gantry crane drawing
Load Capacity (ton) | Span /Rail Gauge (m) | Max. Lifting height (m) | Class |
50 | 8.5~25 | 3~75 | A1, A2, A3 |
80 | 8.5~25 | 3~75 | A1, A2, A3 |
100 | 8.5~25 | 3~75 | A1, A2, A3 |
150 | 8.5~25 | 3~75 | A1, A2, A3 |
200 | 8.5~25 | 3~75 | A1, A2, A3 |
275 | 8.5~25 | 3~75 | A1, A2, A3 |
300 | 8.5~25 | 3~75 | A1, A2, A3 |
350 | 8.5~25 | 3~75 | A1, A2, A3 |
400 | 8.5~25 | 3~75 | A1, A2, A3 |
450 | 8.5~25 | 3~75 | A1, A2, A3 |
500 | 8.5~25 | 3~75 | A1, A2, A3 |
560 | 8.5~25 | 3~75 | A1, A2, A3 |
Customizable | Customizable | Customizable | Customizable |
The Hydropower Gantry Crane is made up of a primary trolley, a slewing hoist, a gantry crane operating mechanism, an unique spreader, and other safety features. It utilizes an A-frame for stability and support as it stands on the ground and bases' rail tracks. There are also a few safety devices, such as crane rail clamps, overload stoppers, and motor protection devices.
Hydropower Station Gantry Crane lifting hoisting mechanism is not only used for hanging weights, but aslo moving or rotating around the gate pillar and down along the gate slot. An electrical control system must be used to maintain double hanging point synchronization, especially for large span gates. On the spiral parts, it has hoisting, slewing, luffing traveling mechanisms, combination beams, and control rooms.
Hydropower Gantry Crane with a large lifting capacity, normally lifting from 80 to 500 tons, but with a low operating level, a small span, usually between 8 and 16 meters, and a slow lifting and moving speed of typically no more than 4 meters per minute. It has a belt conveyor to increase the crane's capacity rate when picking up large goods. It requires two lifting points and to maintain synchronization for broad span gates;
hydropower station gantry crane
hydropower station goliath gantry crane
hydropower station goliath crane
The overhead bridge crane is built on the QD double beam bridge crane. It is commonly used in the maintenance of various industries due to its relatively slow working speed. It is more commonly found in hydroelectric plants and steam turbines. Each mechanism can be outfitted with a frequency conversion device, allowing for precise machining.
Bridge cranes for hydropower stations are primarily responsible for the installation, operation, maintenance, and overhaul of critical equipment such as rotors, stators, runners, and hydropower generator set hoisting tasks. The demand for bridge cranes for hydropower stations is increasing, as is the lifting capacity of cranes. Please conduct a thorough analysis and comparison of several commonly used typical structural forms, performance characteristics, safety, reliability, and economy of large-scale bridge cranes in hydropower stations before making a purchase.
Main parameters of hydropower station overhead crane
The bridge crane is generally responsible for the installation of important equipment, basic operation maintenance, and routine maintenance in the main workshop of a hydropower station.
The Hydropower Hoist is used in a variety of large water supply and drainage projects, as well as water conservation and hydropower projects. The bridge crane is used to control the lifting of various large and medium-sized cast iron gates and steel gates in order to open and close them.
overhead crane for hydropower station plant
Bridge crane for hydropower station
Electric overhead crane for power plant
• Support customization \s• Made of high-quality steel, reliable quality \s• Low power consumption and operating cost
We have supplied customized overhead crane and gantry crane for China hydropower station with the most outstanding performance as one of the top suppliers of large bridge cranes and portal cranes. We offer full crane services for large bridge cranes, portal cranes, and other types of cranes for power plants, including design, manufacturing, delivery, installation, licensing, and commissioning. Please contact us if you require a powerstation crane.