Overhead Crane 10 Ton Installation in Steel Coils Plant Bangladesh

Overhead Crane 10 Ton Installation in Steel Coils Plant Bangladesh

10 ton overhead crane for steel coil handling for sale Bangladesh. Check overhead crane testing video to get customized c hook coil handling overhead crane.

Crane type Heavy duty open winch overhead crane with C hook
Crane capacity 10 ton
Project location Bangladesh
ApplicationMaterial handling, lifting, positioning, assembly, maintenance, loading/unloading,
CertificationsCE / ISO / SGS / Other third-party inspection
CustomizationCustomized material handling cranes solutions available for indoor, outdoor, hazardous, corrosive, cleanroom, and heavy-duty industrial applications.

Category: Installation Feedback Gallery

Tags: overheadcraneforsale,10ton,bangladesh

Content Quick Link

Your Trusted Overhead Cranee Manufacturer & Supplier

Overhead Crane 10 Ton Installation in Steel Coil Plant Bangladesh
Open Winch Trolley, Double Girder, Top Running Overhead Crane

10 ton overhead crane for steel coil handling for sale Bangladesh. Check overhead crane testing video to get customized c hook coil handling overhead crane.

Double girder overhead travelling crane for sale Bangladesh steel coil handling, good price. There are many different types of double girder cranes that can be purchased at affordable prices, such as overhead bridge cranes, gantry cranes, workshop cranes, etc. The customized double girder overhead crane 10 ton with tailored specifications is designed for your specific steel coil handling.

Background of Bangladesh Coil Plant

The double beam overhead travelling crane is required by a Bangladesh Coil plant for material handling. The Bangladesh steel coil plant was established in 2000 and immediately began producing and distributing steel coil on a global scale. At Kumira, 25 KM from Chittagong, the steel coil plant has built a state-of-the-art cold rolling mill complex. Pickling line, 6 Hi CVC cold rolling mill, slitting and rewinding line, with an annual capacity of 250000MT, are all located in the complex, which was built on a 10 acre site. The primary steel products include GC, GPFH (Galvanized Plain Full Hard), CRFH (Cold Rolled Full Hard), and CRCA (Cold Rolled Closed Annealed) (Galvanized Corrugated), etc.

Coil handling Requirements of Bangladesh steel plant

The Bangladesh coil plant requires a pair of double-girder overhead eot cranes to lift standard-sized steel coils. And the general use hook overhead crane is not the optimal solution but the one equipped with a special designed steel coil handling spreader, the c hook. The majority of steel coils are finished steel coil goods, packed in delicate packages that must be handled with care to prevent damage. Furthermore, the Bangladesh client requires the overhead travelling crane to work nearly 24 hours a day. Finally, and most importantly, the overhead crane price must be cost-effective, but the quality should durable.

Double Girder Crane Solution

The 10 ton overhead travelling cranes for the Bangladesh steel coil plant are designed based on the lifting requirements of the Bangladesh client and factory conditions.

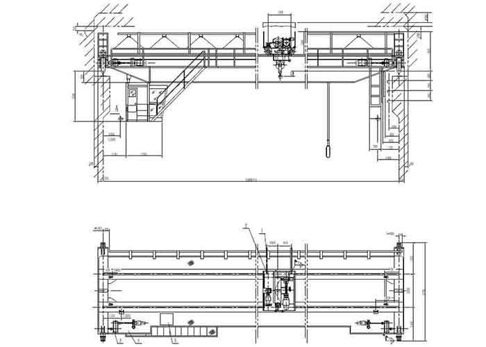
The following are the drawings of a QD type double girder overhead travelling crane with a lifting capacity of 10 tons, a crane span of 15.89 meters, and a working duty of A5

10 ton double girder overhead travelling crane for steel coil plant in Bangladesh

Double girder overhead travelling crane drawings for the steel coil plant material handling

The following are the benefits of a 10 ton steel industrial overhead crane:

  • Schneider electrical is used in the electric open winch hoisting crane which is more suitable and cost-effective.
  • Equipped with a frequency converter, the operation speed of the overhead crane is adjustable to make the overhead traveling crane travel more smoothly and steadily and steel coil handling with high precision.
  • This steel coil handling crane solution design completely meets the client's needs and improves their working efficiency.
  • Less crane maintenance saves time, energy, and money.

Crane Installation & Testing of Double Girder Overhead Crane

Features of Double Girder  Overhead Crane

The features of the Bangladesh double girder overhead travelling crane are as the following:

Work duty of double girder overhead travelling crane

The double girder overhead travelling crane will be operational 24 hours a day, seven days a week. The working time of an overhead travelling crane is very long, and one working cycle takes about 3 minutes, but with a low working frequency. That is, the break time between working cycles is long. A5 is sufficient and safe for the double girder crane operation condition, according to the calculations.

Crane speed of double girder overhead travelling crane

The top running overhead travelling crane uses a Schneider frequency converter to adjust the speed of the lifting electric hoist and overhead travelling crane, which perfectly addresses the issue of lifting the steel coils with adequate softness and tenderness.

High-performance, low-cost double-girder overhead crane

The steel coil handling overhead crane would like to reduce costs as much as possible while maintaining the quality and safety of the double girder eot crane. The best way to satisfy customers is to offer them a high-quality double girder crane at the lowest possible crane price.

Get your double girder  open winch  crane

We gained trust and friendship by providing the best solution for the client. Steel coil handling overhead cranes can be customized for your particular industrial setup to meet your lifting requirments.
First and foremost, the design of double girder overhead travelling cranes for the Bangladesh client meets all of their specifications.
Second, the client orders spare parts for two years in a row.

·Last and most importantly, full set services and one source crane services win client's trust and order and after first time cooperation, they like to build long term cooperation with each other. In addition, become a high-quality customer and start a business in Bangladesh.

150 Ton Overhead Crane Installation Feedback – Paraguay Case

QDX 150 ton overhead crane in action in Paraguay. Installation photos, video, and client feedback show performance, safety, and heavy-lifting efficiency.


Free consultation to Confirm Parameters & Specifications and Get

Latest Crane Price & Crane Rate.

  • Types of overhead cranes : _______?
  • Optional: Overhead travelling crane, goliath gantry crane,Slewing jib crane, Single girder or double girder crane,small portable crane or kbk crane, etc.
  • Capacity of overhead crane: _______?
  • Optional: 0.25ton, 0.5 ton, 1 ton, 2 ton, 3ton, 5 ton, 10 ton,15ton, 20ton, 25 ton, 30ton,35ton, up to 550ton, etc.
  • Crane span & lifting height : _______?
  • Crane travelling length : _____?
  • Control of overhead crane:_______?
  • Optional: pendant/ remote/cabin control
  • Voltage supply of overhead crane:_____?
  • Eg,: 380V50/60HZ,3Phase or others,etc.
  • Application/usage of crane:_______?
  • Eg,: Steel mill, ,injection mold, cement,stone, concrete,granite, general manufacturing, etc.
  • Just leave a message via the contact form and our hoist and crane engineer will contact you with in 24working hours.

Get In Touch

Feel Free
to Contact With us