40 ton double girder gantry crane for maintenance works in Geothermal project in Nakuru, Kenya. Check customized goliath crane 40 ton for sale now.
| Crane type | European style double girder gantry crane |
| Crane specifications | 40 ton -8 m span - 8 m lifting height |
| Power supply | 380V50HZ3P |
| Applications | The goliath crane is used for maintenance works . |
| Project locations | Kenya |
Category: Euro Hoist Crane
Your Trusted Overhead Travelling Crane Manufacturer & Supplier
40 ton double girder gantry crane for maintenance works in Geothermal project in Nakuru, Kenya. Check customized goliath crane 40 ton for sale now.
The general use 40 ton box girder gantry crane is used for lifting goods and materials which weight are not exceed 40 tons, as its name implies.The 40 ton Gantry Cranes can be designed into various types, such as, Full and semi-crane, rubber tired Double Girder Gantry Crane and rail mounted Double Girder Gantry Crane etc. Click to learn more types of 40 ton goliath and gantry crane. If you need customized gantry crane, please feel free to contact us to get gantry crane design with your required specifications.
Specializing in Double Girder Gantry Cranes for so many years, our customized 40 ton electric hoist and crane has developed into a leading team in China, with integrating and opening enterprise culture, we embrace the customers from all over the world to cooperate with us.
European style double girder goliath crane with low headroom hoist trolley
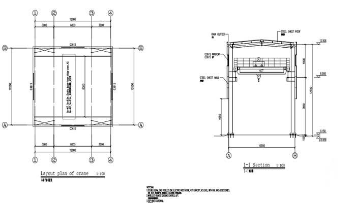
Main parameters of 40 ton double girder gantry crane
40 ton Double Girder Gantry Crane for sale good price. China Double Girder Gantry Cranes with various designs to meet all your needs. 40 ton Double Girder Gantry Crane is for sale with flexible operation, high safety and reliable factors, etc. Contact us for more informaton on the 40 ton Chinese Double Girder Gantry Crane now.
Double Girder Gantry Crane 40 Ton for sale Kenya for Maintenance
In this case study, we will show how we installed a 40-ton Double Girder Gantry Crane for a Geothermal project in Nakuru, Kenya. We will offer information on the inquiry, recommendations, transportation and installation issues, contract preparation and comments, and so on.
The company's headquarters are in Zhejiang, and they have a branch in Kenya that offers sales and services throughout the region. Gibson, a contact person from K*****n Group working on a Geothermal project in Nakuru, made the enquiry on July 13, 2022. They needed a 40-Ton Double Girder Gantry Crane for maintenance work, and they had particular queries about the purchase price, transportation cost, and installation and testing cost. The Double Girder Gantry Crane has the dimensions MGO40T-8M and a height of 8m.
Main specification of the required Double Girder Gantry Cranes
Crane type: MGO, European type of double girder overhead crane with European hoist trolley
After reviewing the enquiry, we recommended the MGO40T-8M Double Girder Gantry Crane with an 8m height. We submitted a complete quotation that included the crane's purchase price, transportation costs to Menengai Crater in Nakuru County, and installation and testing costs. For reference, we considered their sketches and photographs.
Inquiry content of Kenya client
Contact person Gibson from K*****n Group undertaking a Geothermal project in Kenya, Nakuru.
Inquiry crane: a 40 -Ton Double Girder Gantry Crane for maintenance works.
Customer questions :
Do you do your sales in Kenya? lf so provide me with a quotation including:
1.Purchase price
2. Transportation cost to Menengai Crater, Nakuru County
3.installation and testing price.
Please find attached drawings and picture for reference.
Customer overhead gantry crane designing drawing for sale Kenya
Following an examination of the inquiry content, we suggested our MGO40T-8M Double Girder Gantry Crane with an 8m height to satisfy their project needs. Our quote included the cost of the crane, transportation to Menengai Crater in Nakuru County, as well as installation and testing. We gave a detailed proposal that addressed their specific requirements.
The installation of a crane of this size requires careful planning and execution.The team is committed to providing the best possible service to ensure that the project is completed on time and within budget.All transportation and installation issues are taken into account to ensure that the crane is installed safely and efficiently.
Yuantai Crane will solve any questions and worries of clients.A summary is made for your reference regarding the worries and questions concerned on the 40-ton crane projects. If you have any other questions or if you want to know more, please feel free to contact us.
In summary, the customer's concerns are:
As for the above questions, we provide our services and written in the contract to make the client well understand that Yuantai Crane can provide customized and one-stop services.
The 40 ton Double Girder Gantry Crane has been customized to fulfill the crane specifications in place. Aside from the double girder gantry, the following certifications will be provided: product quality certificate with factory inspection sheet, quality management system certificate (ISO).
Furthermore, the 40 ton Double Girder Gantry Crane must apply for IDF. The Kenyan government requires IDF for all imports into the nation. It is used to verify the origin and value of imported items.
In addition, a PVOC certificate is offered. PVOC is an abbreviation for Pre-Export Verification of Conformity. It is a conformity assessment program that guarantees imported products fulfill Kenya's technical regulations and requirements.
Concerns about transportation and delivery, installation, response time for after-sales maintenance, and parts supply can all be addressed by our after-sales services, which can be explained based on the conversation in the signed contract.
Sign the contract.
Welcome to our company for a factory tour and technical discussions prior to contract signing.
Manufacturing
After we receive the deposit payment, we will schedule production. We will make the appropriate blue planning for your confirmation based on your required specifications, power supply, and frequency.
During production, we will provide you updates every 2-3 weeks and take images on-site to show you the state of the project.
On-site production supervision is available upon request.
Incoming materials inspection, ultrasonic inspection for welds (on request), assembly inspection, and final inspection before delivery all follow strict quality control processes.
Cargo acceptance
When the gantry cranes are finished, we invite you to come inspect them before they are delivered. Third-party testing is also permissible.
Package
The offer includes a seaworthy package.
Delivery
We have two alternatives for installing a 40 ton Double Girder Gantry Crane: 1)On-site installation, in which our designated installation will fly to Kendya and install the crane for the customer; and 2)On-line installation construction, which includes video demonstration, video on line construction, and other ways.
For crane installation services, please visit our crane installation web page or send us a note below, and we will respond within 24 working hours.
After-sales ServiceThey were debating internally; the response was still being reviewed in mid-September; finally, on a Saturday morning in mid-October,we received a call saying that we had won the bid and that they needed us to prepare the contract. We collaborated closely with Gibson and the K*****n Group to meet all of their criteria. They provided us with favorable feedback on our services.
They were discussing internally; the response was still being reviewed in mid-September; until one Saturday morning in mid-October, when they received a call saying that we had won the bid and asked us to prepare the contract; so we did, and the other party provided the following feedback.
Main girders of double girder goliath crane 40 ton for sale Kenya economical overhead solution with European style design
End carriages or ground end carriages of 40 ton double girder rail travelling gantry crane for sale Kenya for Maintenance
Supporting legs of freestanding gantry cranes
Supporting legs of full gantry cranes for sale
40 ton double girder wire rope hoist trolley
European style crane hoists 40 ton
Electrics of double beam gantry crane for sale Kenya
Variable speed control of European style gantry crane for high effiiciency operation of maintenance
Here are some steps to follow when selecting a double girder gantry crane for your application:
By following these steps, you can select a double girder gantry crane that is designed to meet the specific needs of your application. Click to learn more on how to select a double girder gantry crane, or contact us by leaving a message down below.
Latest project
QDX 150 ton overhead crane in action in Paraguay. Installation photos, video, and client feedback show performance, safety, and heavy-lifting efficiency.
Free consultation to Confirm Parameters & Specifications and Get
Latest Crane Price & Crane Rate.
Just leave a message via the contact form and our hoist and crane engineer will contact you with in 24working hours.
Get In Touch

40 ton goliath gantry crane size requirement