Underslung Bridge Crane 5 Ton for Limited Space & Low Headroom Use

Underslung Bridge Crane 5 Ton for Limited Space & Low Headroom Use

Single girder underslung bridge crane 5 ton for low headroom workshop or limited space facility. 5 ton underslung bridge crane for concrete plant. Check now.

ApplicationMaterial handling, lifting, positioning, assembly, maintenance, loading/unloading,
CertificationsCE / ISO / SGS / Other third-party inspection
CustomizationCustomized material handling cranes solutions available for indoor, outdoor, hazardous, corrosive, cleanroom, and heavy-duty industrial applications.

Category: Low Built Cranes & Hoists

Tags: lowheadroomcrane,Underhungcrane,5tonoverheadcrane

Content Quick Link

Your Trusted Overhead Crane Manufacturer & Supplier

Under Running Bridge Crane 5 Ton
Economical Underhung Crarne for Limited Space & Low Headroom Use

Installing a bridge crane can be difficult if your building lacks overhead space or has several overhead barriers or difficulties needs be solved.  However, there are cost-effective alternatives for applications requiring overhead material handling hoist and crane in a building with restricted headroom.

Under-running bridge cranes are appropriate for applications requiring overhead hoist and crane in a plant with limited production space or low headroom. Under slung bridge cranes are supposed to be versatile and functional. While top-running cranes are built to lift heavy loads, under-running cranes are built with an ergonomic design that provides versatility and usability. Because under-running bridge cranes travel beneath the runway, you can increase the distance between the ground and the hook.

Under-running cranes use end trucks that move on the crane runway's bottom flange and can be suspended directly from the overhead building structure without the use of interfering support columns. A long under-running system may readily function using many runways—even in very large bays—than a top-running system. This reduces the depth of the bridge girder while also reducing the weight of the operational equipment, resulting in lower equipment costs and lighter design requirements for the building or support structure.

If your application requires the use of an overhead bridge crane system but you're concerned about insufficient headroom, too much weight on your support structure, or maximizing lift distance, an under-running, enclosed track workstation bridge crane may be the ideal option. Let's take a look at some of the benefits of a high-performance workstation bridge crane, as well as some potential drawbacks—depending on your application.

Underslung bridge crane of 5 tons for concrete batching plant in Canada

With the development of fundamental constructionin recent years, the usage of concrete batching plants has grown in popularity. One of Langley City's concrete batching factories is looking for a more effective material handling crane solution for their production lines. Every day, the company produces thousands of cubic meters of concrete to suit the region's demand for construction projects.

To ensure the efficiency of concrete production and improve productivity, they ordered a 5 ton underhslung bridge crane with a European electric hoist.

5 ton underslung bridge crane with single girder design

5 ton underslung bridge crane with single girder design 

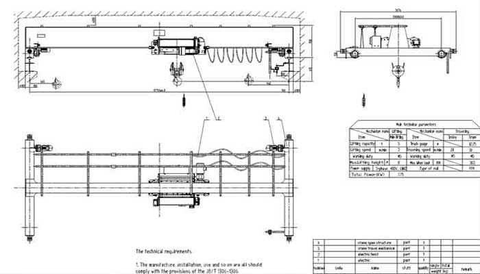
5 ton single girder under hung bridge crane drawing

5 ton single girder under hung bridge crane drawing 

Overview of 5 ton underslung bridge cranes

  • Date: February 25, 2023.
  • Applications: 5 Ton Underslung Bridge Crane Used for Concrete Batching Plant.
  • Project Service:From crane design, manufacture, and installation of a 5 ton bridge crane with European style. The overhead crane was widely used for a concrete batching plant, to transport and raise concrete blocks and other goods, etc.
  • Production time: The project will be completed within three months.
  • Project location: Langley City, Canada.

The 5 ton European style single girder underslung bridge crane is an important part of the plant's production line. It's used to hoist and transport raw material like cement, sand, and aggregate to the mixing area, where they're mixed together to make concrete. The single girder underhung crane is also used to move finished concrete to storage locations for further processing.

The single girder 5 ton under running bridge crane is suitable for handling heavy loads during the concrete batching process. With its high load capacity and precision control, the overhead crane can rapidly and efficiently lift and transport enormous amounts of concrete, saving time and labor expenses.

Main girder of single girder 5 ton suspension bridge crane

Main girder of single girder 5 ton suspension bridge crane 

Electric wire rope hoist for 5 ton underslung bridge crane

Electric wire rope hoist for 5 ton underslung bridge crane

Main specifications of 5 ton single girder underslung bridge cranes

  • Type: European styleSingle Girder Underslung BridgeCrane
  • Lifting capacity:5 ton
  • Lifting height:20 ft
  • Span:32 ft
  • Power supply:575V/50Hz/3Phase
  • Control:Remote control +pendent control
  • Working class:A5(FEM 2m)
  • Long traveling speed:2-20m/min (inverter control)
  • Cross traveling speed:2-20m/min (inverter control)
  • Lifting speed:0.8/5m/min
  • Recommended rail:P15
  • Working temperature:-20℃ ~ +40℃
  • Insulation grade:F
  • Protection grade:IP54
  • Country of origin:China

Main Features of European style underslung bridge cranes

  • The suspension single girder bridge crane has a compact structure and low headroom, which saves space and lowers the building's height. It can also function in tight spaces and corners, and it has a versatile configuration.
  • An underhung bridge crane is light and quiet, reducing the load on the building structure and improving the working environment. It also moves smoothly and precisely, ensuring the safety and effectiveness of material handling.
  • The NR-type European style electric wire rope hoist features a modular design and a wide range of capabilities, ranging from 1 to 32 tons, that may be adjusted based on the customer's needs and application. It also has a long service life and a minimal cost of maintenance.
  • The FEM style electric wire rope hoist features a high lifting speed and variable speed control, which increases the underslung bridge crane's productivity and energy savings. It also consists a reliable braking mechanism and an overload protection device to assure the operator's and the load's safety.
  • Because of the vast scale and complex layout of the concrete batching plant, a flexible and efficient material handling system is required. An underslung bridge crane with an European style hoist with a long span and a large coverage area can meet this demand. It can also be combined with other pieces of machinery such as conveyor belts, hoppers, and silos.

Benefits of undeslung bridge crane

  • Save Space: Save space and lower the plant's footprint. A underhslung bridge crane with a FEMstyle electric hoist can be put on a single or double girder crane to span a big area while taking up little ground space. This can open up additional room in the plant for other equipment and activities.
  • Increase efficiency: It can improve the batching process's efficiency and accuracy. A underhslung bridge crane with a FEM style electric hoist may carry concrete materials from one area to another rapidly and precisely, such as from the mixer to the storage silo or from the silo to the truck. This can save waiting time and material waste while also improving the quality and consistency of the concrete.
  • Improve worker safety and comfort: It can improve worker safety and comfort. A European standard underhslung bridge crane can be operated remotely or automatically, reducing physical work and human error in large load lifting and transportation. Accidents and injuries caused by falling objects or collisions can also be avoided.
  • Environmentally friendly: Furthermore, a underhslung bridge crane with FEM electric hoist can reduce noise and dust pollution in the factory, resulting in a more comfortable working environment.

5 ton low headroom top running

The buyer of the low clearance crane is an Australian company that specializes in façade services. They work alongside traditional engineers and architects to improve the quality and efficiency of today's structures.

The Australian customer has some warehouse height restrictions and needs Dongqi Crane to deliver a material handling solution based on the warehouse dimensions. Following discussions with designing engineers, the European style low clearance single girder bridge crane is being recommenced to meet all of the lifting requirements of the Australian customer, and the specifications for the customized FEM low clearance bridge crane are as follows:

5 ton low clearance crane designing drawing

5 ton low clearance crane designing drawing

5 ton low clearance bridge crane

5 ton low clearance bridge crane

Main parameters of the low clearance crane:

  • Lifting capacity: 5 ton
  • Lifting span: 12.75 meters
  • Lifting height: 8 meters

Underhung bridge cranes vs. Top running bridge cranes

  • There is no capacity restriction.This enables it to manage both small and large loads.
  • Lift height has been increased.Because it is mounted on top of each runway beam, it allows for greater lift height, which is advantageous in buildings with limited headroom.
  • Built for greater capacity.Top-running bridge cranes are larger than under-running cranes in order to handle higher capacities.
  • Simple installation.Because the crane is supported by the runway beams, the suspended load factor is eliminated, making installation simple.
  • Less maintenance.Top-running bridge cranes require less maintenance over time, aside from routine tracking checks for good alignment and any concerns.
  • It works nicely in large bays.Underhung cranes can operate on numerous runways, lowering girder depth.
  • Overall design needs are reduced.Under-running bridge cranes are far lighter, eliminating the need for additional supporting columns that take up valuable floor space. Instead, the crane is supported by the existing overhead building structure.
  • Reduced expenses.Lower equipment costs derive from the lightweight design and usage of existing ceiling trusses or roof structure.
  • Capability to build several cranes.Under-running cranes can be installed next to each other and operated simultaneously for greater production efficiency.


How to get a suitable bridge crane for your application?

A 5 ton underhslung bridge crane for sale in Canada is an extremely effective way for concrete batching plants to increase production efficiency and lower expenses.

The standard and processed bridge crane with capacity of 5-550 tons are provided to meet your needs, since different industries require unique bridge crane adapted for their lifting solutions. To provide customized suspension bridge cranes for your applications, please provide the following informations and parameters:

  • Max lifting capacity of bridge crane: _  ton
  • Crane Span: _  m
  • Lifting height: _  m
  • Traveling distance: _m if the crane rail is needed.
  • What type of crane hoist do you need: an electric chain hoist or a electric wire rope hoist
  • Steel structure: Do you require supporting steelstructureto support the bridge crane
  • Controls: radio remote control, pendant control, cabin control
  • Application: What materials or object to be lifted? Working environment?

Welcome to contact us, we are very glad to provide you with suitable crane design and free quotation!

150 Ton Overhead Crane Installation Feedback – Paraguay Case

QDX 150 ton overhead crane in action in Paraguay. Installation photos, video, and client feedback show performance, safety, and heavy-lifting efficiency.


Free consultation to Confirm Parameters & Specifications and Get

Latest Crane Price & Crane Rate.

  • Types of overhead cranes : _______?
  • Optional: Overhead travelling crane, goliath gantry crane,Slewing jib crane, Single girder or double girder crane,small portable crane or kbk crane, etc.
  • Capacity of overhead crane: _______?
  • Optional: 0.25ton, 0.5 ton, 1 ton, 2 ton, 3ton, 5 ton, 10 ton,15ton, 20ton, 25 ton, 30ton,35ton, up to 550ton, etc.
  • Crane span & lifting height : _______?
  • Crane travelling length : _____?
  • Control of overhead crane:_______?
  • Optional: pendant/ remote/cabin control
  • Voltage supply of overhead crane:_____?
  • Eg,: 380V50/60HZ,3Phase or others,etc.
  • Application/usage of crane:_______?
  • Eg,: Steel mill, ,injection mold, cement,stone, concrete,granite, general manufacturing, etc.
  • Just leave a message via the contact form and our hoist and crane engineer will contact you with in 24working hours.

Get In Touch

Feel Free
to Contact With us