As a crane manufacturer, types of cranes are available with various crane designs and crane specifications. With confirmed crane specifications and crane parameters, the customized crane drawing design can be provided for specific your application for free. Overhead crane dwg, overhead travelling cranes dwg, gantry crane dwg, or jib crane dwg are offered freely before crane buying. Leave us your overhead travelling crane requirements, and help us to confirm the specific crane parameters, we will offering the overhead crane design drawing for free.
Overhead cranes is one the most frequently used material handling crane, which is one of our main products and the standard overhead crane specifications and related overhead travelling crane drawings are presented for you.
As the most common form of overhead crane, the single girder overhead crane is an excellent choice for material handling. A single girder overhead crane is typically thought of as a sort of light duty lifting equipment that pairs well with CD1, MD1 electric hoists. Single girder overhead cranes come in a variety of shapes and sizes to fulfill the demands of productivity and safety. In the workshop, warehouse, and yard, the single girder overhead crane is commonly employed.
Single girder overhead crane video
Electrical hoist single girder overhead crane
1- 20 ton single girder overhead crane, Robust bridge crane girder, Durable single girder crane, Free single girder eot crane drawing pdf, Best value single girder overhead crane for you! Electrical hoist single girder overhead crane is widely used in the factory, workshop, ware house, stockyard, etc.

Electrical hoist single girder overhead crane specifications
Electrical hoist single girder overhead crane specifications:
Customized overhead crane are available with capacity of 1 ton, 2 ton, 3 ton, 5 ton, 10 ton, 15 ton, and 20 ton. Please feel free to contact us to get your customized crane drawing and low cost crane. WhatsApp/ WeChat: + 86 151 3871 1597.
Electrical hoist single girder overhead crane design drawing

Please help us to confirm your overhead crane specifications and overhead crane parameters and the tailored overhead crane drawing will be provided for free. Contact us now to get cost-effective overhead crane,WhatsApp/ WeChat: + 86 151 3871 1597.
Explosion proof single girder overhead crane
Explosion proof cranes & explosion proof hoists for hazardous dusty & gas workshops. 1- 75 ton single girder & double girder explosion proof overhead crane system for explosion proof & flame proof workshops with high safety and efficiency.Explosion proof single girder overhead crane is designed for hazardous environment, such as, gas, dusty environment to enhance safety.

Explosion proof single girder overhead crane specifications
Explosion proof single girder overhead crane
Explosion proof single girder overhead crane specifications:
Customized overhead crane are available with capacity of 1 ton, 2 ton, 3 ton, 5 ton, 10 ton, 15 ton, and 20 ton. Please feel free to contact us to get your low cost overhead crane. WhatsApp/ WeChat: + 86 151 3871 1597.
Explosion proof single girder overhead crane design drawing

Please help us to confirm your overhead crane specifications and overhead crane parameters and the tailored overhead crane drawing will be provided for free. Contact us now to get cost-effective overhead crane,WhatsApp/ WeChat: + 86 151 3871 1597.
Low Headroom Single Girder overhead crane
Low headroom overhead travelling cranes - single & double girder low headroom overhead crane, top running & underhung low headroom bridge cranes. Low headroom single girder overhead cranes are designed for low height plant and factory, where the lifting room is limited but lifting height is high.

Low Headroom Single Girder overhead crane specification
Low headroom single girder overhead crane specifications:
Customized overhead crane are available with capacity of 1 ton, 2 ton, 3 ton, 5 ton, 10 ton, 15 ton, and 20 ton. Please feel free to contact us to get your cost-effective overhead crane. WhatsApp/ WeChat: + 86 151 3871 1597.
Low Headroom Single Girder overhead crane design drawing

Please help us to confirm your overhead crane specifications and overhead crane parameters and the tailored overhead crane drawing will be provided for free. Contact us now to get cost-effective overhead crane,WhatsApp/ WeChat: + 86 151 3871 1597.
FEM electrical hoist single girder overhead crane
European single girder overhead cranes, compact FEM hoist crane design, small & light overhead hoist crane.Good price overhead travelling crane 1-stop service. FEM hoist single girder overhead crane is designed with features of Sturdy quality,Good price, One year quality assurance, Full set of after sales service.

FEM electrical hoist single girder overhead crane
European hoist single girder overhead crane specification:
Customized overhead crane are available with capacity of 1 ton, 2 ton, 3 ton, 5 ton, 10 ton, 15 ton, and 20 ton. Please feel free to contact us to get your customized crane drawing and low cost crane. WhatsApp/ WeChat: + 86 151 3871 1597.
FEM electrical hoist single girder overhead crane design drawing

Please help us to confirm your overhead crane specifications and overhead crane parameters and the tailored overhead crane drawing will be provided for free. Contact us now to get cost-effective overhead crane,WhatsApp/ WeChat: + 86 151 3871 1597.
European Style Underslung Crane
1 ton -10 ton underhung bridge crane, light single girder overhead crane design, suspended on overhead roof, free floor space, economical underhung crane. European underslung single girder underslung crane is installed on the roof of the workplace without bracket, saving space and lowering cost.

European Style Underslung Crane
Customized overhead crane are available with capacity of 1 ton, 2 ton, 3 ton, 5 ton, 10 ton, 15 ton, and 20 ton. Please feel free to contact us to get your customized crane drawing and low cost crane. WhatsApp/ WeChat: + 86 151 3871 1597.
European Style Underslung Crane

Please help us to confirm your overhead crane specifications and overhead crane parameters and the tailored overhead crane drawing will be provided for free. Contact us now to get cost-effective overhead crane,WhatsApp/ WeChat: + 86 151 3871 1597.
Single girder suspension overhead crane
Explosion proof cranes & explosion proof hoists for hazardous dusty & gas workshops. 1- 75 ton single girder & double girder explosion proof overhead crane system for explosion proof & flame proof workshops with high safety and efficiency. Suspension single girder overhead crane is a small light lifting equipment, economical price, which is widely used in the factory, warehouse, stockyard, etc.

Single girder suspension overhead crane
Customized overhead crane are available with capacity of 1 ton, 2 ton, 3 ton, 5 ton, 10 ton, 15 ton, and 20 ton. Please feel free to contact us to get your customized crane drawing and low cost crane. WhatsApp/ WeChat: + 86 151 3871 1597.
Single girder suspension overhead crane

Please help us to confirm your overhead crane specifications and overhead crane parameters and the tailored overhead crane drawing will be provided for free. Contact us now to get cost-effective overhead crane,WhatsApp/ WeChat: + 86 151 3871 1597.
Your material handling efficiency is doubled with a double-girder overhead crane. Our twin girder overhead crane for sale in good condition and at a reasonable price. Because a double girder overhead crane overhead crane is built to handle big loads and things weighing more than 20 tons, it is also known as a heavy duty overhead crane. With lifting capacities ranging from 5 to 550 tons and working classes ranging from A4 to A7, the hook double girder overhead crane overhead crane is one of the most commonly utilized heavy material handling equipment.
The hook overhead crane, gab bucket overhead crane, electromagnetic overhead crane, soaking pit overhead crane, and other double girder overhead crane overhead cranes can be classified based on their lifting tools.
The double girder overhead crane overhead crane can be classified as an explosion proof overhead crane to reduce the risk of an explosion, a foundry overhead crane, or an insulating overhead crane to boost handling safety, depending on the application environment.
Double girder overhead crane video
European electric open winch double girder overhead crane
Advanced double girder overhead crane based on European DIN/FEM Standard with 5 ton-80 ton electric wire rope hoist trolley for hoisting industrial materials - European advanced wire rope hoist cranes! FEM electric open winch double girder overhead crane meets all the European crane standards with CE cerfiticates.

European electric open winch double girder overhead crane specifications
Fem electric open winch double girder overhead crane specifications:
Customized overhead crane are available with capacity of 1 ton, 2 ton, 3 ton, 5 ton, 10 ton, 15 ton, and 20 ton. Please feel free to contact us to get your customized crane drawing and low cost crane. WhatsApp/ WeChat: + 86 151 3871 1597. Get your custuom designed electric open winch double girder overhead crane.
European electric open winch double girder overhead crane design drawing

Please help us to confirm your overhead crane specifications and overhead crane parameters and the tailored overhead crane drawing will be provided for free. Contact us now to get cost-effective overhead crane,WhatsApp/ WeChat: + 86 151 3871 1597.
Electric Hoist double girder overhead crane crane
5 ton- 63 ton double girder overhead electric crane with rope hoist trolley / chain hoist trolley, competitive hoist trolley crane system, cheaper hoist trolley crane price, good electric overhead crane solution. Electric hoist double gider eot crane is widely used in machinery fabrication, metallurgical plant auxiliary workshop, storage, stock ground, and power station, textile industry and food industry.

Electric Hoist electric open winch double girder overhead crane crane specifications
Electrical hoist single girder overhead crane specifications:
Customized overhead crane are available with capacity of 1 ton, 2 ton, 3 ton, 5 ton, 10 ton, 15 ton, and 20 ton. Please feel free to contact us to get your customized crane drawing and low cost crane. WhatsApp/ WeChat: + 86 151 3871 1597.
Electric Hoist electric open winch double girder overhead crane design drawing

Please help us to confirm your overhead crane specifications and overhead crane parameters and the tailored overhead crane drawing will be provided for free. Contact us now to get cost-effective overhead crane,WhatsApp/ WeChat: + 86 151 3871 1597.
Traditional double girder overhead crane open electric open winch
Overhead electric winch crane is China traditional heavy duty double girder overhead crane equipped winch trolley,Robust & Sturdy, Affordable industrial overhead winch cranes. Electrical hoist single girder overhead crane is widely used in the factory, ware house, stockyard, etc.Electrical hoist single girder overhead crane is widely used in the factory, ware house, stockyard, etc.

Traditional double girder overhead crane open electric open winch
Hook electric open winch double girder overhead crane specifications:
Customized overhead crane are available with capacity of 1 ton, 2 ton, 3 ton, 5 ton, 10 ton, 15 ton, and 20 ton. Please feel free to contact us to get your customized crane drawing and low cost crane. WhatsApp/ WeChat: + 86 151 3871 1597.
Taditional double girder overhead crane open electric open winch

Please help us to confirm your overhead crane specifications and overhead crane parameters and the tailored overhead crane drawing will be provided for free. Contact us now to get cost-effective overhead crane,WhatsApp/ WeChat: + 86 151 3871 1597.
Explosion proof double girder overhead crane eot crane
Explosion proof cranes & explosion proof hoists for hazardous dusty & gas workshops. 1- 75 ton single girder & double girder explosion proof overhead crane system for explosion proof & flame proof workshops with high safety and efficiency. Explosion proof eot crane is designed for explosive gas atmospheres with explosion-proof electrical equipment.

EX-proof electric open winch double girder overhead crane specifications:
Customized overhead crane are available with capacity of 1 ton, 2 ton, 3 ton, 5 ton, 10 ton, 15 ton, and 20 ton. Please feel free to contact us to get your customized crane drawing and low cost crane. WhatsApp/ WeChat: + 86 151 3871 1597. Get your custuom designed electric open winch double girder overhead crane.
Explosion proof double girder overhead crane eot crane

Please help us to confirm your overhead crane specifications and overhead crane parameters and the tailored overhead crane drawing will be provided for free. Contact us now to get cost-effective overhead crane,WhatsApp/ WeChat: + 86 151 3871 1597.
Electromagnetic electric open winch double girder overhead crane
Electromagnetic overhead cranes with types of electromagnetic chucks & magnetic carrier beams for steel scraps, billet, slab,wire, coil, pipe, plate, etc., handling with efficiency and safety.The electromagnetic eot crane is used in metallurgy factory or outdoor place to load and transport electromagnetic black metal materials,such as ,steel ingot,merchant steel and pig iron,etc.

Electromagnetic electric open winch double girder overhead crane crane specifications
Electromangetic double girder overhead crane electric open winch specifications:
Customized overhead crane are available with capacity of 1 ton, 2 ton, 3 ton, 5 ton, 10 ton, 15 ton, and 20 ton. Please feel free to contact us to get your customized crane drawing and low cost crane. WhatsApp/ WeChat: + 86 151 3871 1597. Get your custuom designed electric open winch double girder overhead crane.
Electromagnetic electric open winch double girder overhead crane crane design drawing

Please help us to confirm your overhead crane specifications and overhead crane parameters and the tailored overhead crane drawing will be provided for free. Contact us now to get cost-effective overhead crane,WhatsApp/ WeChat: + 86 151 3871 1597.
Double Trolleys electric open winch double girder overhead crane
Double trolley overhead cranes of (2.5+2.5)~(200+200) tons, double trolleys & double hooks for long & heavy lifting. Overhead double trolley cranes drawing & trolley crane pdf for you now.The double trolley eot crane is used to lift long and big loads.

Double Trolleys electric open winch double girder overhead crane
Double electric open winch double girder overhead crane specifications:
Customized overhead crane are available with capacity of 1 ton, 2 ton, 3 ton, 5 ton, 10 ton, 15 ton, and 20 ton. Please feel free to contact us to get your customized crane drawing and low cost crane. WhatsApp/ WeChat: + 86 151 3871 1597. Get your custuom designed electric open winch double girder overhead crane.
Double Trolleys electric open winch double girder overhead crane

Please help us to confirm your overhead crane specifications and overhead crane parameters and the tailored overhead crane drawing will be provided for free. Contact us now to get cost-effective overhead crane,WhatsApp/ WeChat: + 86 151 3871 1597.
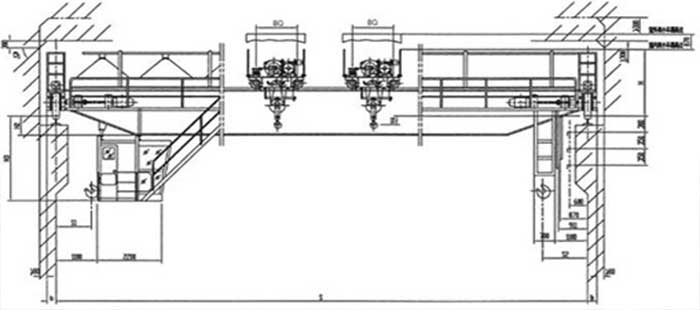
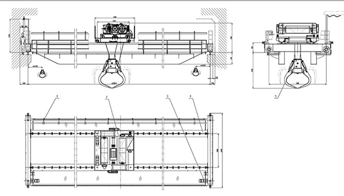
Grab Bucket electric open winch double girder overhead crane
5 ton 10 ton 16 ton 20 ton Grab Overhead Cranes with orange peeler grabs or clamshell grab buckets for scattered material handling in power station, steel mill, port, cement plant,storage & waste recycling station, etc. Grab eot crane is widely used in power station,storage,workshop,and port to load and unload scattered objects.

Grab Bucket electric open winch double girder overhead crane
Grab bucket electric open winch double girder overhead crane specifications:
Customized overhead crane are available with capacity of 1 ton, 2 ton, 3 ton, 5 ton, 10 ton, 15 ton, and 20 ton. Please feel free to contact us to get your customized crane drawing and low cost crane. WhatsApp/ WeChat: + 86 151 3871 1597.
Grab Bucket electric open winch double girder overhead crane

Please help us to confirm your overhead crane specifications and overhead crane parameters and the tailored overhead crane drawing will be provided for free. Contact us now to get cost-effective overhead crane,WhatsApp/ WeChat: + 86 151 3871 1597.
Ladle crane
Ladle cranes for 5 ton -320 ton ladle or liquid metal lifting, heavy duty ladle crane for steel mill, foundry, furnace, and casting factory. Good priced ladle crane, charging crane, casting crane & foundry crane ! Ladle eot crane are widely used in the smelting industry to convey,pour and charge the liquid hot metal in the process of smelting.

Ladle crane
Double electric open winch double girder overhead crane specifications:
Customized overhead crane are available with capacity of 1 ton, 2 ton, 3 ton, 5 ton, 10 ton, 15 ton, and 20 ton. Please feel free to contact us to get your customized crane drawing and low cost crane. WhatsApp/ WeChat: + 86 151 3871 1597.
Ladle crane

Please help us to confirm your overhead crane specifications and overhead crane parameters and the tailored overhead crane drawing will be provided for free. Contact us now to get cost-effective overhead crane,WhatsApp/ WeChat: + 86 151 3871 1597.
Get your custuom designed electric open winch double girder overhead crane.
Gantry cranes are widely used when the lifting is needed without the cost of a building or support steel work. The gantry cranes can be placed indoors or outdoors, used for activities in steel stock yards, pre-cast segment yards, construction sites and other outdoor application.
Gantry crane review video
Single girder gantry crane
5-32 ton single girder hoist gantry crane for sale. Single girder gantry, box girder / truss girder design, equipped electric wire rope hoists,cost-effective hoist gantry crane.Single girder gantry crane is equipped with duel-speed electric hoist, widely used in workshop, storage, port, and hydroelectric power station and outdoor places.

Single girder gantry crane
Customized gantry cranes are available with capacity of 1 ton, 2 ton, 3 ton, 5 ton, 10 ton, 15 ton, 20 ton, 30 ton, up to 550 ton. Please feel free to contact us to get your customized crane drawing and low cost crane. WhatsApp/ WeChat: + 86 151 3871 1597.
Single girder gantry crane

Please help us to confirm your gantry crane specifications and gantry crane parameters and the tailored gantry crane drawing will be provided for free. Contact us now to get cost-effective single girder gantry crane,WhatsApp/ WeChat: + 86 151 3871 1597.
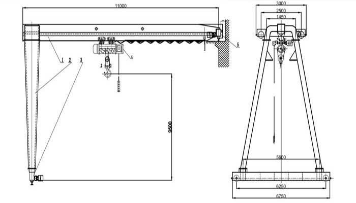
L type single girder overehad crane crane
Single girder gantry crane with L shape gantry legs, electric hoist or hoist trolley, with hook/ electromagnet /grab for long objects and various material handling. L type gantry crane is used to meet the general outdoor material handling requirements.

Gantry crane specifications:
Customized gantry cranes are available with capacity of 1 ton, 2 ton, 3 ton, 5 ton, 10 ton, 15 ton, 20 ton, 30 ton, up to 550 ton. Please feel free to contact us to get your customized crane drawing and low cost crane. WhatsApp/ WeChat: + 86 151 3871 1597.
L type of single girder gantry crane

Please help us to confirm your gantry crane specifications andgantry crane parameters and the tailored gantry crane drawing will be provided for free. Contact us now to get cost-effective single girder gantry crane,WhatsApp/ WeChat: + 86 151 3871 1597.
Semi-gantry crane
Semi gantry crane designs, single leg gantry cranes, save half gantry crane cost with existing workshop.Semi gantry cranes & semi goliath cranes for sale. Semi-gantry crane is a small or middle crane, widely used for materials handling, outdoor place and warehouse for loading and unloading.

Semi-gantry crane specifications
Gantry crane specifications:
Customized gantry cranes are available with capacity of 1 ton, 2 ton, 3 ton, 5 ton, 10 ton, 15 ton, 20 ton, 30 ton, up to 550 ton. Please feel free to contact us to get your customized crane drawing and low cost crane. WhatsApp/ WeChat: + 86 151 3871 1597. Leave a message below to buy gantry crane .
Semi-gantry crane design drawing

Please help us to confirm your gantry crane specifications and gantry crane parameters and the tailored gantry crane drawing will be provided for free. Contact us now to get cost-effective overhead single girder leg gantry crane,WhatsApp/ WeChat: + 86 151 3871 1597.
Truss gantry crane
Truss crane for sale. 3 ton - 100 tons anti-windy gantry cranes, with single/ double truss gantry girder design, truss leg & complete truss gantry cranes for you! Truss crane is for windy environment with high safety, lower price and lighter weight.

Truss gantry crane
Customized gantry cranes are available with capacity of 1 ton, 2 ton, 3 ton, 5 ton, 10 ton, 15 ton, 20 ton, 30 ton, up to 550 ton. Please feel free to contact us to get your customized crane drawing and low cost crane. WhatsApp/ WeChat: + 86 151 3871 1597. Truss gantry crane specifications:
Customized gantry cranes are available for your specific application with capacity from 1 ton, 2 ton, 3 ton, 5 ton, 10 ton, 15 ton, 20 ton, 30 ton, up to 550 ton. Please feel free to contact us by WhatsApp/ WeChat: + 86 151 3871 1597.
Truss gantry crane

Please help us to confirm yourgantry crane specifications and gantry crane parameters and the tailoredgantry crane drawing will be provided for free. Contact us now to get cost-effective overhead crane,WhatsApp/ WeChat: + 86 151 3871 1597.
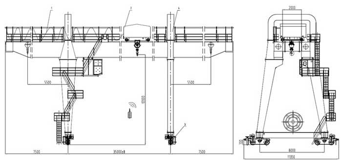
Double girder gantry crane
Double girder gantry cranes & double beam gantry cranes overview on gantry crane specifications, gantry crane types, features, crane usages & applications. Double girder gantry crane is applied to the open warehouse or rail along for general handling and lifting work.

Double girder gantry crane
Gantry crane specifications:
Customized gantry cranes are available with capacity of 1 ton, 2 ton, 3 ton, 5 ton, 10 ton, 15 ton, 20 ton, 30 ton, up to 550 ton. Please feel free to contact us to get your customized crane drawing and low cost crane. WhatsApp/ WeChat: + 86 151 3871 1597.
Double girder gantry crane

Please help us to confirm your gantry crane specifications and gantry crane parameters and the tailored gantry crane drawing will be provided for free. Contact us now to get cost-effective overhead crane,WhatsApp/ WeChat: + 86 151 3871 1597.
Jib cranes are the optimal lifting equipment for short transfer applications.We can provide you the wall travelling jib crane, pillar jib crane and wall mounted jib crane, etc.We jib cranes can lift and transport materials in semi circles or full circles around their support structures to provide localized material handling in work cells, to supplement a large overhead crane system, to transfer materials from one work cell to another, and to lift a line load up to the rated capacity safely.
Jib cranes for sale
Pillar Jib Crane
Pillar mounted jib crane is a free standing jib crane with pillar jib mounted on floor, for short & crowded lifting, capacity up to 16 ton. Get pillar mounted jib crane design now! Pillar mounted jib crane is a free standing jib crane with pillar jib mounted on floor, for short & crowded lifting, capacity up to 16 ton. Get pillar mounted jib crane design now!

Pillar Jib Crane specifications
Gantry crane specifications:
Lifting capacity: 0.5-10t,
Lifting height: 3-12m,
Working class: A3.
The pillar jib crane also called free-standing crane is widely used indoors and outdoors. The pillar jib crane provides higher capacities, longer spans, and greater rotations than wall mounted jib crane.
Customized jib cranes are available with capacity of 1 ton, 2 ton, 3 ton, 5 ton, 10 ton, 15 ton, and up to 20 ton. Please feel free to contact us to get your customized crane drawing and low cost crane. WhatsApp/ WeChat: + 86 151 3871 1597.
Pillar jib crane

Please help us to confirm your jib crane specifications and jib crane parameters and the tailored jib crane drawing will be provided for free. Contact us now to get cost-effective overhead crane,WhatsApp/ WeChat: + 86 151 3871 1597.
BB Wall-travelling Jib Crane
Wall travelling jib crane, a perfect & economical cantilever wall travelling crane for light & long distance lifting. Wall travelling jib crane, your efficient light duty crane! Wall travelling jib crane, a perfect & economical cantilever wall travelling crane for light & long distance lifting. Wall travelling jib crane, your efficient light duty crane!

BB Wall-travelling Jib Crane
BB Wall-travelling Jib Crane specifications:
Lifting capacity: 0.5-16t,
Lifting height: 6-30m,
Working class: A3.
The wall travelling jib crane can increase your plant productivity by quickly moving small loads in long lateral movement without taking up floor space.
Customized jib cranes are available with capacity of 1 ton, 2 ton, 3 ton, 5 ton, 10 ton, 15 ton, and up to 20 ton. Please feel free to contact us to get your customized crane drawing and low cost crane. WhatsApp/ WeChat: + 86 151 3871 1597.
Wall travelling jib crane drawing

Please help us to confirm your jib crane specifications and jib crane parameters and the tailored jib crane drawing will be provided for free. Contact us now to get cost-effective overhead crane,WhatsApp/ WeChat: + 86 151 3871 1597.
Wall mounted jib crane
Wall mounted jib crane & wall bracket jib crane with I beam & tie rod design for light duty handling with capacity up 2 ton. or less building structure changes. Wall mounted jib crane for sale. Wall mounted jib crane & wall bracket jib crane with I beam & tie rod design for light duty handling with capacity up 2 ton. or less building structure changes. Wall mounted jib crane for sale.

Wall mounted jib crane
Lifting capacity: 0.25-1t,
Lifting height: 1-10m,
Working class: A3.
The wall mounted jib cranes do not take any floor space and do not need special foundations. The cantilever is fixed on the wall or concrete post, and the rotation can be customized. The jib cranes are widely used in workshop, storage and ports, etc.
Customized jib cranes are available with capacity of 1 ton, 2 ton, 3 ton, 5 ton, 10 ton, 15 ton, and up to 20 ton. Please feel free to contact us to get your customized crane drawing and low cost crane. WhatsApp/ WeChat: + 86 151 3871 1597.
Wall mounted jib crane

Please help us to confirm your jib crane specifications and jib crane parameters and the tailored jib crane drawing will be provided for free. Contact us now to get cost-effective overhead crane,WhatsApp/ WeChat: + 86 151 3871 1597.
Based on your particular applicaition conditions and lifting requirements, the custom crane drawing can be designed for your particular application. In the following pdf, the crane drawings of the frequently used cranes are presented for your reference. If you need a crane design drawing for your use, please feel free to contact us. WhatsApp: + 86 151 3871 1597.
Crane drawings of types of cranes - 43 crane drawings for your reference. Customized crane drawing for your paticular applications. WhatsApp: + 86 151 3871 1597.